Kuća, Klis, Brštanovo, Prodaja, 219.89m²

  • €333,000
  • €1,514 m²
Klis, Klis, Draga

Kuća, Klis, Brštanovo, Prodaja, 219.89m²

  • €333,000
  • €1,514 m²
  • I30491
  • ID Nekretnine
  • Kuća
  • Vrsta nekretnine
  • 2025
  • Godina izgradnje
  • 219.89
  • 6709.00
  • Okućnica m²
  • 3
  • Sobe
  • 3
  • Kupaonice

Prodaja, Kuća, Klis, Brštanovo

Roh-bau kuća s bazenom i wellness zonom u srcu prirode, nadomak Splita, 220 m2

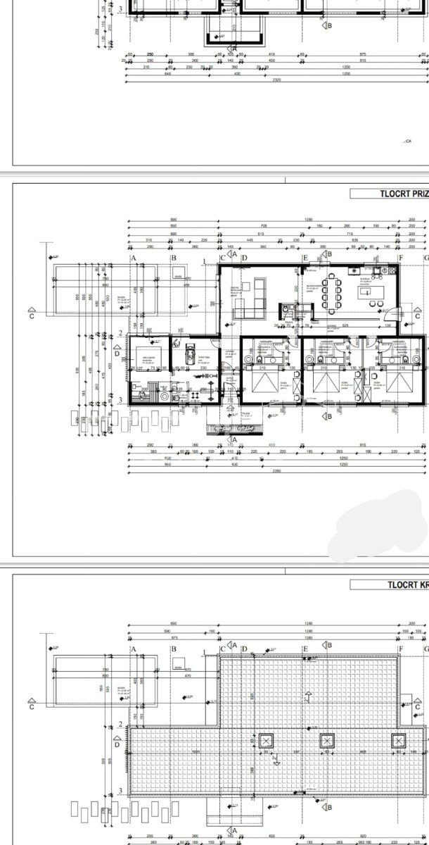
U mirnom okruženju općine Brštanovo, Klis, smještena je roh-bau kuća s prostranom okućnicom od 6709 m², od čega 4025 m² pripada građevinskom zemljištu. Dodatna parcela, koja je povezana s postojećom, ulazi u građevinsku zonu ove godine, a obje imaju osiguran pristupni put.

Kuća ima neto korisnu površinu od 219,89 m², dok stambeni dio iznosi 207,70 m². Projektirana kao luksuzna kuća za odmor s četiri zvjezdice, uključuje tri spavaće sobe s vlastitim kupaonicama, dnevni boravak povezan s kuhinjom i blagovaonicom, ostavu, dodatni wc, predsoblje te wellness dio s teretanom i saunom.

Do završetka roh-bau faze planirani su dodatni radovi na zapadnoj strani bazena, spajanju bazena i kuće, pristupnoj rampi na istočnoj strani te uređenju okoliša. Okolni teren pruža mogućnosti za gradnju dodatnih objekata, a cijena uključuje projekt koji obuhvaća sve navedene sadržaje.

Svojom osamom i blizinom crnogorične šume, nekretnina nudi potpunu privatnost i mir, dok je Split udaljen svega 25 minuta vožnje, što je čini idealnim izborom za investiciju ili luksuzni odmor.

I30491
Draga
  • Lokacija Draga
  • Grad Klis
  • Županija Splitsko-dalmatinska
  • Kvart / Općina Klis

Detalji

  • Dozvola: Građevinska
  • Kanalizacija: Gradska
  • Samostalni WC: 2
  • Kupaonica + WC: 3
  • Neto korisna površina: 219.89
  • Stanje: Rohbau
  • Vrsta građevine: Samostojeća
  • Parking: Parkirno mjesto

Energetski certifikat

  • Status: U izradi
  • A+
  • A
  • B
  • C
  • D
  • E
  • F
  • G
  • H

Moglo bi Vas zanimati

Compare listings

Compare
Ena Rahimić
  • Ena Rahimić