Kuća, Opatija, Prodaja, 561.00m²

  • €1,600,000
  • €2,852 m²
Opatija, Opatija, Opatija
Opatija, Opatija, Opatija

Kuća, Opatija, Prodaja, 561.00m²

  • €1,600,000
  • €2,852 m²
  • I32387
  • ID Nekretnine
  • Kuća
  • Vrsta nekretnine
  • 1985
  • Godina izgradnje
  • 561.00
  • 651.00
  • Okućnica m²
  • 7
  • Sobe
  • 5
  • Kupaonice

Prodaja, Kuća, Opatija

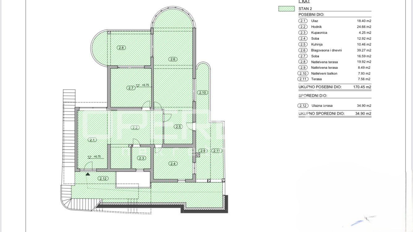
Na mirnoj i zelenilom okruženoj lokaciji, svega 650 m od plaže, prodaje se prostrana vila na šest etaža s jedinstvenim panoramskim pogledom na more, Opatiju, Rijeku i Kvarnerski zaljev.

Vila nudi tri stambene jedinice, brojne terase i balkone, garažu, više parkirnih mjesta te potencijal za bazen. Zahvaljujući velikim staklenim površinama i južnoj orijentaciji, prostorije su pune prirodnog svjetla tijekom cijelog dana.

Idealna za veće obitelji, luksuzne apartmane ili boutique hotel. Rijetka prilika na tržištu s velikim investicijskim potencijalom!

Udaljenosti:
More i plaža – 9 min hoda
Centar Opatije – 1,2 km
Rijeka – 12 km
Zračna luka Rijeka – 35 km

Za više informacija i vizualizaciju potencijalnog uređenja – kontaktirajte nas!

I32387
Opatija
  • Lokacija Opatija
  • Grad Opatija
  • Županija Primorsko-goranska
  • Kvart / Općina Opatija

Detalji

  • Dozvola: Građevinska
  • Voda: Gradska
  • Kanalizacija: Gradska
  • Plin: Nema
  • Kupaonica + WC: 5
  • Broj katova: 6
  • Neto korisna površina: 561.00
  • Površina vrta: 651.00
  • Grijanje: Centralno zgrada
  • Stanje: Dobro
  • Vrsta građevine: Samostojeća
  • Parking: Garaža i parkirno mjesto
  • Orijentacija: J-I-Z

Energetski certifikat

  • Status: U izradi
  • A+
  • A
  • B
  • C
  • D
  • E
  • F
  • G
  • H

Moglo bi Vas zanimati

Compare listings

Compare
Marijana Crnković
  • Marijana Crnković