Kuća, Petrinja, Prodaja, 180.00m²

  • €95,000
  • €528 m²
Petrinja, Petrinja, Ulica Gromova
Petrinja, Petrinja, Ulica Gromova

Kuća, Petrinja, Prodaja, 180.00m²

  • €95,000
  • €528 m²
  • I29545
  • ID Nekretnine
  • Kuća
  • Vrsta nekretnine
  • 1971
  • Godina izgradnje
  • 180.00
  • 665.00
  • Okućnica m²
  • 2
  • Sobe
  • 1
  • Kupaonica

Prodaja, Kuća, Petrinja

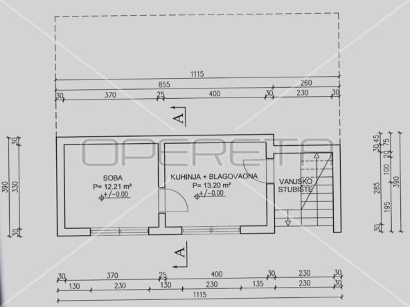
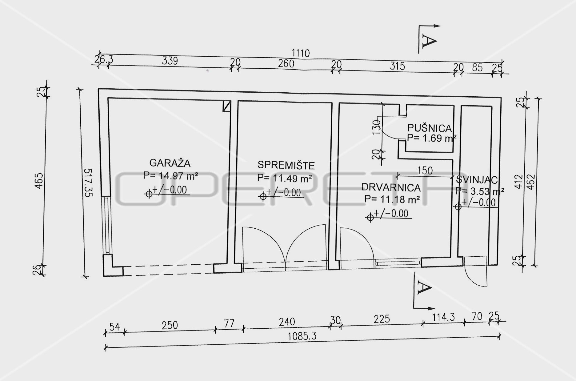
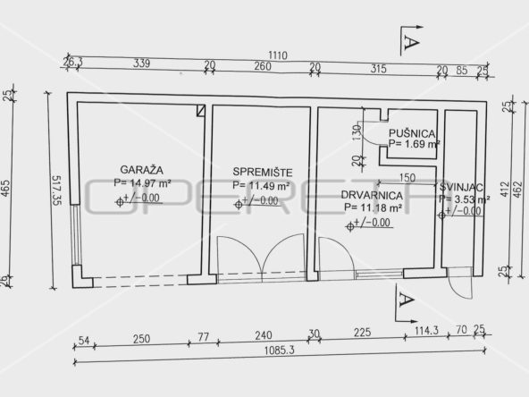
PRODAJA, KUĆA, Petrinja, Ulica Gromova, katnica, na traženoj i prepoznatljivoj lokaciji, odlično prometno povezana, nadomak svih sadržaja (BUS, škola, dućan i dr.), okružena zelenilom, ukupne brutto površine 180m2. Sastoji se od suterena, kata i visokog potkrovlja. Na parceli se nalaze gospodarski objekat površine 54m2 (garaža, spremište, pušnica, svinjac) i ugodna, prostrana sjenica. BEZ VITALNIH OŠTEĆENJA U POTRESU! DOSTUPNA ODMAH!

I29545
Ulica Gromova
  • Lokacija Ulica Gromova
  • Grad Petrinja
  • Županija Sisačko-moslavačka
  • Kvart / Općina Petrinja

Detalji

  • Dozvola: Građevinska
  • Voda: Gradska
  • Kanalizacija: Gradska
  • Samostalni WC: 1
  • Kupaonica + WC: 1
  • Broj katova: 1
  • Neto korisna površina: 180.00
  • Grijanje: Drva
  • Stanje: Dobro
  • Vrsta građevine: Samostojeća
  • Parking: U dvorištu
  • Orijentacija: S(N)-J(S)-I(E)-Z(W)

Energetski certifikat

  • Status: U izradi
  • A+
  • A
  • B
  • C
  • D
  • E
  • F
  • G
  • H

360° Virtualna šetnja

Moglo bi Vas zanimati

Compare listings

Compare
Goran Devčić
  • Goran Devčić