Kuća, Poreč, Baderna, Prodaja, 178.00m²

  • €470,000
  • €2,640 m²
Poreč, Poreč, Baderna
Poreč, Poreč, Baderna

Kuća, Poreč, Baderna, Prodaja, 178.00m²

  • €470,000
  • €2,640 m²
  • I28529
  • ID Nekretnine
  • Kuća
  • Vrsta nekretnine
  • 2025
  • Godina izgradnje
  • 178.00
  • 350.00
  • Okućnica m²
  • 3
  • Sobe
  • 3
  • Kupaonice

Prodaja, Kuća, Poreč, Baderna

ISTRA, POREČ (OKOLICA) – Kuća krajnja u nizu s pogledom na more

U malom istarskom mjestu nedaleko od Poreča smijestila se ova obiteljska kuća krajnja u nizu s vlastitim dvorištem i bazenom
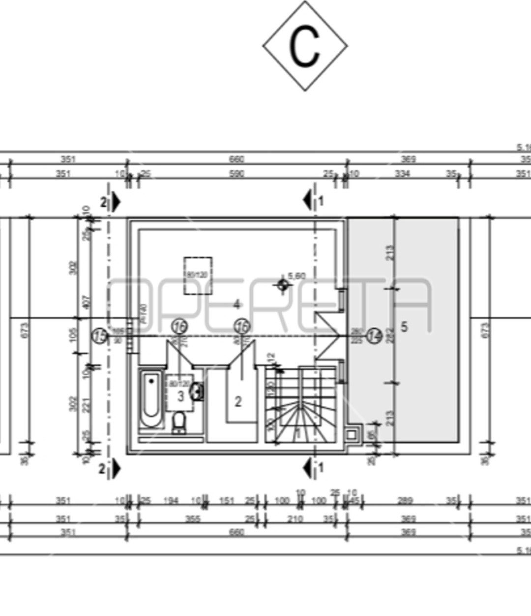
Kuća C, stambene površine 170 m2 i 350 m2 okućnice.
Prizemlje se sastoji od ulaznog trijema, hodnika, dva spremišta, ostave, toaleta, kuhinje s blagovaonom, velikog dnevnog boravka s kaminom, izlazom na terasu i na bazen sa sunčalištem.
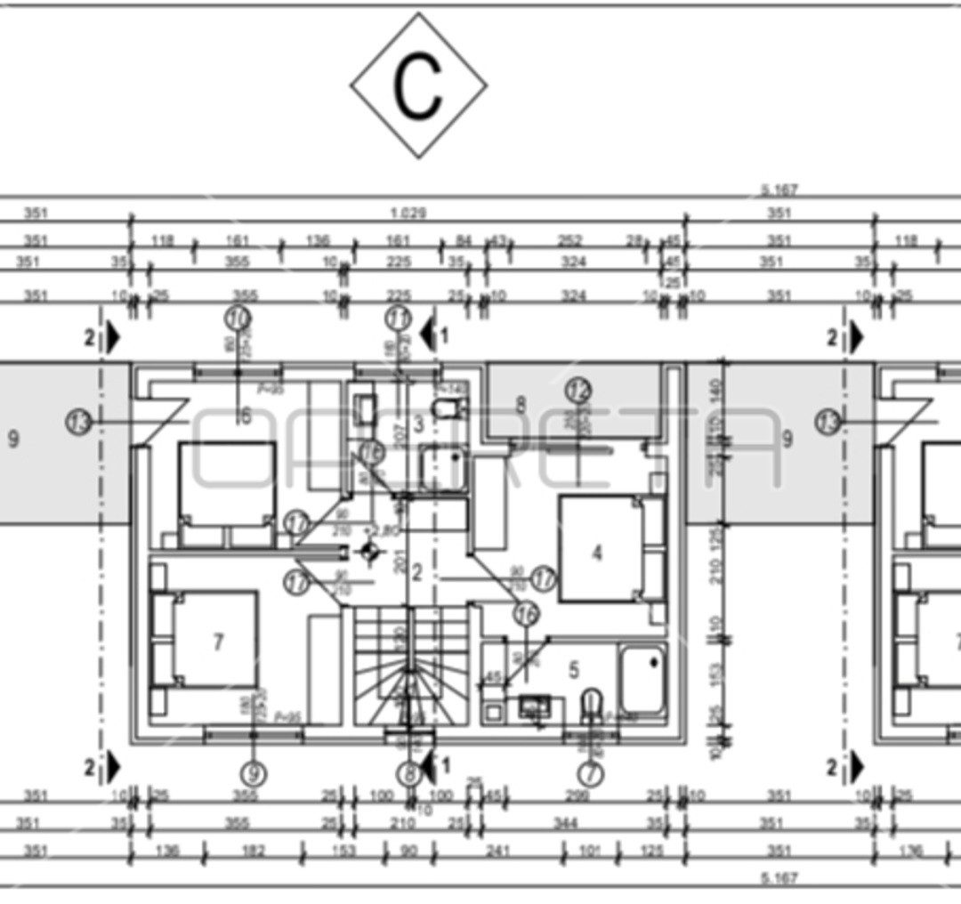
Na prvom katu smjestile su se tri spavaće sobe od koji je jedna master soba s izlazom na terasu, s vlastitom kupaonicom, ostale dvije spavaće sobe imaju jednu zajedničku kupaonicu.
U potkrovlju od po izboru može se smjestiti još jedna spavaća soba s kupaonicom ili fitness kutak s jacuzzijem.
Grijanje je riješeno dizalicom topline i predviđeno je podno grijanje u svim prostorijama osim u spavaćim sobama iako u fazi izgradnje budući da će kupac moći odlučivati s investitorom o sitnim izmjenama u izboru boje sanitarija, keramike i ostalo.

I28529
Baderna
  • Lokacija Baderna
  • Grad Poreč
  • Županija Istarska
  • Kvart / Općina Poreč

Detalji

  • Dozvola: Građevinska
  • Voda: Vlastita
  • Samostalni WC: 1
  • Kupaonica + WC: 3
  • Broj katova: 2
  • Neto korisna površina: 178.00
  • Površina vrta: 300.00
  • Grijanje: Dizalica topline
  • Stanje: Novogradnja
  • Vrsta građevine: Kuća u nizu
  • Parking: Parkirno mjesto
  • Orijentacija: z

Energetski certifikat

  • Status: U izradi
  • A+
  • A
  • B
  • C
  • D
  • E
  • F
  • G
  • H

Moglo bi Vas zanimati

Compare listings

Compare
Opereta d.o.o.
  • Opereta d.o.o.