Stan, Čakovec, Globetka, Prodaja, 88.50m²

  • €268,515
  • €2,700 m²
Čakovec, Globetka, Vukovarska
Čakovec, Globetka, Vukovarska

Stan, Čakovec, Globetka, Prodaja, 88.50m²

  • €268,515
  • €2,700 m²
  • I32165
  • ID Nekretnine
  • Stan
  • Vrsta nekretnine
  • 2025
  • Godina izgradnje
  • 88.50
  • 3
  • Sobe
  • 2
  • Kupaonice

Prodaja, Stan, Čakovec, Globetka

PRODAJA, STAN, ČAKOVEC
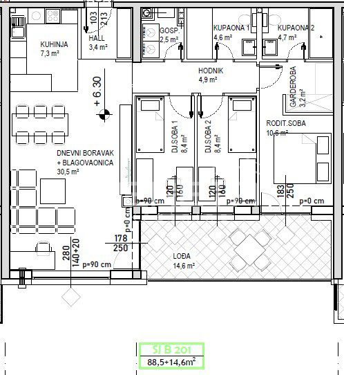
Prodaje se stan površine 88,5 m2 s lođom površine 14,6 m2 na 2. katu niskoenergetske stambeno – poslovne zgrade na odličnoj lokaciji. Zgrada se sastoji od podruma, visokog prizemlja, prvog, drugog i trećeg kata te sadrži ukupno 74 stambene jedinice i 7 poslovnih prostora. Završetak gradnje predviđen je krajem 2025./početak 2026. Energetski razred je A+. Moguć je odabir podnih obloga (keramika, parket ili laminat) te odabir unutarnje stolarije. Uz stan moguća je kupovina i vanjskog parkirnog mjesta po cijeni od 8.000,00 EUR, garažnog mjesta bez spremišta po cijeni od 14.000,00 EUR, garažnog mjesta sa spremištem do 17,4 m2 po cijeni od 17.500,00 EUR, garažnog mjesta sa spremištem do 19,4 m2 po cijeni od 19.500,00 EUR ili garažnog mjesta sa spremištem do 20,6 m2 po cijeni od 22.500,00 EUR.
Za dodatne informacije stojimo na raspolaganju, a ovisno o načinu i količini plaćanja moguća je određena korekcija cijene.

I32165
Vukovarska
  • Lokacija Vukovarska
  • Grad Čakovec
  • Županija Međimurska
  • Kvart / Općina Globetka

Detalji

  • Plin: Ima
  • Kupaonica + WC: 2
  • Broj katova: 3
  • Grijanje: Plinsko etažno
  • Stanje: Novogradnja
  • Vrsta građevine: Zgrada
  • Kat: 2
  • Broj etaža: 1

Pogodnosti

Energetski certifikat

  • Status: A+
  • | Energetski certifikat A+
    A+
  • A
  • B
  • C
  • D
  • E
  • F
  • G
  • H

Moglo bi Vas zanimati

Compare listings

Compare
Leo Kunić
  • Leo Kunić