Stan, Poreč, Prodaja, 96.56m²

  • €390,000
  • €4,063 m²
Poreč, Poreč, Poreč
Poreč, Poreč, Poreč

Stan, Poreč, Prodaja, 96.56m²

  • €390,000
  • €4,063 m²
  • I33213
  • ID Nekretnine
  • Stan
  • Vrsta nekretnine
  • 2024
  • Godina izgradnje
  • 96.56
  • 3
  • Sobe
  • 3
  • Kupaonice

Prodaja, Stan, Poreč

Istra, blizina Poreča
Na prodaju: moderan stan u prizemlju s privatnim bazenom, smješten u mirnom području blizu Poreča.

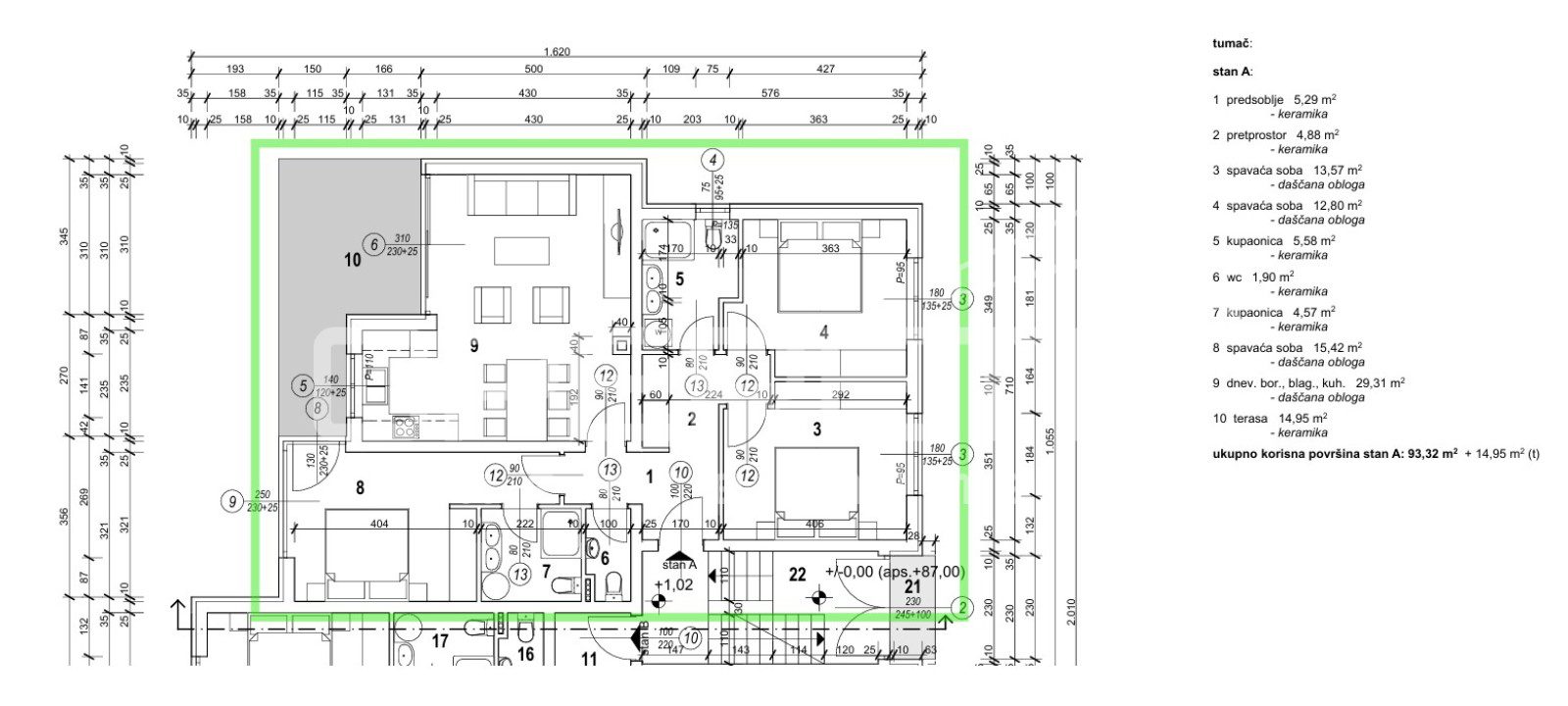
Ovaj suvremeni stan površine 96,56 m² dio je intimne stambene zgrade s samo četiri stambene jedinice. Uključuje ulazni hodnik, prostrani dnevni boravak s kuhinjom i blagovaonicom otvorenog plana, tri spavaće sobe, dvije kupaonice (od kojih je jedna povezana s glavnom spavaćom sobom), zasebni toalet i veliku terasu dostupnu iz dnevnog boravka. Terasa vodi do privatnog bazena i prostora za sunčanje, idealnog za opuštanje tijekom toplih ljetnih dana. Ograđeni vrt stana osigurava potpunu privatnost.

Uz stan dolazi i spremište u podrumu zgrade te dva namjenska parkirna mjesta.
Stan je opremljen podnim grijanjem u svim prostorijama, pogonjenim toplinskim pumpama, te klima-uređajima u svakoj prostoriji za cjelogodišnju udobnost. Prodaje se potpuno namješten, spreman za trenutnu useljenje. U gradnji su korišteni vrhunski materijali, uključujući trostruka termo stakla, drvenu unutarnju stolariju, aluminijsku vanjsku stolariju, kamene podove i visokokvalitetnu sanitariju.

Navedena cijena uključuje PDV.

Smješten u šarmantnom selu samo 4 km od Poreča i njegovih netaknutih plaža, stan je okružen slikovitim stazama za šetnju i biciklizam, igralištem, parkom, šumom te obližnjim restoranima, kafićima, trgovinama i drugim sadržajima.

Ovaj novoizgrađeni, prostrani stan s privatnim bazenom idealan je za cjelogodišnje stanovanje, odmor ili kao unosna nekretnina za turistički najam.

I33213
Poreč
  • Lokacija Poreč
  • Grad Poreč
  • Županija Istarska
  • Kvart / Općina Poreč

Detalji

  • Samostalni WC: 3
  • Samostalna kupaonica: 2
  • Kupaonica + WC: 1
  • Broj katova: Prizemlje
  • Grijanje: Dizalica topline
  • Stanje: Novogradnja
  • Vrsta građevine: Zgrada
  • Parking: Parkirno mjesto
  • Kat: Prizemlje
  • Broj etaža: 1

Energetski certifikat

  • Status: U izradi
  • A+
  • A
  • B
  • C
  • D
  • E
  • F
  • G
  • H

Moglo bi Vas zanimati

Compare listings

Compare
Opereta d.o.o.
  • Opereta d.o.o.