Stan, Rovinj, Prodaja, 129.00m²

  • €780,000
  • €6,046 m²
Rovinj, Rovinj, Rovinj
Rovinj, Rovinj, Rovinj

Stan, Rovinj, Prodaja, 129.00m²

  • €780,000
  • €6,046 m²
  • I33974
  • ID Nekretnine
  • Stan
  • Vrsta nekretnine
  • 2024
  • Godina izgradnje
  • 129.00
  • 2
  • Sobe
  • 3
  • Kupaonice

Prodaja, Stan, Rovinj

Prodaja, Rovinj, Luksuzni stan 1. klase s vrtom

Na prodaju je ekskluzivan stan vrhunske kvalitete u Rovinju, smješten u mirnoj ulici svega 500 metara od centra grada.
Ova nekretnina pruža savršen spoj luksuza, udobnosti i moderne arhitekture, idealna za one koji traže vrhunski životni prostor u najpoželjnijem gradu u Istri.

Stan se nalazi u prizemlju moderne zgrade s liftom i odlikuje se vrhunskom gradnjom te pažljivo osmišljenim rasporedom. Zahvaljujući velikim staklenim površinama, interijer je svijetao i prozračan dok ugodan vrt površine 80 m² nudi savršeno mjesto za opuštanje i uživanje na otvorenom.
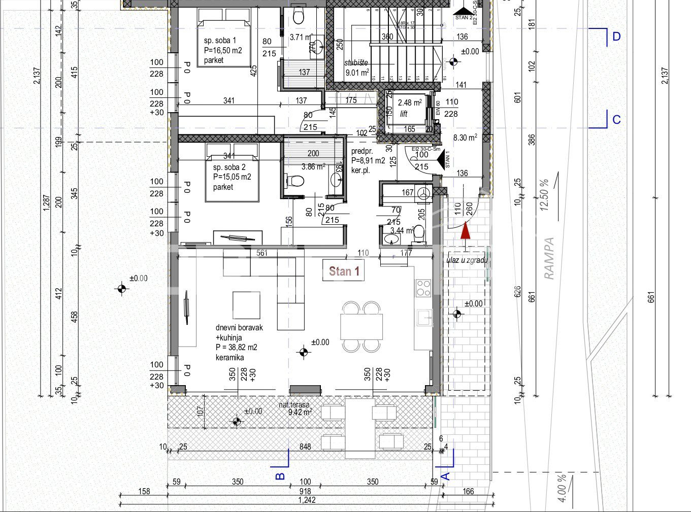
Raspored čini:
Predprostor, prostrani dnevni boravak s kuhinjom i blagovaonicom sa Izlazom na natkrivenu terasu i vrt, dvije prostrane spavaće sobe, svaka s vlastitom kupaonicom i izlazom na vrt.

Stanu pripada spremište od 11 m² u prizemlju zgrade te dva garažna mjesta u podrumu, s utičnicama za punjenje električnih vozila.

Također, stan ima pristup i mogučnost korištenja dodatnog vrta od 110 m2.

Zgrada je opremljena liftom, video nadzorom i video portafonom, a stan ima protuprovalna vrata i najviše standarde toplinske i zvučne izolacije.

Rekapitulacija površina:
* stambena površina stana: 90 m2
* terasa: 19 m2
* spremište: 11 m2
* Vrt: 80 m2
* dva garažna mjesta: 29,20 m2

Tehničke karakteristike:
* Schüco AWS/ADS 70HI prozori i Schüco ASE 80HI klizne stijene
* Troslojno staklo s vrhunskim toplinskim i zvučnim koeficijentom
* Hella žaluzine sa senzorom za vjetar
* Podno grijanje pomoću toplinskih pumpi Mitsubishi Electric (Wi-Fi upravljanje)
* Zaseban sustav hlađenja Mitsubishi Electric (Wi-Fi upravljanje)
* u sobama parket 1.klase
* keramika 1. klase

Stan je u završnoj fazi izgradnje – trenutno se postavlja keramika i uređuje okoliš.

Ova jedinstvena nekretnina nudi savršenu kombinaciju mirne i tražene lokacije i vrhunske gradnje.

Investitor je pravna osoba u sustavu PDV-A, stoga tražena cijena uključuje PDV.

I33974
Rovinj
  • Lokacija Rovinj
  • Grad Rovinj
  • Županija Istarska
  • Kvart / Općina Rovinj

Detalji

  • Plin: Nema
  • Kupaonica + WC: 3
  • Broj katova: 2
  • Grijanje: Dizalica topline
  • Stanje: Novogradnja
  • Vrsta građevine: Zgrada
  • Parking: Garažno mjesto
  • Orijentacija: J-Z
  • Kat: Prizemlje
  • Broj etaža: 1

Energetski certifikat

  • Status: U izradi
  • A+
  • A
  • B
  • C
  • D
  • E
  • F
  • G
  • H

Moglo bi Vas zanimati

Compare listings

Compare
Tina Mihovilović
  • Tina Mihovilović