Stan, Šibenik, Vidici, Prodaja, 60.53m²

  • €205,819
  • €3,400 m²
Šibenik, Šibenik, Vidici
Šibenik, Šibenik, Vidici

Stan, Šibenik, Vidici, Prodaja, 60.53m²

  • €205,819
  • €3,400 m²
  • I32438
  • ID Nekretnine
  • Stan
  • Vrsta nekretnine
  • 2026
  • Godina izgradnje
  • 60.53
  • 2
  • Sobe
  • 1
  • Kupaonica

Prodaja, Stan, Šibenik, Vidici

Stan 2s, 60,53 m2, Vidici- Šibenik

Na odličnoj lokaciji u šibenskom naselju Vidici gradi se moderna zgrada s ukupno pet stanova.
Riječ je o mirnoj stambenoj zoni idealnoj za obiteljski život, u neposrednoj blizini svih ključnih sadržaja – škole, vrtića, trgovina i javnog prijevoza. Centar Šibenika i njegova šarmantna jezgra, kao i more i plaže, udaljeni su svega nekoliko minuta vožnje, što omogućuje savršen spoj svakodnevne praktičnosti i blizine mediteranskog načina života.

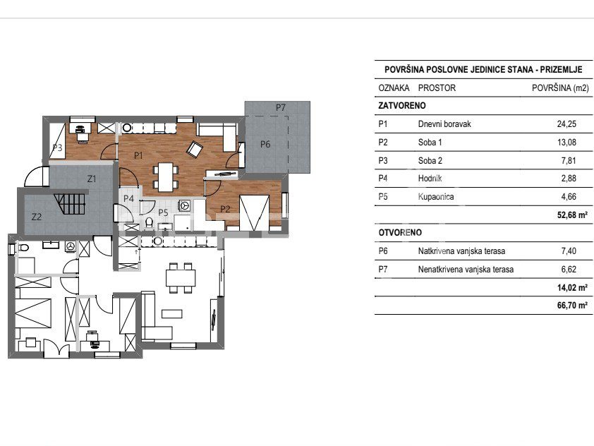
Stan P1 nalazi se u prizemlju zgrade s ukupno dva kata.
Zatvoreni stambeni prostor površine 52,68 m² obuhvaća dvije spavaće sobe, hodnik, kupaonicu te dnevni boravak s kuhinjom i blagovaonicom. Dodatni komfor pružaju dvije terase – natkrivena površine 7,40m² i u nastavku nenatkrivena površine 6,62m², koje omogućuju ugodan boravak na otvorenom tijekom cijele godine.

Zgrada će biti izgrađena prema najnovijim građevinskim standardima, a podno grijanje u svim prostorijama, klimatizacija i visoka energetska učinkovitost jamče dugoročnu vrijednost i niske troškove održavanja.

Stanu pripada i 1 parkirno mjesto.

I32438
Vidici
  • Lokacija Vidici
  • Grad Šibenik
  • Županija Šibensko-kninska
  • Kvart / Općina Šibenik

Detalji

  • Plin: Nema
  • Kupaonica + WC: 1
  • Broj katova: 2
  • Grijanje: Klima uređaj
  • Stanje: Novogradnja
  • Vrsta građevine: Zgrada
  • Parking: Parkirno mjesto
  • Kat: Prizemlje
  • Broj etaža: 1

Energetski certifikat

  • Status: U izradi
  • A+
  • A
  • B
  • C
  • D
  • E
  • F
  • G
  • H

Moglo bi Vas zanimati

Compare listings

Compare
Marija Bilić
  • Marija Bilić