Stan, Šibenik, Šibenik okolica, Brodarica, Prodaja, 131.69m²

  • €440,000
  • €3,340 m²
Šibenik, Šibenik okolica, Brodarice
Šibenik, Šibenik okolica, Brodarice

Stan, Šibenik, Šibenik okolica, Brodarica, Prodaja, 131.69m²

  • €440,000
  • €3,340 m²
  • I31890
  • ID Nekretnine
  • Stan
  • Vrsta nekretnine
  • 2024
  • Godina izgradnje
  • 131.69
  • 4
  • Sobe
  • 3
  • Kupaonice

Prodaja, Stan, Šibenik, Šibenik okolica, Brodarica

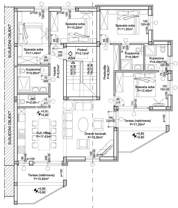
Luksuzan stan AS4 Brodarica/Šibenik – Mediteranski mir i suvremeni luksuz na idealnoj lokaciji

Na 100m od mora, u mirnom dijelu Brodarice, smjestio se ovaj useljiv i prostran stan koji savršeno spaja raskoš sa suvremenim dizajnom, funkcionalnost i osjećaj doma. Stan se prostire preko cijele etaže, pružajući maksimalnu privatnost i osjećaj prostranosti u svakom dijelu interijera. Idealan je za one koji traže spoj vrhunske udobnosti, kvalitetne gradnje i blizine mora.
Ova vrhunska nekretnina pruža impresivan pogled na more i atmosferu istinske udobnosti, idealnu za obiteljski život, ali i kao investiciju u nekretninu visoke klase.
Stan se nalazi na drugom katu manje stambene zgrade, pažljivo projektirane kako bi svaki detalj služio udobnosti i kvaliteti stanovanja. Otvoreni dnevni prostor ispunjen svjetlom, suvremena kuhinja, te dvije prostrane terase pružaju savršen balans između privatnosti i prostora za druženje. S četiri spavaće sobe, tri moderno uređene kupaonice i jednog odvojenog toaleta, ovo je dom koji nudi više od klasičnog apartmanskog smještaja.
Kvaliteta gradnje i opreme jasno je vidljiva u svakom elementu – od podnog grijanja do klimatizacije i automatiziranih roleta, svaki aspekt osmišljen je s ciljem pružanja vrhunske razine komfora. Dva privatna parkirna mjesta dodatno doprinose praktičnosti svakodnevnog života.
Blizina plaže i svih ključnih sadržaja čini ovu lokaciju iznimno poželjnom, kako za stanovanje, tako i za luksuzni najam.
Zgrada posjeduje i uporabnu dozvolu, a prodavatelj je tvrtka.
Brodarica, nekadašnje ribarsko naselje, danas je poželjna rezidencijalna zona s izvrsnom infrastrukturom, ugodnom atmosferom i brojnim plažama koje privlače i stanovnike i posjetitelje. Nalazi se samo nekoliko minuta vožnje od Šibenika i u neposrednoj blizini nacionalnih parkova, marine i svih potrebnih sadržaja – savršena lokacija za život uz more.
Ako tražite dom koji će nadmašiti očekivanja ili sigurnu investiciju na jadranskoj obali – kupnja ovog stana je odlična prilika!

I31890
Brodarice
  • Lokacija Brodarice
  • Grad Šibenik
  • Županija Šibensko-kninska
  • Kvart / Općina Šibenik okolica

Detalji

  • Samostalni WC: 1
  • Kupaonica + WC: 3
  • Broj katova: 2
  • Grijanje: Klima uređaj
  • Stanje: Novogradnja
  • Vrsta građevine: Zgrada
  • Parking: Parkirno mjesto
  • Kat: 2
  • Broj etaža: 1

Energetski certifikat

  • Status: A+
  • | Energetski certifikat A+
    A+
  • A
  • B
  • C
  • D
  • E
  • F
  • G
  • H

Moglo bi Vas zanimati

Compare listings

Compare
Danijela Haide
  • Danijela Haide