Stan, Velika Gorica, Kurilovec, Prodaja, 80.00m²

  • €239,000
  • €2,981 m²
Velika Gorica, Velika Gorica, Slavka Kolara
Velika Gorica, Velika Gorica, Slavka Kolara

Stan, Velika Gorica, Kurilovec, Prodaja, 80.00m²

  • €239,000
  • €2,981 m²
  • I33685
  • ID Nekretnine
  • Stan
  • Vrsta nekretnine
  • 1977
  • Godina izgradnje
  • 80.00
  • 3
  • Sobe
  • 1
  • Kupaonica

Prodaja, Stan, Velika Gorica, Kurilovec

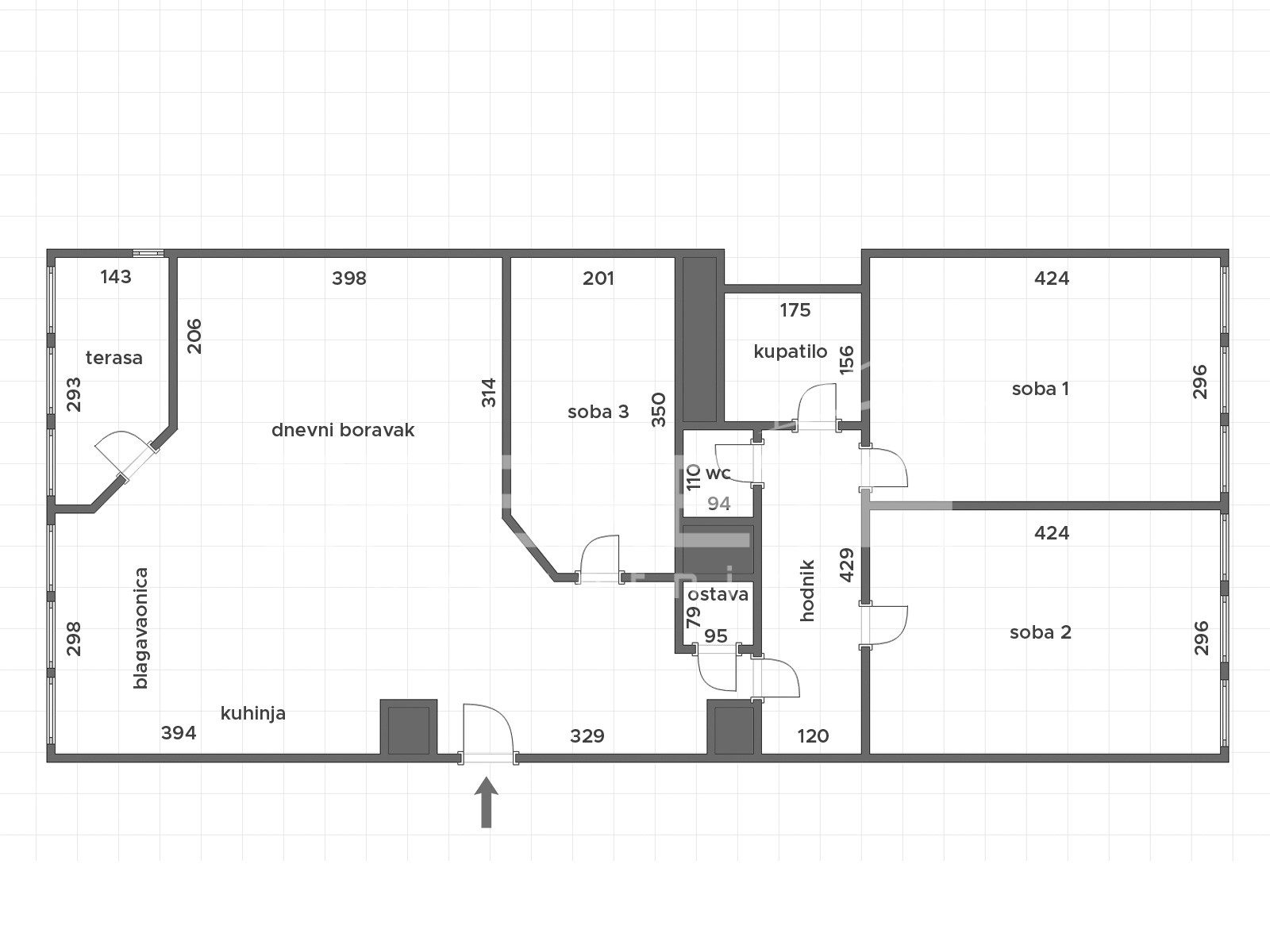
STAN PRODAJA, VELIKA GORICA, Ulica Slavka Kolara, 80,15 m2, 3,5-soban stan. U ponudi izdvajamo izuzetno ugodan, svijetao i prozračan troiposoban stan koji se nalazi u Velikoj Gorici, u mirnoj i traženoj ulici Slavka Kolara. Smješten je na trećem katu uredno održavane stambene zgrade bez lifta, a krase ga promišljen raspored prostorija, obilje prirodnog svjetla i ugodna atmosfera doma. Stan je dvostrano orijentiran, prema sjeveru i jugu, što osigurava prirodnu svjetlost i ugodnu temperaturu tijekom cijele godine. Sastoji se od dvije komforne spavaće sobe, jedne manje radne sobe bez prozora, kuhinje povezane s blagovaonicom i dnevnim boravkom koji se otvara na loggiu. S loggie se pruža otvoren pogled prema jugu, pružajući dojam prostranosti i privatnosti – idealno mjesto za opuštanje i uživanje u mirnim trenucima. Zgrada se nalazi na iznimno praktičnoj lokaciji – neposredno ispred nalazi se autobusna stanica, što omogućuje jednostavnu povezanost sa Zagrebom i ostatkom Velike Gorice. U samoj zgradi smještene su pekara i trgovina, dok su u neposrednoj blizini dostupna dva vrtića, škola te svi ostali sadržaji potrebni za kvalitetan i udoban svakodnevni život. Oko zgrade dostupan je slobodan parking. Stan odiše ugodnošću i toplinom te predstavlja savršen izbor za obiteljski život, parove ili kao dugoročnu investiciju za najam. Zahvaljujući svojoj lokaciji, funkcionalnom rasporedu i dvostranoj orijentaciji, ovaj stan spaja udobnost, praktičnost i osjećaj doma u jednom.

I33685
Slavka Kolara
  • Lokacija Slavka Kolara
  • Grad Velika Gorica
  • Županija Zagrebačka županija
  • Kvart / Općina Velika Gorica

Detalji

  • Plin: Nema
  • Samostalni WC: 1
  • Samostalna kupaonica: 1
  • Broj katova: 4
  • Grijanje: Toplana s razdjelnicima
  • Stanje: Vrlo dobro
  • Vrsta građevine: Zgrada
  • Parking: Na ulici
  • Orijentacija: S(N) - J(S)
  • Kat: 3
  • Broj etaža: 1

Energetski certifikat

  • Status: U izradi
  • A+
  • A
  • B
  • C
  • D
  • E
  • F
  • G
  • H

360° Virtualna šetnja

Moglo bi Vas zanimati

Compare listings

Compare
Antonija Postružin
  • Antonija Postružin