Stan, Zadar, Borik, Prodaja, 152.85m²

  • €1,345,000
  • €1 m²
Zadar, Zadar, Diklo

Stan, Zadar, Borik, Prodaja, 152.85m²

  • €1,345,000
  • €1 m²
  • I32878
  • ID Nekretnine
  • Stan
  • Vrsta nekretnine
  • 2026
  • Godina izgradnje
  • 152.85
  • 2
  • Sobe
  • 2
  • Kupaonice

Prodaja, Stan, Zadar, Borik

Ekskluzivan stan prvi red do mora – infinity bazen & vrt, Zadar, Diklo

Iz Operetine ponude luksuznih nekretnina izdvajamo dvosoban stan u prizemlju moderne novogradnje smještene uz samu obalu.

Ova suvremena i luksuzna zgrada sastoji se od podzemne garaže, prizemlja, dva kata i krovne terase, s planiranim useljenjem u lipnju 2026 godine.

Smještena u prvom redu do mora, u jednom od najprestižnijih naselja, ova nekretnina ističe se skladom arhitekture, luksuza i iznimne lokacije.

Južna orijentacija stana osigurava obilje prirodne svjetlosti tijekom cijelog dana te nevjerojatan pogled na more i plažu koja se nalazi neposredno ispred zgrade.

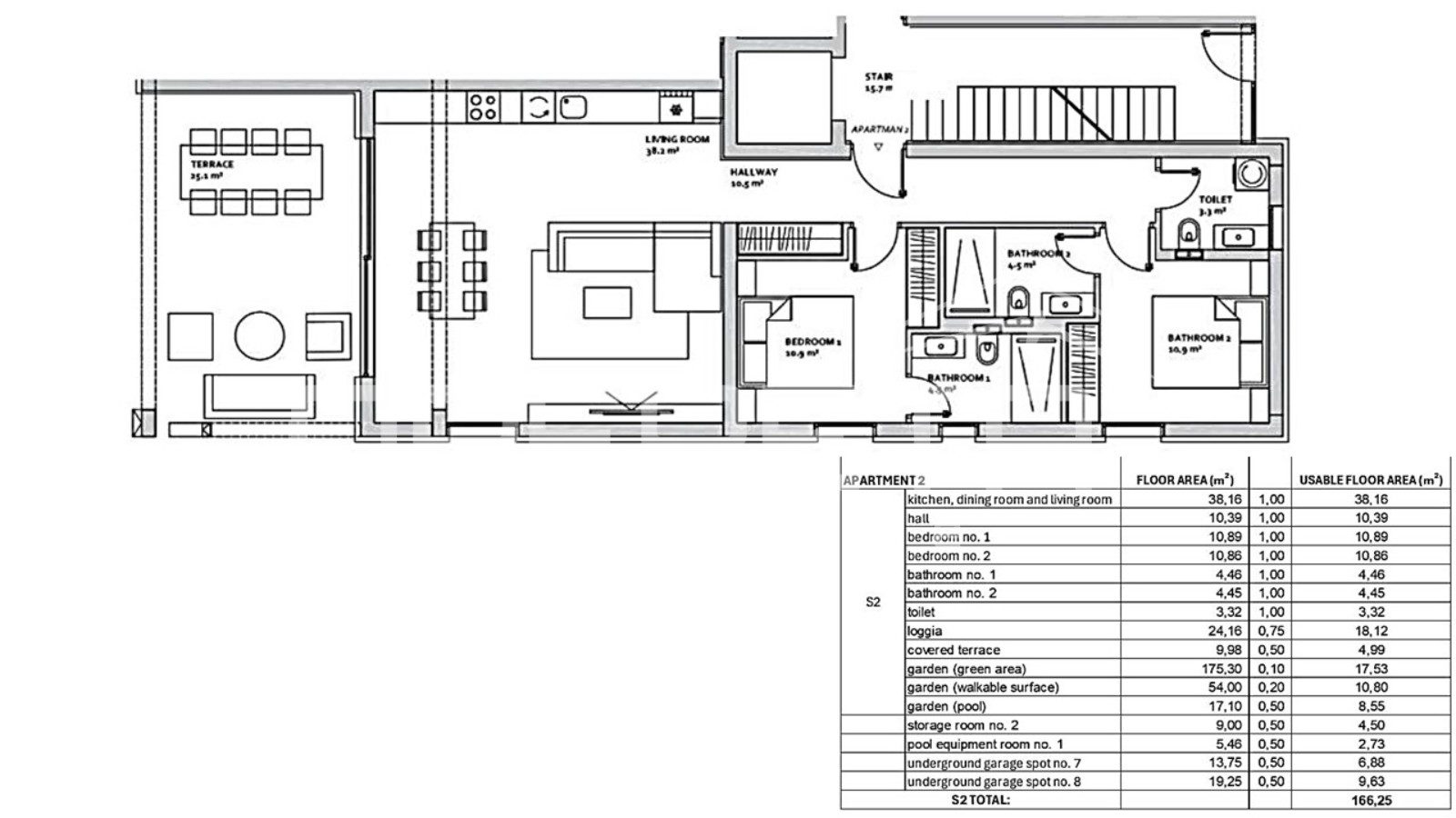
Ukupna površina stana sa svim pripadcima je 410 m², dok ukupna neto površina iznosi 153 m².
Unutarnji prostor čini hodnik površine 10 m², prostrani open-space dnevni boravak s kuhinjom i blagovaonicom površine 38 m², te dvije spavaće sobe, svaka površine 11 m². Obje spavaće sobe imaju vlastitu kupaonicu od 5 m², dok se u zajedničkom dijelu stana nalazi dodatni WC površine 3 m².
Stanu pripada i natkrivena terasa površine 25 m² , povezana kliznom stijenom s dnevnim boravkom, kao i dodatna natkrivena terasa od 10 m².

Uz terase se prostire privatni vrt ukupne površine 230 m². U sklopu vanjskog dijela nalazi se i infinity bazen, vanjski tuš, ljetna kuhinja te prostorija za bazensku opremu površine 6 m².

Stan također uključuje dva parkirna mjesta u podzemnoj garaži (14 m² i 19 m²) s punjačem za električna vozila i spremište površine 9 m2.

DODATNE ZNAČAJKE:
Zgrada:
– Fasada izvedena pomoću ETICS sustava
– Thermo-tech zvučna i toplinska izolacija na svakoj etažnoj ploči
– Dodatna zvučna izolacija između stanova
– Lift s izravnim pristupom iz podzemne garaže do krovne terase

Stolarija i zasjenjivanje:
– Schüco aluminijski prozori s visokokvalitetnim staklom za optimalnu zaštitu od sunca
– Motorizirane vanjske žaluzine u spavaćim sobama
– Motorizirani zastori u dnevnom boravku
– Komarnici na svim prozorima i balkonskim vratima

Sigurnost:
– Protuprovalna i protupožarna vrata marke Kolnoa s kodnim otključavanjem
– Ulaz u zgradu putem čitača otiska prsta i mogućnost klasičnog zaključavanja

Unutarnji elementi:
– Luksuzna unutarnja vrata od poda do stropa, bez vidljivih dovratnika
– Troslojni hrastov parket (Požgaj) u spavaćim sobama
– Premium keramičke pločice velikog formata (300×120 cm), talijanski brend Laminam

Grijanje i hlađenje:
– Podno grijanje u cijelom stanu
– Mitsubishi dizalice topline
– Mitsubishi klima uređaji s unutarnjim jedinicama u svakoj sobi i dnevnom boravku
– Pametno Wi-Fi upravljanje sustavima grijanja i hlađenja

Voda i pročišćavanje:
– Ugrađen sustav omekšavanja vode za svaki stan

Sanitarna oprema:
– Sanitarije od proizvođača Grohe iz linije najviše kvalitete – Essence
– Umivaonici – Villeroy & Boch
– Vrhunske WC školjke Villeroy & Boch ViClean-I 100 s integriranom funkcijom bidea
– Laminam pločice velikog formata (300×120 cm)

Naselje Diklo predstavlja jednu od najekskluzivnijih lokacija na zadarskoj obali. Poznato po luksuznim nekretninama i uređenim plažama, ovaj dio grada karakterizira stabilna turistička potražnja i
kontinuiran rast vrijednosti nekretnina.

Izvrsna prometna povezanost s centrom Zadra, uz kompletnu infrastrukturu koja uključuje visokokvalitetne restorane, trgovine i rekreacijske sadržaje, čini Diklo poželjnom destinacijom kroz cijelu godinu.

Ova nekretnina nudi rijetku priliku za ulaganje s jasnim potencijalom rasta vrijednosti, kao ekskluzivna privatna rezidencija ili kao luksuzni turistički objekt.

Razgledavanje je moguće svim danima, uz prethodnu najavu.

I32878
Diklo
  • Lokacija Diklo
  • Grad Zadar
  • Županija Zadarska
  • Kvart / Općina Zadar

Detalji

  • Samostalni WC: 1
  • Kupaonica + WC: 2
  • Broj katova: 2
  • Grijanje: Električno
  • Stanje: Novogradnja
  • Vrsta građevine: Zgrada
  • Parking: Garažno mjesto
  • Orijentacija: J (S)
  • Kat: Prizemlje
  • Broj etaža: 1

Energetski certifikat

  • Status: U izradi
  • A+
  • A
  • B
  • C
  • D
  • E
  • F
  • G
  • H

Moglo bi Vas zanimati

Compare listings

Compare
Mia Šoletić
  • Mia Šoletić