Stan, Zadar, Bokanjac, Prodano, 83.00m²

  • €224,000
  • €2,698 m²
Zadar, Zadar, Mila Cipre
Zadar, Zadar, Mila Cipre

Stan, Zadar, Bokanjac, Prodano, 83.00m²

  • €224,000
  • €2,698 m²
  • I29666
  • ID Nekretnine
  • Stan
  • Vrsta nekretnine
  • 2024
  • Godina izgradnje
  • 83.00
  • 2
  • Sobe
  • 1
  • Kupaonica

Prodano, Stan, Zadar, Bokanjac

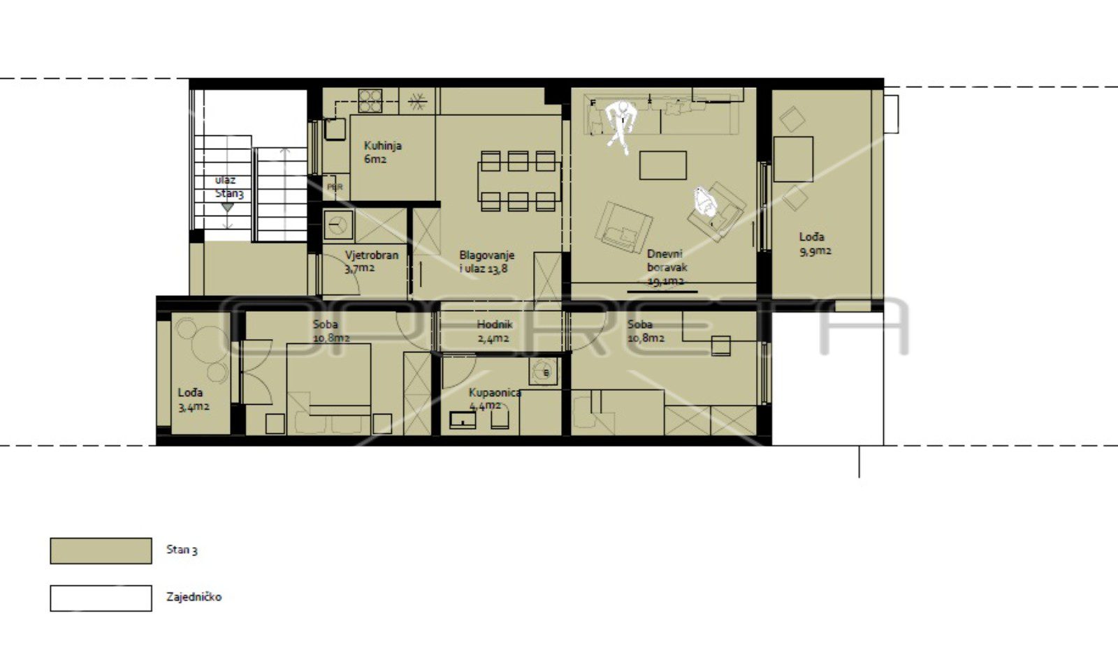
Dvosoban obiteljski stan, novogradnja, 83 m2, N. Bokanjac, Zadar – nova cijena!

Prekrasan obiteljski stan nalazi se na drugom katu tek dovršene zgrade na Novom Bokanjcu. Zgrada ima dva kata sa ukupno tri stana i okružena je uređenim vrtovima i zelenilom.

Odlična lokacija i gradnja u susjedstvu obiteljskih kuća, mira i zelenila, a ujedno u blizini svih sadržaja, uključujući školu, vrtić i trgovine.

Stan se sastoji od kuhinje s pogledom na Velebit, blagovaonice i dnevnog boravka koji zajedno čine površinu od 41 m2, dvije spavaće sobe (11 m2 svaka), od kojih jedna ima izlaz na lođu površine 4 m2, te kupaonice od 4 m2.

Stan je pun svjetlosti i orijentiran prema južnoj strani s lođom površine 10 m2. Kvalitetni parketi, keramika i sanitarije, uz minimalistički dizajn i detalje koji čine razliku, stvaraju poseban ugođaj i osjećaj doma.

Parkiranje je osigurano u dvorištu zgrade.

Ukupna korisna površina iznosi 89 m² (71 m² zatvorenog dijela), a ukupna korisna vrijednost površina iznosi 83 m².

Idealna prilika za rješavanje stambenog pitanja; dokumentacija i vlasništvo su uredni – moguća kupnja putem kredita.

Razgledavanje je moguće tijekom cijelog tjedna uz prethodnu najavu!

I29666
Mila Cipre
  • Lokacija Mila Cipre
  • Grad Zadar
  • Županija Zadarska
  • Kvart / Općina Zadar

Detalji

  • Kupaonica + WC: 1
  • Broj katova: 2
  • Grijanje: Dizalica topline
  • Stanje: Novogradnja
  • Vrsta građevine: Zgrada
  • Parking: Od zgrade
  • Orijentacija: J (S)
  • Kat: 2
  • Broj etaža: 1

Energetski certifikat

  • Status: U izradi
  • A+
  • A
  • B
  • C
  • D
  • E
  • F
  • G
  • H

Moglo bi Vas zanimati

Compare listings

Compare
Mia Šoletić
  • Mia Šoletić