Stan, Zagreb, Maksimir, Remete, Prodaja, 137.96m²

  • €550,000
  • €3,986 m²
Zagreb, Maksimir, Čret
Zagreb, Maksimir, Čret

Stan, Zagreb, Maksimir, Remete, Prodaja, 137.96m²

  • €550,000
  • €3,986 m²
  • I33214
  • ID Nekretnine
  • Stan
  • Vrsta nekretnine
  • 2025
  • Godina izgradnje
  • 137.96
  • 3
  • Sobe
  • 2
  • Kupaonice

Prodaja, Stan, Zagreb, Maksimir, Remete

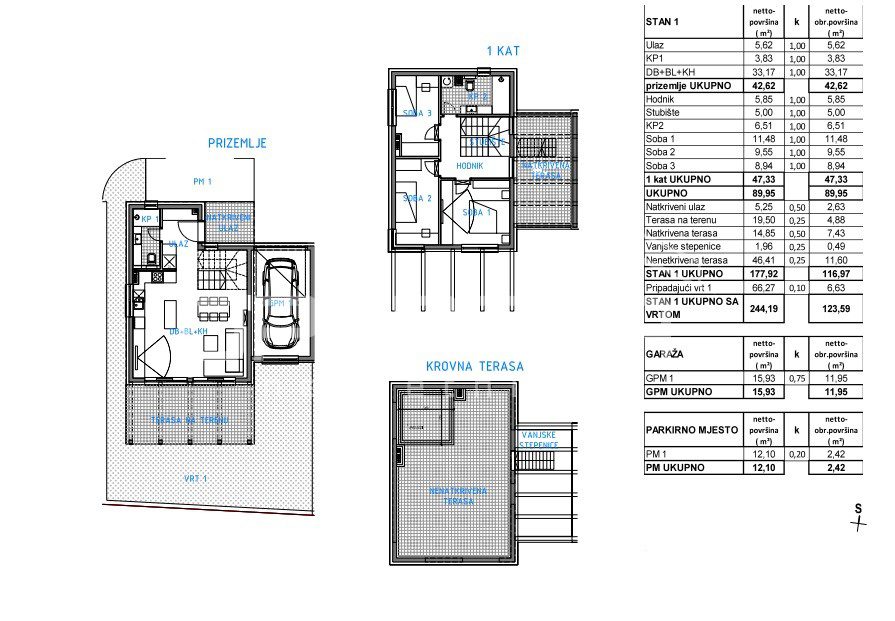
PRODAJA, NOVOGRADNJA, REMETE, ČRET, 137,96 m2

Prodaje se dvoetažan stan (S1) u urbanoj vili u naselju Čret, nedaleko od park šume Dotrščina i Maksimira.

Stambena površina iznosi 116,97 m2. Prizemlje se sastoji od kuhinje s blagovaonicom, dnevnog boravka koji ima izlaz na vrt te kupaonice dok se na katu nalaze tri spavaće sobe i kupaonica.

Stanu pripadaju i tri terase, od kojih je jedna krovna sa otvorenim pogledom na Zagreb. Svaka vila imati će svoju garažu te vanjsko parkirno mjesto. Postoji mogućnost kupnje dodatnog parkirnog mjesta.

Cijela konstrukcija zgrade je betonska, protupotresna, vanjski izgled zgrade krasiti će ciglene ploče. Stolarija je PVC troslojna sa alu-roletnama na električne podizače.

Akcijska cijena u početnoj fazi izgradnje!

Više informacija na upit.

I33214
Čret
  • Lokacija Čret
  • Grad Zagreb
  • Županija Grad Zagreb
  • Kvart / Općina Maksimir

Detalji

  • Plin: Nema
  • Kupaonica + WC: 2
  • Broj katova: 1
  • Grijanje: Dizalica topline
  • Stanje: Novogradnja
  • Vrsta građevine: Urbana vila
  • Parking: Garaža i parkirno mjesto
  • Orijentacija: S-J-I-Z
  • Kat: Prizemlje
  • Broj etaža: 2

Energetski certifikat

  • Status: U izradi
  • A+
  • A
  • B
  • C
  • D
  • E
  • F
  • G
  • H

Moglo bi Vas zanimati

Compare listings

Compare
Jasna Ivanović
  • Jasna Ivanović