Stan, Zagreb, Novi Zagreb – zapad, Odra, Prodaja, 61.51m²

  • €153,775
  • €2,500 m²
Zagreb, Novi Zagreb - zapad, Odranska zavrtnica
Zagreb, Novi Zagreb - zapad, Odranska zavrtnica

Stan, Zagreb, Novi Zagreb – zapad, Odra, Prodaja, 61.51m²

  • €153,775
  • €2,500 m²
  • I33883
  • ID Nekretnine
  • Stan
  • Vrsta nekretnine
  • 2026
  • Godina izgradnje
  • 61.51
  • 2
  • Sobe
  • 1
  • Kupaonica

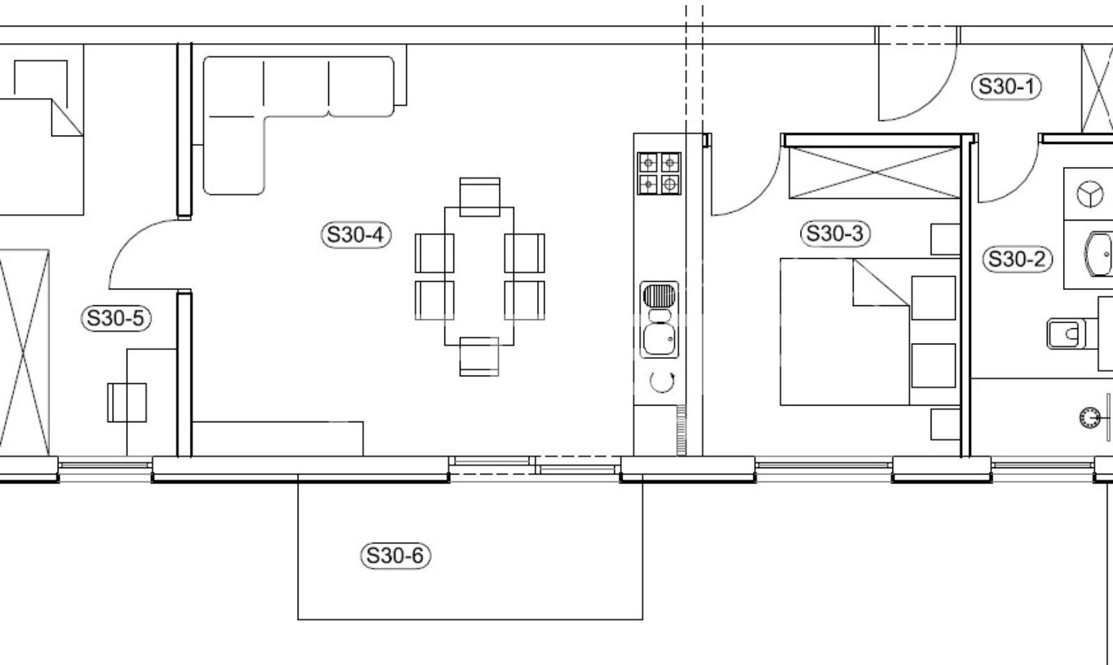
Prodaja, Stan, Zagreb, Novi Zagreb - zapad, Odra

PRODAJA, STAN. NOVOGRADNJA, NOVI ZAGREB, ODRA, S30
Prodaje se stan u novogradnji na poželjnoj lokaciji Novog Zagreba – Odri. Stan se nalazi na trećem katu stambene zgrade. Sastoji se od ulaznog dijela, dnevnog boravka s kuhinjom i blagovanicom, dvije spavaće sobe, kupaonice i spremišta. Uz stan je dostupno i vanjsko parkirno mjesto koje je uključeno u cijenu stana. Postoji mogućnost kupnje dodatnog parkirnog mjesta. Cijena stana iznosi 2.500 eur / m2. Zaprimaju se rezervacije. Kupnja je isključivo iz sopstvenih sredstava i ne može na kredit banke.
Idealna lokacija nadomak glavnoga grada za obitelji i parove. U neposrednoj blizini se nalaze trgovački sadržaji, vrtić, javni prijevoz, crkva, ugostiteljski sadržaji i slično.

I33883
Odranska zavrtnica
  • Lokacija Odranska zavrtnica
  • Grad Zagreb
  • Županija Grad Zagreb
  • Kvart / Općina Novi Zagreb - zapad

Detalji

  • Plin: Ima
  • Kupaonica + WC: 1
  • Broj katova: 3
  • Grijanje: Dizalica topline
  • Stanje: Novogradnja
  • Vrsta građevine: Zgrada
  • Parking: Parkirno mjesto
  • Kat: 3
  • Broj etaža: 1

Energetski certifikat

  • Status: U izradi
  • A+
  • A
  • B
  • C
  • D
  • E
  • F
  • G
  • H

Moglo bi Vas zanimati

Compare listings

Compare
Janko Godec
  • Janko Godec