Stan, Zagreb, Stenjevec, Špansko, Prodaja, 91.00m²

  • €324,000
  • €3,560 m²
Zagreb, Stenjevec, Matije Divkovića
Zagreb, Stenjevec, Matije Divkovića

Stan, Zagreb, Stenjevec, Špansko, Prodaja, 91.00m²

  • €324,000
  • €3,560 m²
  • I33517
  • ID Nekretnine
  • Stan
  • Vrsta nekretnine
  • 2000
  • Godina izgradnje
  • 91.00
  • 3
  • Sobe
  • 1
  • Kupaonica

Prodaja, Stan, Zagreb, Stenjevec, Špansko

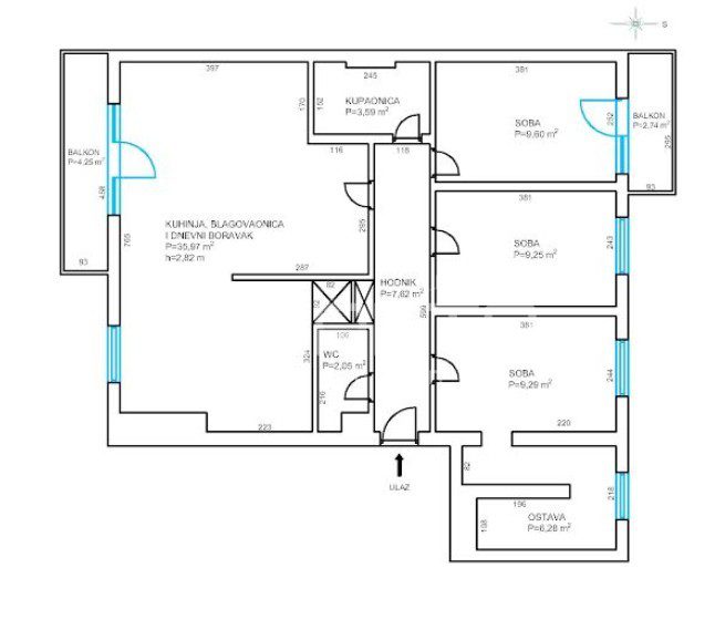
PRODAJA, STAN, ZAGREB, ŠPANSKO, 91m2, 4-soban, Ul. Matije Divkovića, simpatičan stan na jako mirnoj lokaciji ima zatvorenog prostora 88m2: hodnik, dnevni boravak s kuhinjom i blagovaonicom, špajzom, kupaonica s wc-om, posebno dodatni wc, tri spavaće sobe od kojih je jedna spojena sa ostavom (ima prozor) i idealno za odlaganje stvari kao garderobna soba ili ostava. Stanu pripada i velika terasa od 8m2 te loggia obračunato sve u ukupnu navedenu kvadraturu stana po koeficijentu. Parking od zgrade, a ima dovoljno mjesta i za parkiranje drugih auta oko zgrade. Odlična prilika za Kupca koji želi živjeti u mirnom susjedstvu i mirnom dijelu kvarta a u blizini svih bitnijih sadržaja. na minutu pješice od parkića, dućana, javnog prijevoza, škole, vrtića….Odvojena mjerila struje, plina i vode, kupaonica i kuhinja adaptirani prije par godina, pvc… PREPORUČUJEMO!

I33517
Matije Divkovića
  • Lokacija Matije Divkovića
  • Grad Zagreb
  • Županija Grad Zagreb
  • Kvart / Općina Stenjevec

Detalji

  • Plin: Ima
  • Samostalni WC: 1
  • Kupaonica + WC: 1
  • Broj katova: 3
  • Grijanje: Plinsko etažno
  • Stanje: Vrlo dobro
  • Vrsta građevine: Zgrada
  • Parking: Na ulici
  • Orijentacija: SI-JZ
  • Kat: Visoko prizemlje
  • Broj etaža: 1

Energetski certifikat

  • Status: U izradi
  • A+
  • A
  • B
  • C
  • D
  • E
  • F
  • G
  • H

Moglo bi Vas zanimati

Compare listings

Compare
Karla Šejla-Šakić
  • Karla Šejla-Šakić