Zemljište, Pazin, Stari Pazin, Prodaja, 1105.00m²

  • €59,000
  • €53 m²
Pazin, Pazin, Lindar
Pazin, Pazin, Lindar

Zemljište, Pazin, Stari Pazin, Prodaja, 1105.00m²

  • €59,000
  • €53 m²
  • I33672
  • ID Nekretnine
  • Zemljište
  • Vrsta nekretnine
  • 1105.00

Prodaja, Zemljište, Pazin, Stari Pazin

ISTRA, LINDAR (okolica) – Građevinska parcela s idejnim projektom

Na prodaju je građevinsko zemljište ukupne površine 1105 m², smješteno u srcu Istre

S terena se pruža, neometan pogled na prostrano poljoprivredno zemljište, time je osigurana apsolutna privatnost i mir.

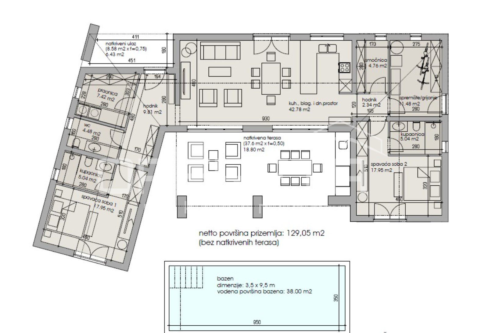
Za parcelu je već izrađeno idejno rješenje za modernu prizemnicu površine 129 m² te pripadajući bazen od 38 m²,

Teren ima osiguran pristupni put, dok su sva potrebna infrastruktura – voda i struja – u neposrednoj blizini.

Ovo je savršena prilika za sve koji traže privatnost, netaknutu prirodu te žele uživati u autentičnim čarima i ljepotama unutrašnje Istre, daleko od gradske vreve.

Ne propustite priliku za kreiranje Vaše istarske oaze.
Za sve dodatne informacije i razgledavanje terena, slobodno nas kontaktirajte.

I33672
Lindar
  • Lokacija Lindar
  • Grad Pazin
  • Županija Istarska
  • Kvart / Općina Pazin

Detalji

  • Namjena: Stambeno
  • Dozvola: Lokacijska
  • Voda: Gradska
  • Kanalizacija: Vlastita
  • Nagib: Ravno

Pogodnosti

Moglo bi Vas zanimati

Compare listings

Compare
Mirjana Panić
  • Mirjana Panić