Zemljište, Poličnik, Prodaja, 560.00m²

  • €91,000
  • €163 m²
Poličnik, Poličnik, Poličnik
Poličnik, Poličnik, Poličnik

Zemljište, Poličnik, Prodaja, 560.00m²

  • €91,000
  • €163 m²
  • I33008
  • ID Nekretnine
  • Zemljište
  • Vrsta nekretnine
  • 560.00

Prodaja, Zemljište, Poličnik

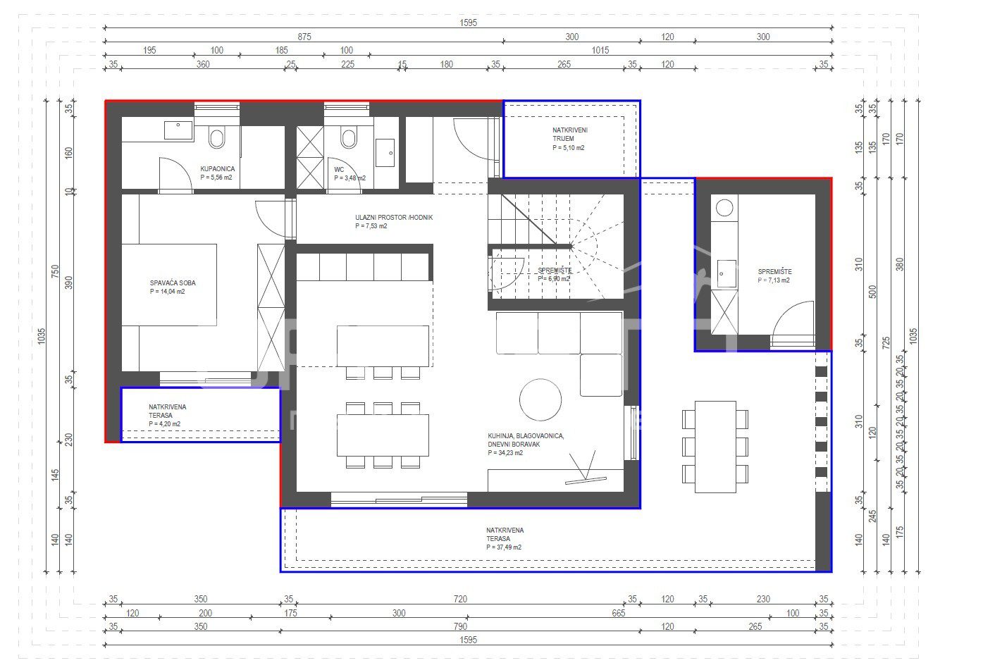
Građevinsko zemljište s dozvolom za kuću i bazen – Poličnik – 560 m2

Na mirnoj lokaciji u naselju Poličnik, s pogledom na planinski lanac Velebita, prodaje se građevinsko zemljište površine 560 m² s pravomoćnom građevinskom dozvolom za gradnju moderne obiteljske kuće s bazenom.

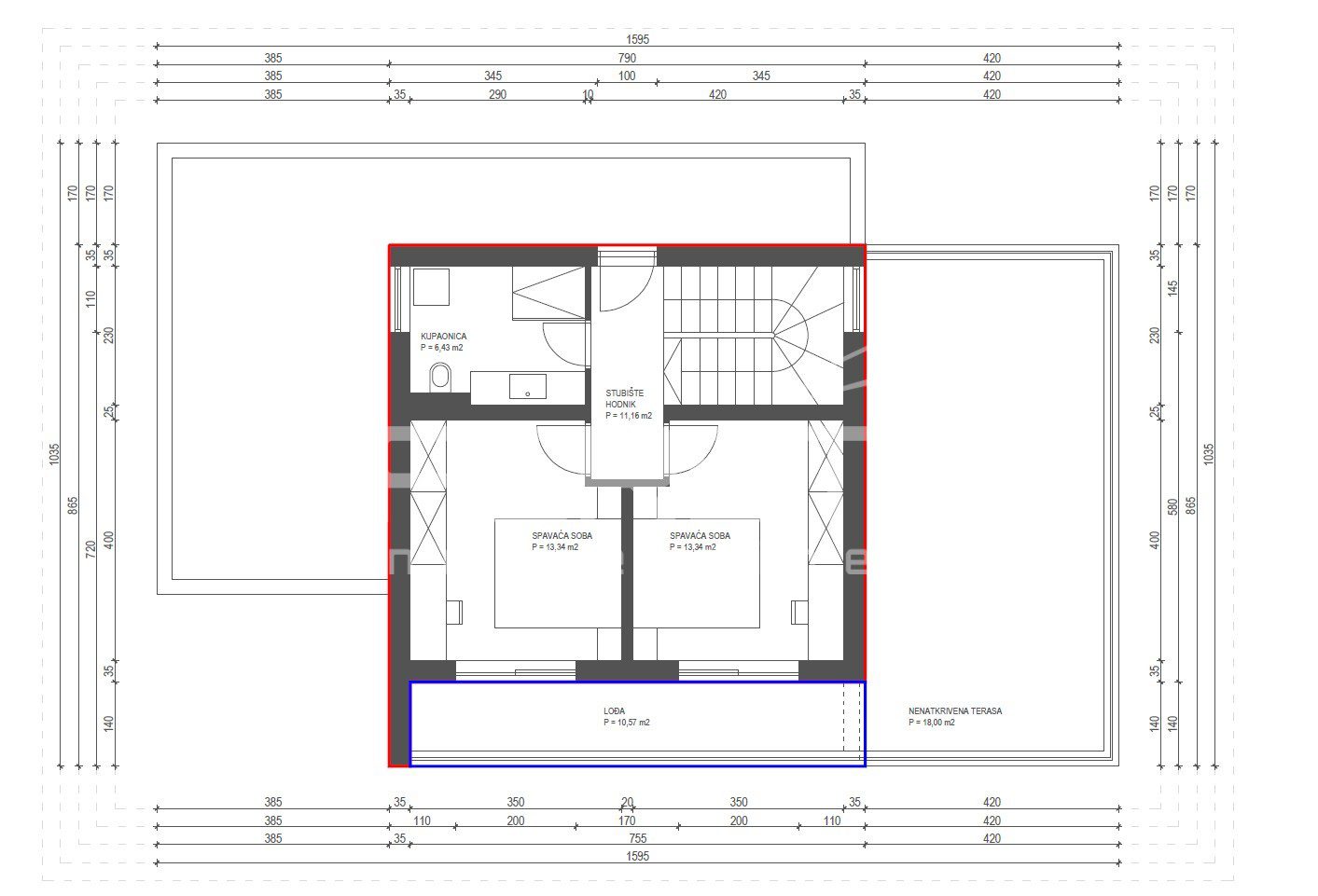
Projekt predviđa slobodnostojeću kuću katnosti prizemlje + kat (P+1), bruto površine 159,57 m², dimenzija 15,95 x 10,35 m i visine vijenca do 5,96 m. Planiran je i vanjski bazen dimenzija 7,70 x 3,50 m i dubine do 1,70 m.

Tlocrtno, prizemlje kuće sastoji se od otvorenog dnevnog boravka s kuhinjom i blagovaonicom, jedne spavaće sobe s vlastitom kupaonicom, gostinjskog toaleta te dvije natkrivene terase, od kojih jedna ima površinu veću od 37 m². U sklopu dvorišta predviđen je i pomoćni objekt koji može služiti kao spremište ili ljetna kuhinja. Na katu su smještene dvije prostrane spavaće sobe, kupaonice, natkrivena lođa i terasa ukupne površine preko 25 m².

Koeficijent izgrađenosti iznosi 30%, a koeficijent iskoristivosti 33%. Udaljenost od susjednih međa usklađena je s prostornim planom, a krov je predviđen kao ravni i neprohodni.
Zemljište ima pristup na javnu prometnicu te mogućnost priključenja na električnu i vodovodnu mrežu. Infrastruktura predviđa vlastiti sustav odvodnje i pročišćavanja otpadnih voda (sabirna jama i uređaj za pročišćavanje).

S obzirom na lokaciju i okruženje, Poličnik pruža savršen balans između urbanog života i mira kojeg nudi ruralno zaleđe. Smješten u blizini svih ključnih sadržaja, uključujući i Zračnu luku Zadar udaljenu svega 15 minuta vožnje, ova lokacija je idealna za stalni dom ili vikend utočište. Zahvaljujući razvijenoj infrastrukturi i prometnoj povezanosti, sve pogodnosti grada Zadra lako su dostupne, a istovremeno je zadržana privatnost i mir.
Autobusna stanica nalazi se na oko 300 m od zemljišta.

Istaknuta cijena je s uključenim PDV-om.
S obzirom na to da je zemljište je u sustavu PDV-a, na kupnju se NE plaća porez na promet nekretninama.

I33008
Poličnik
  • Lokacija Poličnik
  • Grad Poličnik
  • Županija Zadarska
  • Kvart / Općina Poličnik

Detalji

  • Bruto razvijena površina: 160.00
  • Namjena: Stambeno
  • Dozvola: Građevinska
  • Voda: Gradska
  • Kanalizacija: Vlastita
  • Nagib: Ravno

Moglo bi Vas zanimati

Compare listings

Compare
Mia Šoletić
  • Mia Šoletić