Zemljište, Šibenik, Bilice, Prodaja, 1573.00m²

  • €133,700
  • €85 m²
Šibenik, Bilice, Piližote
Šibenik, Bilice, Piližote

Zemljište, Šibenik, Bilice, Prodaja, 1573.00m²

  • €133,700
  • €85 m²
  • I33487
  • ID Nekretnine
  • Zemljište
  • Vrsta nekretnine
  • 1573.00

Prodaja, Zemljište, Šibenik, Bilice

Građevinsko zemljište, 1573 m2, Bilice- Šibenik

Građevinsko zemljište površine 1573 m² smjestilo se u Bilicama, u mirnom i nenaseljenom području, idealnom za one koji traže privatnost i boravak u prirodi, ali žele blizinu grada, mora i autoceste.

Parcela ima asfaltirani pristupni put te svu potrebnu infrastrukturu – vodu, struju i telefon odmah uz zemljište, što omogućava jednostavnije i brže pokretanje gradnje.

Zemljište dolazi s glavnim projektom i troškovnikom, te novom vlasniku štedi vrijeme i novac.
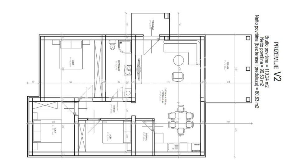
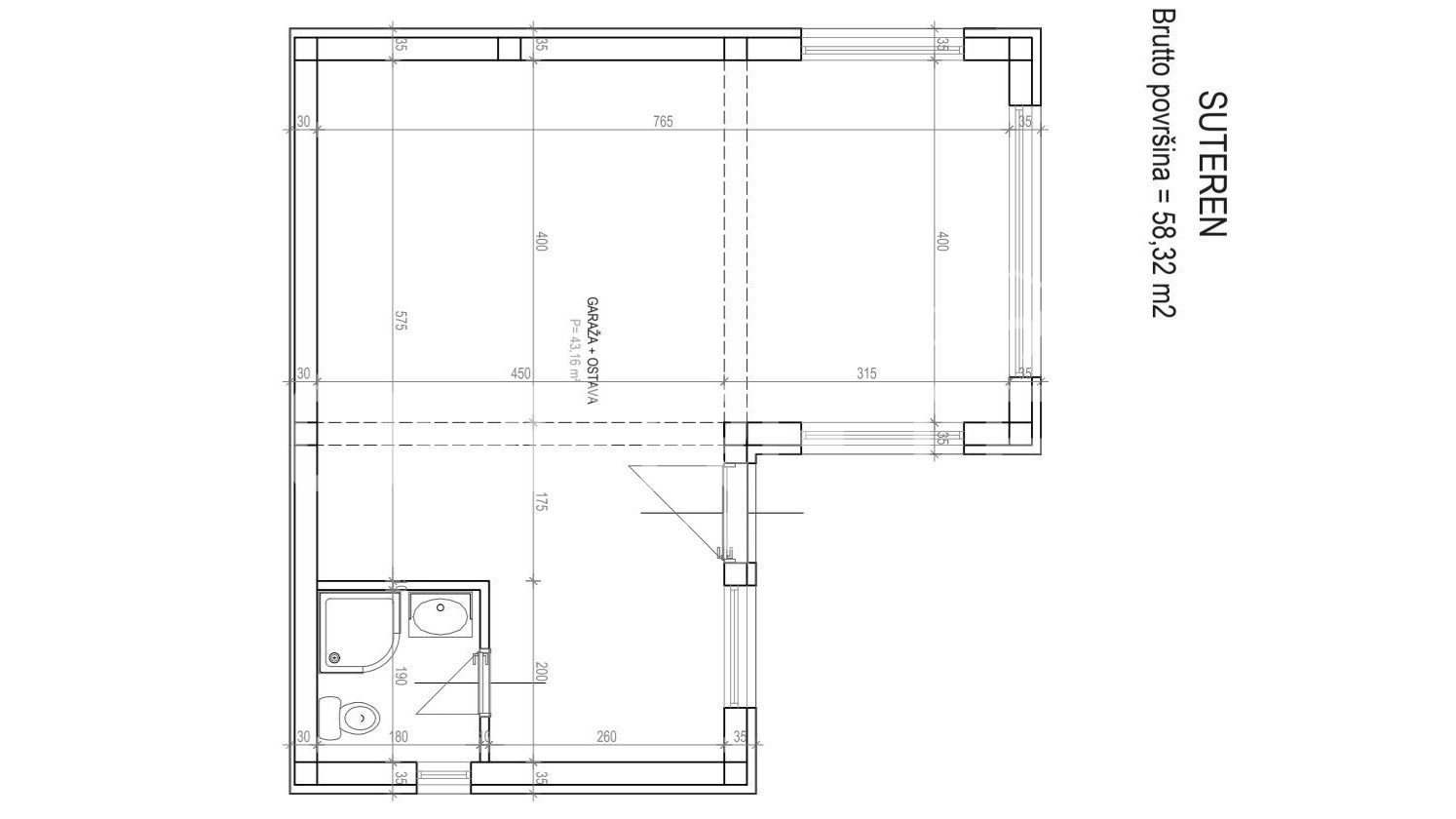
Predviđena je garaža s konobom i kupaonicom u suterenu, neto korisne površine 43 m2.
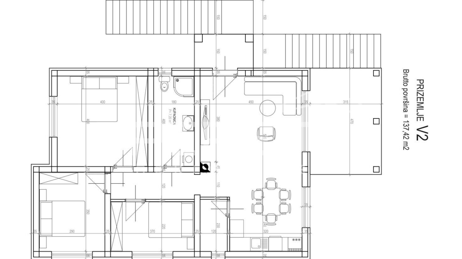
U prizemlju kuće predviđen je stambeni prostor s čak 3 spavaće sobe, hodnikom, kupaonicom, ostavom, “open space” dnevnim boravkom, kuhinjom i blagovaonicom, te natkrivenom terasom s panoramskim pogledom na Prokljan i okolnu prirodu.
NKP prizemlja prema projektu iznosi 99,53 m2, a projekt se može prilagoditi prema željama i potrebama budućeg investitora.

Bilice su sve popularnije mjesto smješteno svega nekoliko kilometara od centra Šibenika i izlaza na autocestu A1.
Zahvaljujući spoju prirodne ljepote, mira i dobre infrastrukture, Bilice se sve više ističu kao jedno od poželjnijih mjesta za život i odmor u okolici Šibenika.

I33487
Piližote
  • Lokacija Piližote
  • Grad Šibenik
  • Županija Šibensko-kninska
  • Kvart / Općina Bilice

Detalji

  • Namjena: Stambeno
  • Voda: Gradska
  • Kanalizacija: Vlastita
  • Plin: Nema
  • Nagib: Blagi nagib

Pogodnosti

Moglo bi Vas zanimati

Compare listings

Compare
Marija Bilić
  • Marija Bilić