Zemljište, Varaždin, Centar, Prodaja, 798.00m²

  • €235,000
  • €319 m²
Varaždin, Varaždin, Varaždin
Varaždin, Varaždin, Varaždin

Zemljište, Varaždin, Centar, Prodaja, 798.00m²

  • €235,000
  • €319 m²
  • I31937
  • ID Nekretnine
  • Zemljište
  • Vrsta nekretnine
  • 798.00

Prodaja, Zemljište, Varaždin, Centar

“PRILIKA”, VARAŽDIN . Vrhunsko građevinsko zemljište s izvedbenim projektom
i pravomoćnom građevinskom dozvolom.
Zemljište s građevinskom dozvolom, izvedbenim projektima i plaćenom komunalnom naknadom. Spremno za početak izgradnje.
Idealno za dvije obitelji ili 2 investitora, jer se kasnije mogu etažirati kao 2 zasebne stambene jedinice.
Vrhunska pozicija u slijepoj ulici (zadnje zemljište u slijepoj ulici). u elitnom dijelu Varaždina, na minutu vožnje do samog centra.
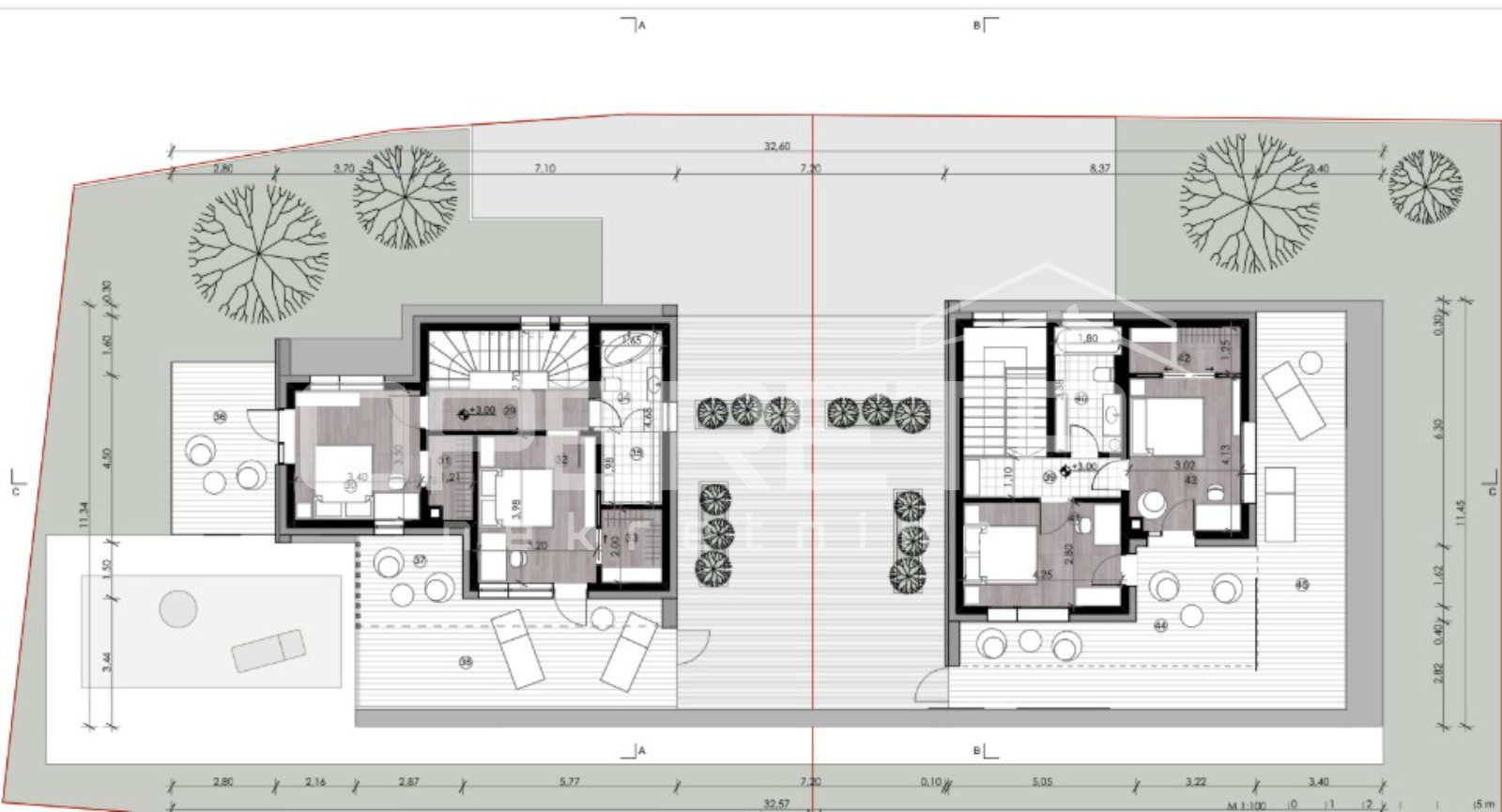
Planirana stambena zgrada biti će nepodrumljena jednokatnica s ravnim krovom, tlocrtne veličine 32.6 m x 10.6 m, maximalne visine 6.50 m, mjereno od kote okolnog terena. Stambena zgrada
– obiteljska kuća sadržavati će dvije stambene jedinice, a svaka od njih imat će natkriveni ulaz, natkrivene i nenatkrivene terase, garažu te nenatkriveno parkirno mjesto.
U sjevernoj stambenoj jedinici: garaža s jednim parkirnim mjestom, glavni natkriveni ulaz, ulazni prostor,
stepenice, kupaonica, gospodarstvo s kotlovnicom, spavaća soba, garderoba, stepenice, kuhinja,
izba, blagovaonica s dnevnim boravkom i vanjska natkrivena i nenatkrivena terasa. Ova stambena
jedinica sadrži bazen dimenzija 7×4 m.
U južnoj stambenoj jedinici: garaža s jednim parkirnim mjestom i spremištem, glavni natkriveni ulaz,
ulazni prostor, stepenice i hodnik, kupaonica, garderoba, spavaća soba s garderobom, gospodarstvo
s kotlovnicom, kuhinja, blagovaonica i dnevni boravak te vanjska natkrivena i nenatkrivena terasa.
Na katu će biti sljedeći sadržaji:
U sjevernoj stambenoj jedinici: hodnik, spavaća soba 2, garderoba 2, spavaća soba 3, garderoba 3, kupaonica sa saunom i vanjska natkrivena i nenatkrivena terasa.
U južnoj stambenoj jednici: hodnik, kupaonica, spavaća soba 2, garderoba 2, spavaća soba 3 te
natkrivena i nenatkrivena terasa.
Grijanje/hlađenje će biti izvedeno za svaki stan posebno putem dizalice topline i klima jedinica.

I31937
Varaždin
  • Lokacija Varaždin
  • Grad Varaždin
  • Županija Varaždinska
  • Kvart / Općina Varaždin

Detalji

  • Namjena: Stambeno
  • Dozvola: Građevinska
  • Voda: Gradska
  • Kanalizacija: Gradska
  • Plin: Nema
  • Nagib: Ravno

Pogodnosti

Moglo bi Vas zanimati

Compare listings

Compare
Darko Jurčec
  • Darko Jurčec