


















































Prodaja, Kuća, Samostojeća, Grad Zagreb, Gornji Grad - Medveščak, Ksaver
Tošovac
Obľúbené
Kalkulátor
Kalkulátor
ID I34019
Detaily
Typ ponuky
Predaj
Typ nehnuteľnosti:
Dom
Veľkosť
227 m2
Veľkosť pozemku
766 m2
Lokalita
Ksaver
Počet izieb
5
Počet kúpeľní
3
Rok výstavby
1972.
Energetický štítok
Vo výstavbe
Dokumentácia
Vlastnícky list
Povolenie na užívanie
Stav
Udržiavané
700.000 €
Popis
PRODAJA OBITELJSKE KUĆE, POMOĆNE KUĆE i GARAŽE, ZAGREB, KSAVER, Ul. TOŠOVAC, 227 m² netto (267 m² brutto).
Prostrana i odlično održavana obiteljska kuća s dodatnom pomoćnom kućom, garažom i uređenom okućnicom. Smještena na mirnoj i zelenoj lokaciji na Ksaveru, svega nekoliko minuta vožnje od centra Zagreba. Ovo je rijetka prilika za obitelj koja želi spoj komfora, privatnosti i blizine svih sadržaja grada.
Glavna kuća – 147 m² netto (176 m² brutto)
Podrum s dva spremišta i saunom
Prizemlje s kuhinjom, dnevnim boravkom, radnom sobom, WC-om i izlazom na natkrivenu terasu
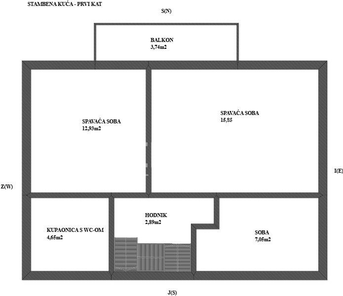
Prvi kat s tri spavaće sobe i kupaonicom s WC-om
Potkrovlje sa spavaćom sobom s vlastitom kupaonicom i hodnikom
Pomoćna kuća – 50 m² netto (66 m² brutto)
Open-space prostor s kuhinjom, blagovaonicom i dnevnim boravkom
Kupaonica s WC-om
Galerija koja se koristi kao spavaći prostor
Garaža – 31 m² netto (41 m² brutto)
Ova nekretnina kombinira udobnost, funkcionalnost i privatnost. Glavna kuća pruža prostran i luksuzan životni prostor, dok pomoćna kuća omogućuje smještaj gostiju, rad od kuće ili dodatni prihod od najma. Garaža i uređena okućnica dodatno podižu kvalitetu života. Lokacija Ksavera osigurava mir i zelenilo, a istovremeno je svega nekoliko minuta vožnje do centra Zagreba.
Ovo je savršena prilika za obitelj koja traži prostranu i luksuznu nekretninu u Zagrebu, rijetku na tržištu.
Preporuka agencije!
Dodatočné
Pivnica
Terasa
Garáž
Parkovisko
Prípojky
Elektrina
Voda
Plynovod
Kúrenie
Plyn
Orientácia
N
S
E
W
Lokalita
Kalkulačka úveru

Filip Mlađen