






Prodaja, Zemljište, Građevinsko, Zagrebačka županija, Samobor, Konšćica
Konšćica
Obľúbené
Kalkulátor
Kalkulátor
ID I30290
Detaily
Typ ponuky
Predaj
Typ nehnuteľnosti:
Pozemok
Veľkosť
871 m2
Veľkosť pozemku
871 m2
Lokalita
Konšćica
Dokumentácia
Stavebné povolenie
140.000 €
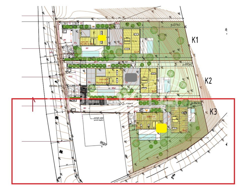
Popis
LAND WITH BUILDING PERMIT FOR BUILDING 2 HOUSES WITH SWIMMING POOLS
On an elevated location with a view of Žumberak, there is a plot of land with a building permit and a project for the construction of 2 houses with a swimming pool. The planned energy certificate of the house is A+. A conceptual project is also available upon request.
The price of the land is 161 eur/m².
In addition to this plot, there is also the possibility of purchasing two additional plots, which would combine the investment project with a total of 6 residential units with their own swimming pools.
An ideal opportunity for a residential solution in a peaceful and idyllic natural environment, yet close to the town of Samobor.
Prípojky
Elektrina
Voda
Luxusné
Pekný výhľad
Lokalita
Kalkulačka úveru

Krunoslav Lisjak