







































Prodaja, Kuća, Samostojeća, Zagrebačka županija, Sveta Nedelja, Strmec
Savska
Dodaj u omiljene
Kreditni kalkulator
Kreditni kalkulator
ID I28857
Detalji
Vrsta usluge
Prodaja
Vrsta nekretnine:
Kuća
Površina
360 m2
Površina parcele
2362 m2
Lokacija
Strmec
Broj soba
6
Broj kupaonica
4
Godina izgradnje
1964.
Energetski certifikat
U izradi
Dokumentacija
Vlasnički list
Uporabna dozvola
Stanje
Održavano
600.000 €
Opis
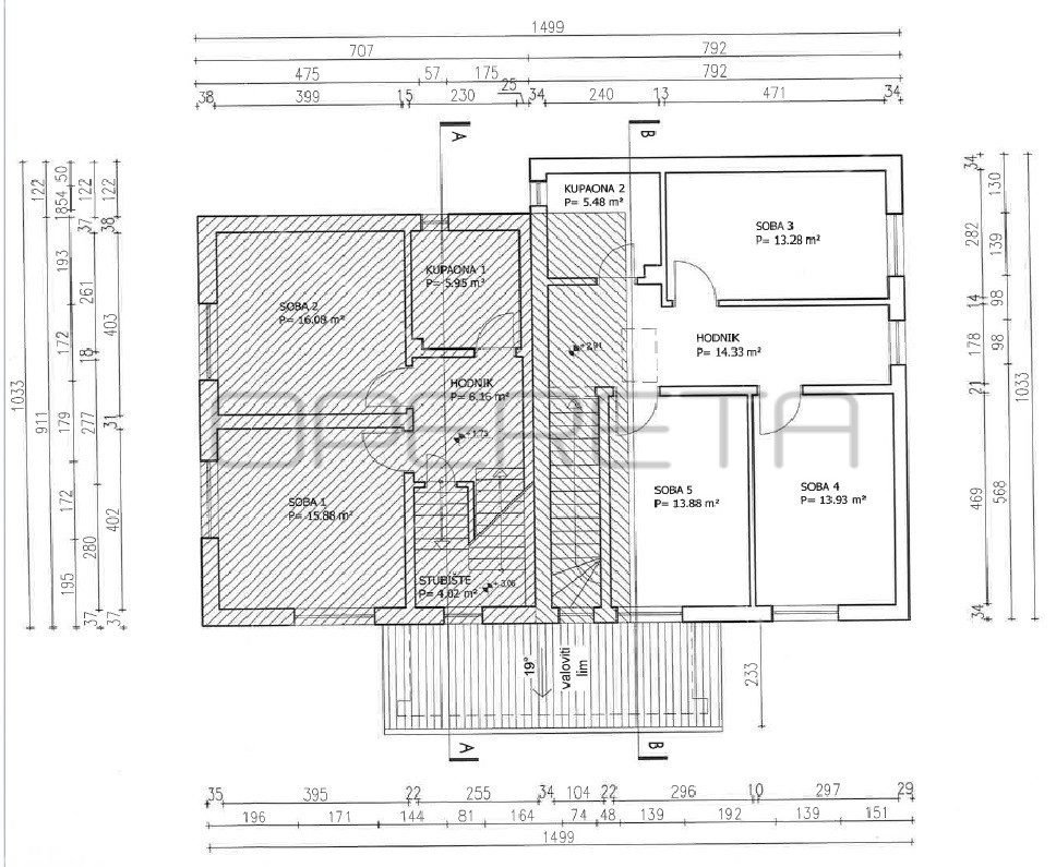
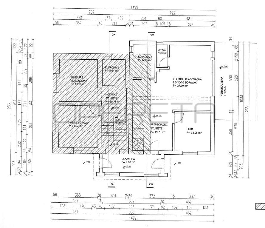
PRODAJA KUĆE, STREMEC, Samostojeća, 360 m². Kuća se nalazi na parceli 1055m². Spojena je sa parcelom površine 1037 m² na kojoj se nalazi vrt i voćnjak. Kuća je kompletno adaptirana 2013. g. te je podijeljena na 2 stambene jedinice od kojih ima zasebni ulaz. I. stambena jedinica sastoji se od: dnevnog boravka, kuhinje i blagovaone, 4 sobe, 3 kupaone, stubišta i hodnika te spremišta.
II. stambena jedinica sastoji se od: kuhinje, blagovane i dnevnog boravka, 4 sobe, 2 kupaone, ostave, stubišta i hodnika. Posjeduje kompletnu dokumentaciju te je moguća kupnja putem kredita.
Značajke
Parkirno mjesto
Priključci
Struja
Voda
Kanalizacija
Grijanje
Plin
Orijentacija
S
J
I
Z
Lokacija
Kalkulator kredita

Matea Kovačević