


PRODAJA, STAN, CRIKVENICA, CENTAR, 2sobni STAN S VRTOM, 41m², odmah useljiv, uredna dokumentacija
Crikvenica
Dodaj u omiljene
Kreditni kalkulator
Kreditni kalkulator
ID I35364
Detalji
Vrsta usluge
Prodaja
Vrsta nekretnine:
Stan
Površina
41 m2
Lokacija
Crikvenica
Broj soba
1
Broj kupaonica
11
Kat
Prizemlje/2
Godina izgradnje
2002.
Energetski certifikat
B
Dokumentacija
Vlasnički list
Stanje
Održavano
155.000 €
Opis
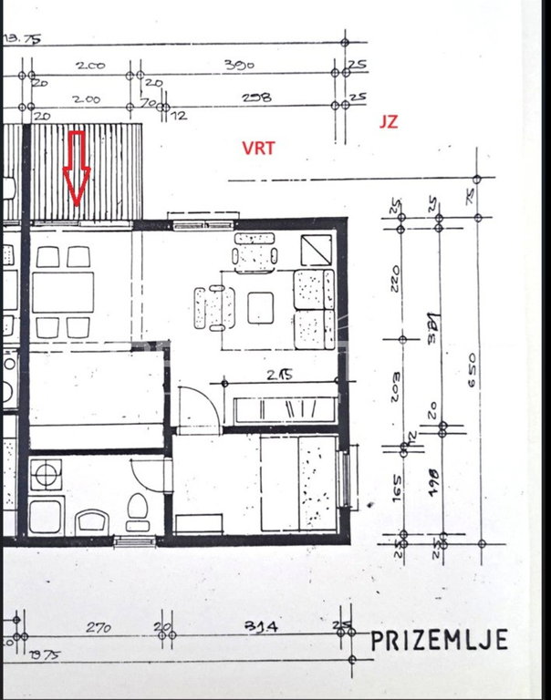
PRODAJA, STAN, CRIKVENICA, CENTAR, u mirnom dijelu centra Crikvenice, prodaje se svijetli, 2- sobni stan od 37 m², u prizemlju s vrtom, u zgradi iz 2002.
Stan se stoji od prostranog dnevnog boravka s kuhinjom i blagovaonicom, manje spavaće sobe i komforne kupaonice ( 36,75 m² u ZK).
Stan ima zasebni ulaz, ispred kojeg je popločana i polunatkrivena terasa, na koju se nastavlja ograđeni vrt ( ukupno 38 m² ), kao ljetni produžetak dnevnog boravka, za druženje, roštilj, opuštanje.
Nalazi se u kvalitetno građenoj zgradi sa 6 stanova, stolarija je PVC i rađena po mjeri, hlađenje i grijanje putem klima uređaja, ima mogućnost parkiranja ispred zgrade.
Stan ima energetski certifikat B, te je zbog svog položaja najugodniji kutak zgrade na ljetnim vrelinama.
U blizini svih sadržaja - na svega 4 minute pješice stiže se do strogog centra, gradske plaže, trgovina, restorana, doma zdravlja, autobusne stanice, tržnice.
Prometno izvrsno povezan - blizina auto ceste, u zadnjoj fazi je izgradnja novog kraka auto ceste oko Crikvenice, blizina aerodroma na Krku, željeznice u Rijeci, te lokalno sa cijelom crikveničko-vinodolskom rivijerom, koja pruža bezbrojne urbane mogućnosti, ali i netaknutu prirodu- od planinarski i biciklističkih staza, skrivenih uvala, blizine gorske i otočne Hrvatske- za dnevne izlete i istraživanje ljepota Hrvatske.
Tražena lokacija i kvadratura.
Za život ili investiciju u jednom od najpoželjnijih dijelova Kvarnera.
Uredna dokumentacija, može i na kredit, useljivo odmah.
Prilika !
Značajke
Terasa
Grijanje
Struja
Orijentacija
SZ
SI
JZ
Lokacija
Kalkulator kredita

Marina Zubak