















Prodaja, Kuća, Dvojna, Grad Zagreb, Novi Zagreb - Zapad, Lučko
Gornjostupnička
Dodaj med priljubljene
Kreditni kalkulator
Kreditni kalkulator
ID I34496
Podrobnosti
Vrsta ponudbe
Prodaja
Vrsta nepremičnine:
Hiša
Velikost
198 m2
Površina parcele
1202 m2
Lokacija
Lučko
Število sob
4
Število kopalnic
2
Leto izgradnje
2026.
Energetska izkaznica
V izdelavi
Dokumentacija
Lastniški list (v postopku)
Gradbeno dovoljenje
Stanje
Novogradnja
530.000 €
Opis
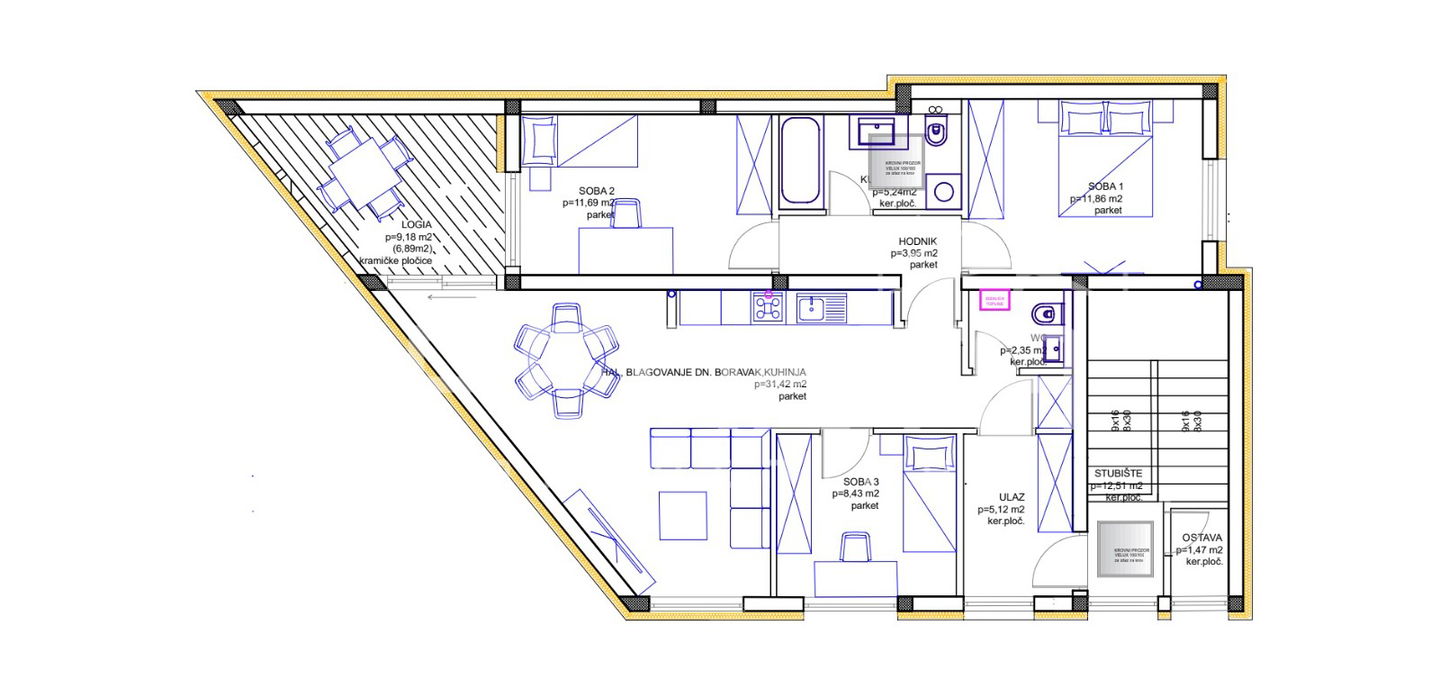
GORNJI STUPNIK, KUĆA, PRODAJA. Prodaje se poluugrađena katnica u mjestu Gornji Stupnik.
Objekt se može završiti i kao dva odvojena stana, isto tako se mogu dodati ili oduzeti spavaće sobe u procesu gradnje.
4 spavaće sobe + 2 dnevna boravaka
Podno grijanje + klime u svakoj sobi
4 parking mjesta
1100m² vrta
Priprema za solarnu elektranu.
OBJEKT JE U IZGRADNJI
USELJIVO POLOVICOM 2026 godine
Dodatno
Parkirišče
Priključki
Elektrika
Voda
Kanalizacija
Ogrevanje
Toplotna črpalka
Orientacija
J
Z
Lokacija
Kreditni kalkulator

Mario Švarc