

















Prodaja, Stan, 4-sobni, Grad Zagreb, Maksimir, Remete
Vinec
Dodaj med priljubljene
Kreditni kalkulator
Kreditni kalkulator
ID I34170
Podrobnosti
Vrsta ponudbe
Prodaja
Vrsta nepremičnine:
Stanovanje
Velikost
144 m2
Lokacija
Remete
Število sob
3
Število kopalnic
2
Nadstropje
Pritličje/2
Leto izgradnje
2025.
Dokumentacija
Lastniški list
Stanje
Novogradnja
648.000 €
Opis
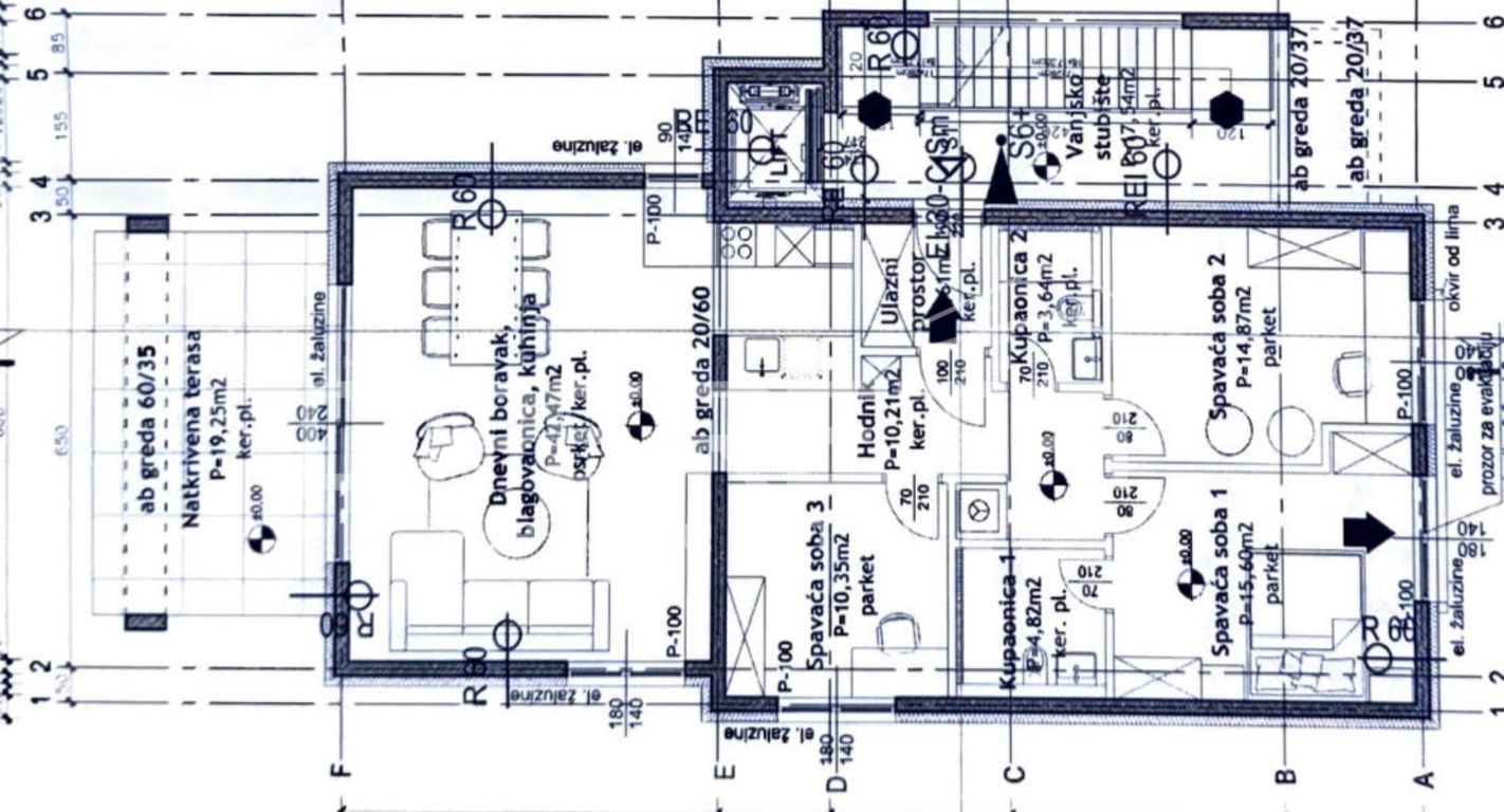
Prodaja, Stan, Novogrdanja, Remete, 4s, 144m², Lift, Garaža.
Stan se sastoji od ulaznog prostora, open space kuhinja/boravak (42,5m²), 3 prostorne spavaće sobe 15,6m², 14,9m², 10.4m²), dvije kupaone, terasa (19m²), vrt (200m²).
Urbana vila se sastoji od 3 stambene jedinice, svaka na jednom katu, stanu pripada jedno garažno, i jedno vanjsko parking mjesto. Zgrada također ima lift.
Visoka kvaliteta gradnje, alu stolarija, električne žaluzine i rolete, dizalice topline, prva klasa parket i keramika.
Ostali detalji na upit.
Dodatno
Dvigalo
Terasa
Garaža
Parkirišče
Ogrevanje
Toplotna črpalka
Orientacija
S
V
Z
Lokacija
Kreditni kalkulator

Tomislav Zanoški
