















































Istra, Poreč okolica - moderna vila s bazenom i pogledom na more
Poreč
Dodaj u omiljene
Kreditni kalkulator
Kreditni kalkulator
ID I32915
Detalji
Vrsta usluge
Prodaja
Vrsta nekretnine:
Kuća
Površina
248 m2
Površina parcele
1005 m2
Lokacija
Poreč
Broj soba
4
Broj kupaonica
4
Godina izgradnje
2025.
Energetski certifikat
A
Dokumentacija
Vlasnički list
Uporabna dozvola
Stanje
Održavano
1.812.500 €
Opis
Istra, Poreč okolica - moderna vila s bazenom i pogledom na more
iz naše ponude izdvajamo vilu okruženu mediteranskim zelenilom i s otvorenim pogledom na more.
Moderno uređena vila koja predstavlja savršen spoj luksuza, udobnosti i suvremene tehnologije.
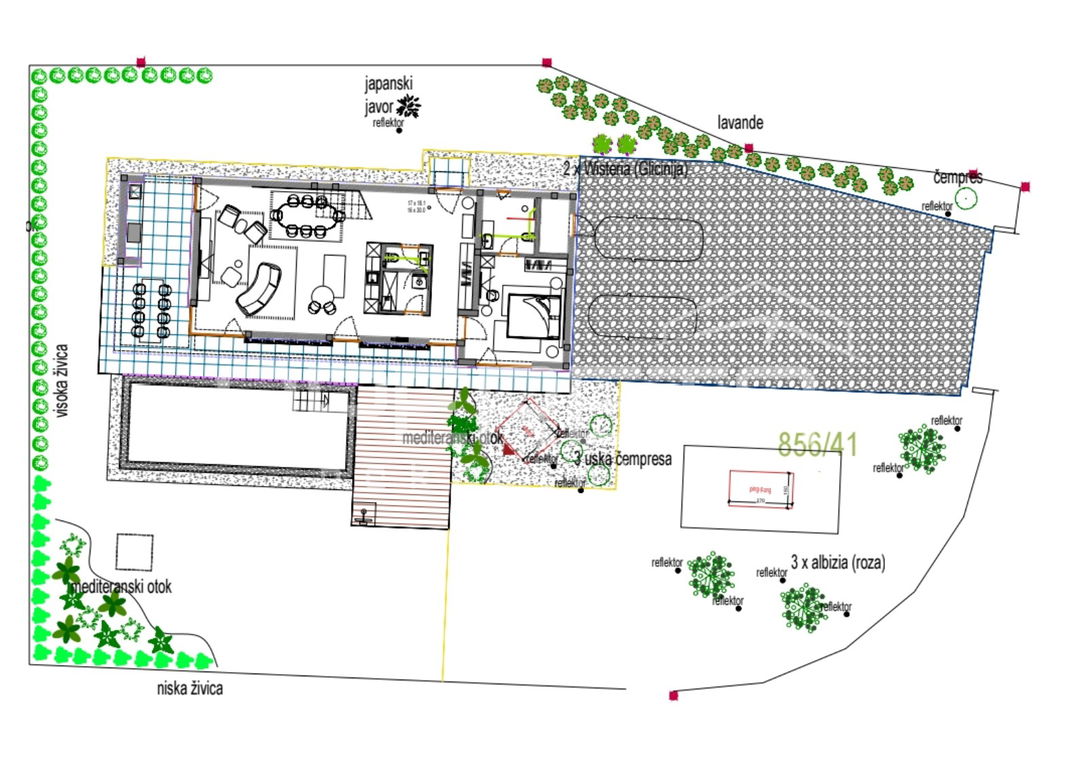
Smještena na prostranoj parceli od 1005 m², vila ukupne stambene površine 248 m² prostire se na dvije etaže i odiše sofisticiranim dizajnom te pažljivo osmišljenim rasporedom prostorija koji pruža visoku razinu privatnosti i komfora.
U prizemlju vile nalazi se ulazni hodnik koji vodi u prostrani dnevni prostor otvorenog koncepta, u kojem su skladno povezane kuhinja, blagovaonica i dnevni boravak s izlazom na veliku natkrivenu terasu.
Interijer je opremljen vrhunskim namještajem renomiranih brendova, dok pomno birani materijali osiguravaju dugotrajnost i besprijekornu estetiku. Na istoj etaži smještena je i spavaća soba s vlastitom kupaonicom, idealna za goste ili svakodnevnu upotrebu bez potrebe za korištenjem stepenica.
Na katu se nalaze tri prostrane spavaće sobe, svaka s vlastitom kupaonicom, a jedna od njih ima i izlaz na veliku terasu s koje se pruža prekrasan pogled na more i okolni pejzaž.
Vanjski prostor vile jednako je dojmljiv kao i interijer. Grijani bazen s inverter pumpom poziva na opuštanje tijekom cijele godine, dok je uređena vanjska kuhinja s lounge zonom savršena za druženja na otvorenom.
U vrtu se nalazi stol za stolni tenis, a okoliš je opremljen automatskim sustavom navodnjavanja te robotskom kosilicom za maksimalnu praktičnost. Pripremljena je instalacija za ugradnju saune kao i za solarne panele, što dodatno povećava energetsku učinkovitost i vrijednost nekretnine i osigurana su četiri nenatkrivena parkirna mjesta.
Vila je opremljena najmodernijim sustavima poput Smart Home tehnologije, podnog grijanja, optičkog interneta, video nadzora, portafona, alarma te dizalice topline koja osigurava optimalnu klimu tijekom cijele godine. Visokokvalitetna aluminijska stolarija s troslojnim staklima, ravni krov te keramičke podne obloge dodatno naglašavaju suvremeni arhitektonski izraz i energetsku učinkovitost.
Luksuzna nekretnina u Istri koja kombinira vrhunsku kvalitetu gradnje, moderan dizajn i pogled na more.
Značajke
Dostupno invalidima
Parkirno mjesto
Priključci
Struja
Voda
Kanalizacija
Grijanje
Dizalica topline
Karakteristike
Pogled na more
Lokacija
Kalkulator kredita

Vilma Spinotti