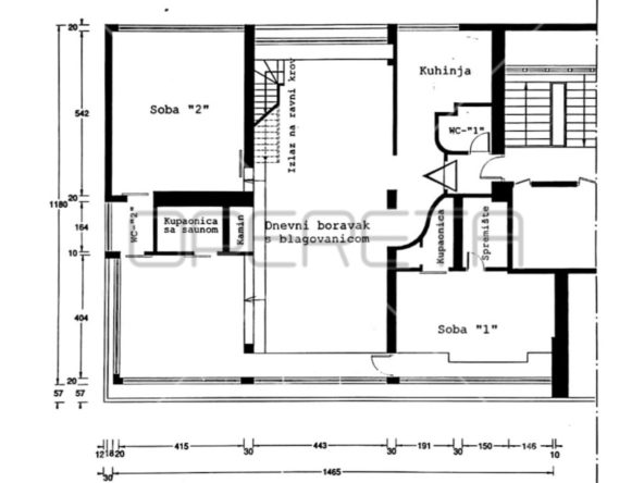
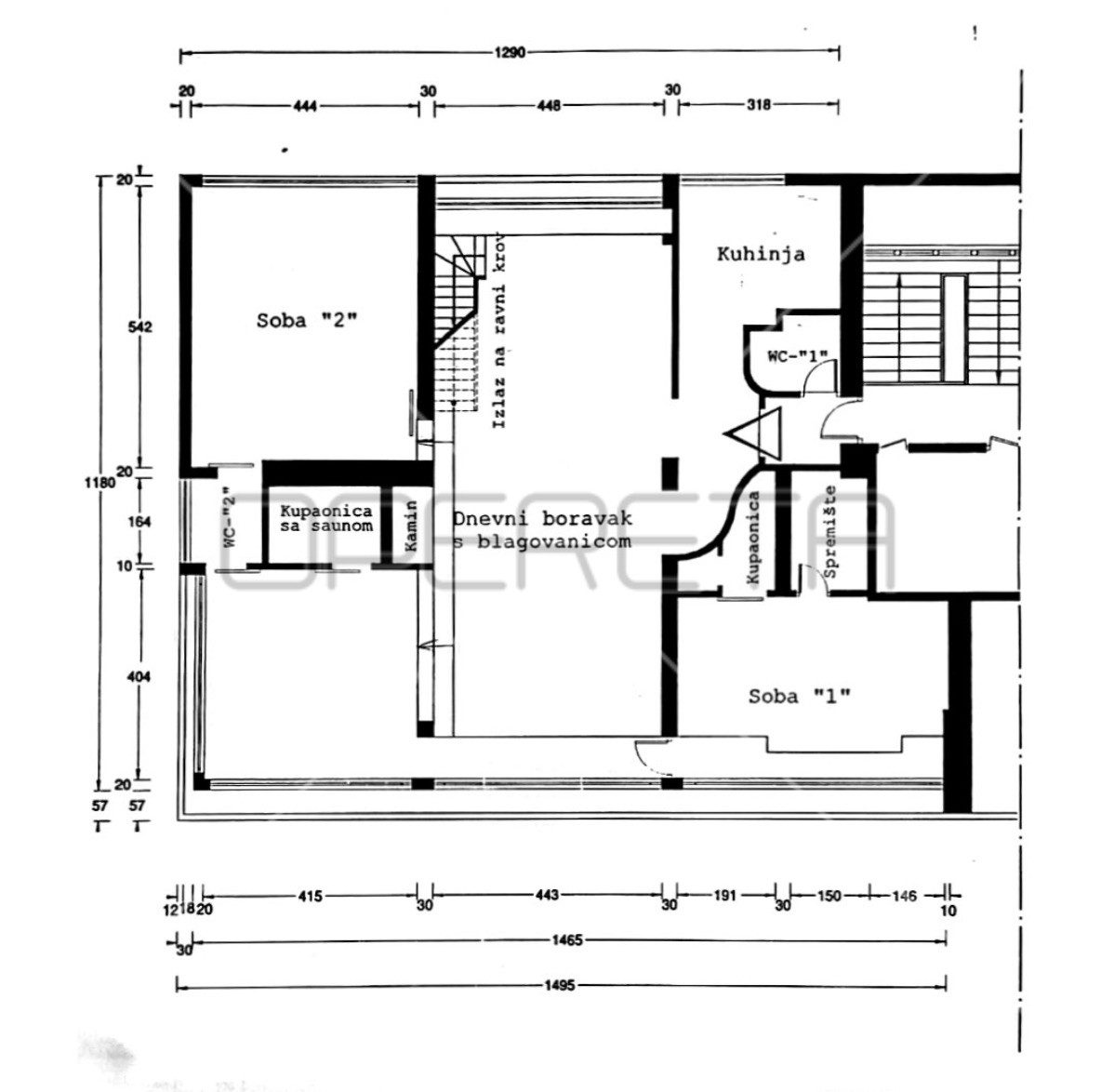
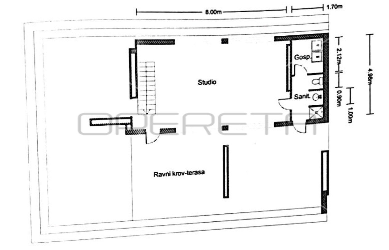
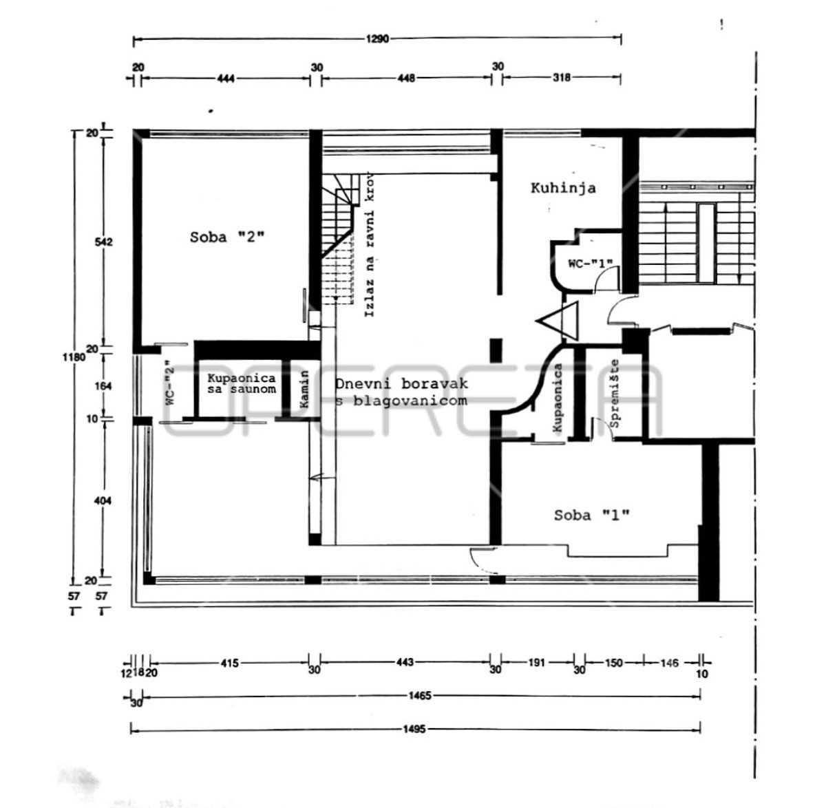
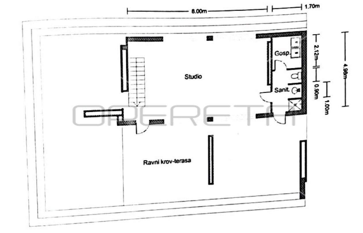
Prodaja, Stan, 4-sobni, Grad Zagreb, Gornji Grad - Medveščak, Centar, 214 m2 | Opereta nekretnine