





























Privlaka/Zadar - lux projekt 70m od mora, Penthouse A201
Privlaka
Dodaj u omiljene
Kreditni kalkulator
Kreditni kalkulator
ID I33226
Detalji
Vrsta usluge
Prodaja
Vrsta nekretnine:
Stan
Površina
111,2 m2
Lokacija
Privlaka
Broj soba
2
Broj kupaonica
1
Kat
2/2
Godina izgradnje
2025.
Dokumentacija
Vlasnički list
Stanje
Novogradnja
369.000 €
Opis
USELJIVO!! Privlaka/Zadar - lux projekt 70m od mora, Penthouse A201
Na samo 70m udaljenosti od mora, u mirnoj Privlaci nedaleko Zadra, nastao je projekt koji je u ovom trenutku useljiv, a koji podiže standard stanovanja na potpuno novu razinu. Tri sofisticirane vile – Astoria, Estera i Gina – osmišljene su za one koji traže više od nekretnine: traže savršenu ravnotežu luksuza, komfora i prestiža.
Položaj otkriva nesvakidašnju panoramu – kristalno plavetnilo Jadrana, obližnje otoke uronjene u sunce i zalaske sunca koji Privlaku pretvaraju u najljepšu pozornicu zapadne Dalmacije. Svaki stan pažljivo je oblikovan kako bi spojio suvremeni dizajn s nenametljivom elegancijom, dok prostrane terase nude privatni kutak s pogledom koji oduzima dah.
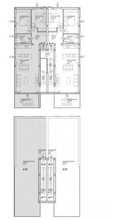
Stan A201 nalazi se na 2. katu, a sastoji se od: hodnika, kupaonice, dnevnog boravka sa kuhinjom i blagavaonicom u open space konceptu, natkrivenog balkona, krovne terase 1, lođe na krovu, unutarnjeg stubiša, 2 prostrane spavaće sobe i parkinga.
Za one koji žele ultimativan doživljaj – penthouse jedinice raspolažu privatnim rooftop terasama s odvojenim ulazom. Mogućnost izvedbe privatnog bazena ili jacuzzija, prostrano sunčalište te elegantni vanjski lounge prostor stvaraju savršenu oazu za opuštanje i uživanje na otvorenom.
Najviši standard gradnje prepoznaje se u svakom detalju: od vrhunskih materijala biranih po kriterijima energetske učinkovitosti i luksuza, do promišljenih prostora koji pružaju osjećaj potpunog mira i profinjenosti. Velike staklene stijene otvaraju interijere prema moru, dok uređeni vrtovi i privatni bazeni stvaraju atmosferu ekskluzivnog resorta – no s udobnošću vlastitog doma.
Ovo nije samo investicija. Ovo je prilika da postanete vlasnik komadića mediteranskog raja – gdje luksuz nije dodatak, nego standard, a svaki dan započinje i završava prizorom koji se pamti.
Značajke
Balkon
Terasa
Parkirno mjesto
Garažno parkirno mjesto
Lođa
Orijentacija
JZ
Lokacija
Kalkulator kredita

Danijela Haide