


























Privlaka/Zadar - luksuzni projekt 70m od mora, stan A001
Privlaka
Dodaj u omiljene
Kreditni kalkulator
Kreditni kalkulator
ID I33223
Detalji
Vrsta usluge
Prodaja
Vrsta nekretnine:
Stan
Površina
89,44 m2
Lokacija
Privlaka
Broj soba
2
Broj kupaonica
1
Kat
Prizemlje/2
Godina izgradnje
2025.
Dokumentacija
Vlasnički list
Stanje
Novogradnja
279.000 €
Opis
USELJIVO!! Privlaka/Zadar - lux projekt 70m od mora, stan A001
Na samo 70m udaljenosti od mora, u mirnoj Privlaci nedaleko Zadra, nastao je projekt koji je u ovom trenutku useljiv, a koji podiže standard stanovanja na potpuno novu razinu. Tri sofisticirane vile – Astoria, Estera i Gina – osmišljene su za one koji traže više od nekretnine: traže savršenu ravnotežu luksuza, komfora i prestiža.
Položaj otkriva nesvakidašnju panoramu – kristalno plavetnilo Jadrana, obližnje otoke uronjene u sunce i zalaske sunca koji Privlaku pretvaraju u najljepšu pozornicu zapadne Dalmacije. Svaki stan pažljivo je oblikovan kako bi spojio suvremeni dizajn s nenametljivom elegancijom, dok prostrane terase nude privatni kutak s pogledom koji oduzima dah.
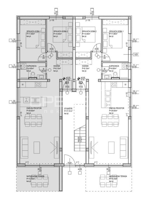
Stan A001 nalazi se u prizemlju, a sastoji se od: hodnika, kupaonice, dnevnog boravka sa kuhinjom i blagavaonicom u open space konceptu, nenatkrivene terase, 2 prostrane spavaće sobe, vrta i parkinga.
Najviši standard gradnje prepoznaje se u svakom detalju: od vrhunskih materijala biranih po kriterijima energetske učinkovitosti i luksuza, do promišljenih prostora koji pružaju osjećaj potpunog mira i profinjenosti. Velike staklene stijene otvaraju interijere prema moru, dok uređeni vrtovi i privatni bazeni stvaraju atmosferu ekskluzivnog resorta – no s udobnošću vlastitog doma.
Za one koji žele ultimativan doživljaj – penthouse jedinice dolaze s vlastitim bazenom ili hidromasažnom kadom, nudeći apsolutnu privatnost i jedinstveni pogled na horizont.
Ovo nije samo investicija. Ovo je prilika da postanete vlasnik komadića mediteranskog raja – gdje luksuz nije dodatak, nego standard, a svaki dan započinje i završava prizorom koji se pamti.
Značajke
Terasa
Parkirno mjesto
Grijanje
Klima uređaj
Orijentacija
JZ
Karakteristike
Pogled na more
Lokacija
Kalkulator kredita

Danijela Haide