













Novogradnja u Staroj Novalji - 2sb s velikom terasom i otvorenim pogledom na more
Brajdica
Dodaj u omiljene
Kreditni kalkulator
Kreditni kalkulator
ID I33046
Detalji
Vrsta usluge
Prodaja
Vrsta nekretnine:
Stan
Površina
65,47 m2
Lokacija
Stara Novalja
Broj soba
2
Broj kupaonica
1
Kat
2/2
Godina izgradnje
2026.
Energetski certifikat
U izradi
Dokumentacija
Vlasnički list
Građevinska dozvola
Stanje
Novogradnja
255.000 €
Opis
Novogradnja u Staroj Novalji - 2sb s velikom terasom i otvorenim pogledom na more
U Staroj Novalji, na nekoliko minuta od mora, grade se tri manje zgrade s po šest stanova, prema visokim građevinskim standardima i suvremenom, elegantnom dizajnu.
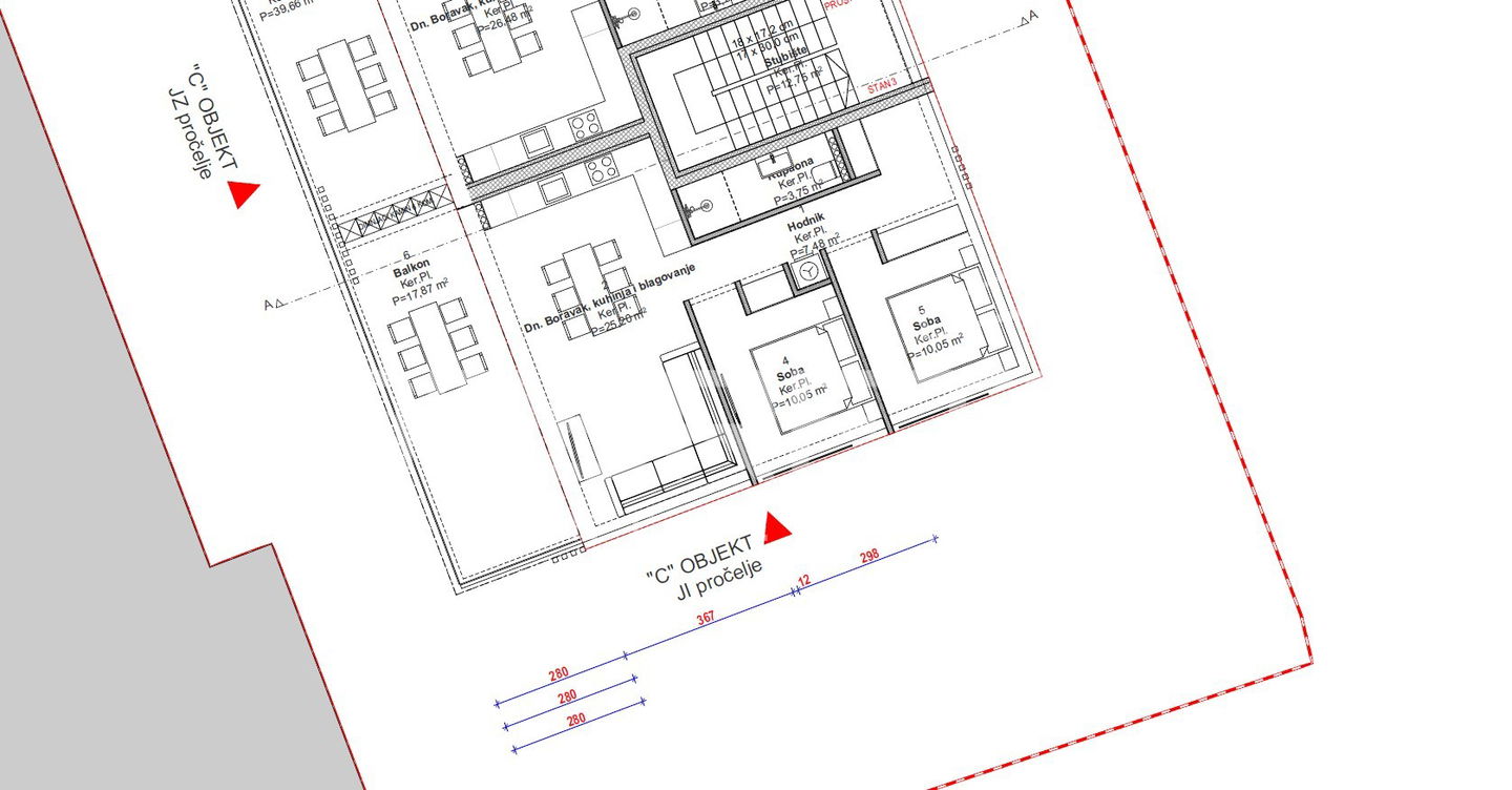
Sve zgrade imaju gotovo iste veličine stanova i tlocrte. Na svakom katu nalaze se dva dvosobna stana s vlastitim terasama.
Zgrada C, Stan 6 - 2. kat - 74,4 m² (bruto površine)
Sastoji se od dvije spavaće sobe, otvorenog dnevnog boravka i kuhinje, s velikom natkrivenom terasom.
U cijenu svakog stana uključeni su besplatno parkirno mjesto i kameni roštilj.
Raspored stanova je funkcionalan i jednostavan za uređenje, s naglaskom na velike vanjske površine i dobro osvijetljen dnevni prostor.
Svaka spavaća soba i dnevni boravak imaju svoj klima uređaj (ukupno 3), a u kupaonicama je provedeno podno grijanje.
Objekt se gradi armiranobetonskom konstrukcijom, s vanjskom toplinskom izolacijom debljine 15 cm, Alu-troslojna podizna stolarija sa stop sol reflektirajućim, kvalitetnim keramičkim oblogama u svim prostorijama i protuprovalnim ulaznim vratima. Prostorije unutar stana su odvojene dvostrukom izolacijom knauf/kamena vuna koje ojačaju zvučnu i protupožarnu zaštitu.
Ulazna vrata u zgradu su Inotherm, protuprovalna aluminijska vrata, dok je stubište zgrade protupožarno osigurano, a svaki stan ima video portafon.
Dobivanje svih potrebnih dozvola predviđeno je u prvom tromjesečju 2026. godine, stoga je razgledavanje je moguće uz prethodnu najavu.
Stara Novalja privlači mirnim okruženjem, blizinom plaža i kristalno čistim morem, a istovremeno nudi dobru povezanost s ostatkom otoka i sadržajima u Novalji.
Ova novogradnja spaja suvremen izgled, visoke standarde gradnje, osiguran parking i mirnu lokaciju.
Značajke
Terasa
Parkirno mjesto
Garažno parkirno mjesto
Protuprovalna vrata
Orijentacija
JZ
Lokacija
Kalkulator kredita

Filip Borovec