


















Penthouse - s panoramskim pogledom na more – Okrug Gornji/Čiovo
Okrug Gornji
Dodaj u omiljene
Kreditni kalkulator
Kreditni kalkulator
ID I31970
Detalji
Vrsta usluge
Prodaja
Vrsta nekretnine:
Stan
Površina
83,76 m2
Lokacija
Čiovo
Broj soba
2
Broj kupaonica
1
Kat
2/2
Godina izgradnje
2025.
Dokumentacija
Vlasnički list
Stanje
Novogradnja
326.664 €
Opis
Penthouse - s panoramskim pogledom na more – Okrug Gornji/Čiovo
Otok Čiovo već je godinama jedno od najtraženijih mjesta za život i odmor na Jadranu, a Okrug Gornji posebno se ističe kao omiljena destinacija – kako među turistima, tako i među obiteljima koje traže mir, sigurnost i prirodu izvan gradskih gužvi.
Na ovoj odličnoj lokaciji, stanovi pružaju sve što vam je potrebno – smješteni na povišenom terenu iznad glavne Copacabana plaže, s pogledom na more čak i iz najniže etaže, dok gornje etaže nude spektakularan panoramski ugođaj. Prostrane natkrivene terase savršene su za opuštanje – jutarnja kava s pogledom ili čaša vina uz zalazak sunca ovdje postaju svakodnevni ritual.
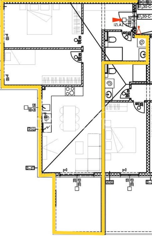
Stan S22 se nalazi na 2. katu i posljednjem katu zgrade s ukupno 28 jedinica, neto stambene površine 67,15m² (bruto 72,83m²) i ukupne obračunske površine 83,76m² sa krovnom terasom. Sastoji se od: hodnika, kuhinje+blagavaonica+dnevni boravak, 2 spavaće sobe, kupaonice i prostrane terase od 11.36m² (koef. 0,50=5,68m²). Krovna terasa se prostire na 66,44m² (koef. 0,25=16,61m²).
Cijena vanjskog parkirnog mjesta: 5.000€
Useljenje je planirano za svibanj 2026. godine. Mirno okruženje, široka asfaltirana ulica i odlična prometna povezanost čine ovu lokaciju savršenim izborom za obitelj ili turističku investiciju.
Planirana je visokokvalitetna gradnja: odlična izolacija, energetski učinkovita fasada (termo fasada EPS 8 cm), PVC stolarija (šesterokomorna - staklo izo 36 mm + staklo izo 20 mm – 3 stakla), aluminijske rolete punjene pur pjenom, kvalitetna podna i zidna keramika, opremljena kupaonica, klima uređaj, podno grijanje u dnevnom prostoru i kupaonici...
Otok Čiovo i Okrug Gornji poznati su po prekrasnim plažama, kristalno čistom moru i brojnim sunčanim danima. Udaljen tek nekoliko minuta vožnje od UNESCO-ovog Trogira i povezan mostom s kopnom, pruža idealan balans između privatnosti, prirode i urbanog sadržaja.
Značajke
Dizalo
Terasa
Parkirno mjesto
Grijanje
Klima uređaj
Karakteristike
Pogled na more
Lokacija
Kalkulator kredita

Danijela Haide