

















































Luksuzan stan AS4 Brodarica/Šibenik – Mediteranski mir i suvremeni luksuz
Brodarice
Dodaj u omiljene
Kreditni kalkulator
Kreditni kalkulator
ID I31890
Detalji
Vrsta usluge
Prodaja
Vrsta nekretnine:
Stan
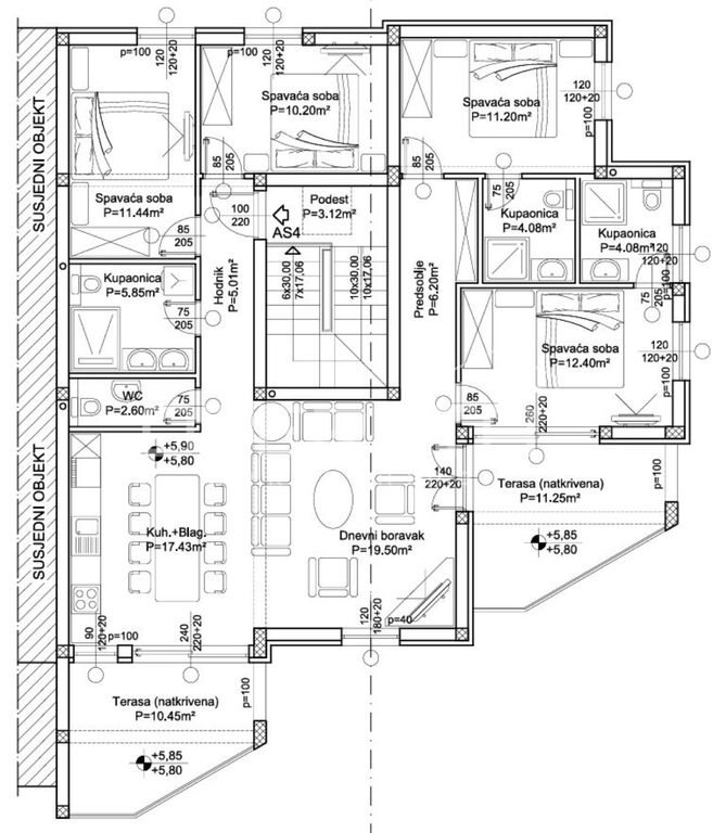
Površina
131,69 m2
Lokacija
Brodarica
Broj soba
4
Broj kupaonica
3
Kat
2/2
Godina izgradnje
2024.
Energetski certifikat
A+
Dokumentacija
Vlasnički list
Stanje
Novogradnja
440.000 €
Opis
Luksuzan stan AS4 Brodarica/Šibenik – Mediteranski mir i suvremeni luksuz na idealnoj lokaciji
Na 100m od mora, u mirnom dijelu Brodarice, smjestio se ovaj useljiv i prostran stan koji savršeno spaja raskoš sa suvremenim dizajnom, funkcionalnost i osjećaj doma. Stan se prostire preko cijele etaže, pružajući maksimalnu privatnost i osjećaj prostranosti u svakom dijelu interijera. Idealan je za one koji traže spoj vrhunske udobnosti, kvalitetne gradnje i blizine mora.
Ova vrhunska nekretnina pruža impresivan pogled na more i atmosferu istinske udobnosti, idealnu za obiteljski život, ali i kao investiciju u nekretninu visoke klase.
Stan se nalazi na drugom katu manje stambene zgrade, pažljivo projektirane kako bi svaki detalj služio udobnosti i kvaliteti stanovanja. Otvoreni dnevni prostor ispunjen svjetlom, suvremena kuhinja, te dvije prostrane terase pružaju savršen balans između privatnosti i prostora za druženje. S četiri spavaće sobe, tri moderno uređene kupaonice i jednog odvojenog toaleta, ovo je dom koji nudi više od klasičnog apartmanskog smještaja.
Kvaliteta gradnje i opreme jasno je vidljiva u svakom elementu – od podnog grijanja do klimatizacije i automatiziranih roleta, svaki aspekt osmišljen je s ciljem pružanja vrhunske razine komfora. Dva privatna parkirna mjesta dodatno doprinose praktičnosti svakodnevnog života.
Blizina plaže i svih ključnih sadržaja čini ovu lokaciju iznimno poželjnom, kako za stanovanje, tako i za luksuzni najam.
Zgrada posjeduje i uporabnu dozvolu, a prodavatelj je tvrtka.
Brodarica, nekadašnje ribarsko naselje, danas je poželjna rezidencijalna zona s izvrsnom infrastrukturom, ugodnom atmosferom i brojnim plažama koje privlače i stanovnike i posjetitelje. Nalazi se samo nekoliko minuta vožnje od Šibenika i u neposrednoj blizini nacionalnih parkova, marine i svih potrebnih sadržaja – savršena lokacija za život uz more.
Ako tražite dom koji će nadmašiti očekivanja ili sigurnu investiciju na jadranskoj obali – kupnja ovog stana je odlična prilika!
Značajke
Parkirno mjesto
Grijanje
Klima uređaj
Karakteristike
Pogled na more
Lokacija
Kalkulator kredita

Danijela Haide