


























Stan Makarska: spoj luksuza, stila i udobnosti
Veliko Brdo
Dodaj u omiljene
Kreditni kalkulator
Kreditni kalkulator
ID I31430
Detalji
Vrsta usluge
Prodaja
Vrsta nekretnine:
Stan
Površina
66,17 m2
Lokacija
Makarska
Broj soba
2
Broj kupaonica
1
Kat
4/4
Godina izgradnje
2024.
Dokumentacija
Vlasnički list
Stanje
Novogradnja
274.680 €
Opis
Stan Makarska: spoj luksuza, stila i udobnosti
Uživajte u panoramskom pogledu na more i planinu Biokovo direktno iz svog stana jer:
ovaj jedinstven projekt predstavlja novu dimenziju luksuza i modernosti na tržištu nekretnina u Makarskoj. Arhitektonsko rješenje, dizajn prostora i kvaliteta gradnje su po najvišim suvremenim standardima, s posebnim naglaskom na zaštitu okoliša i stvaranje vrhunskog životnog okruženja.
Projekt se sastoji od 3 zgrade sa 2 zajednička bazena.
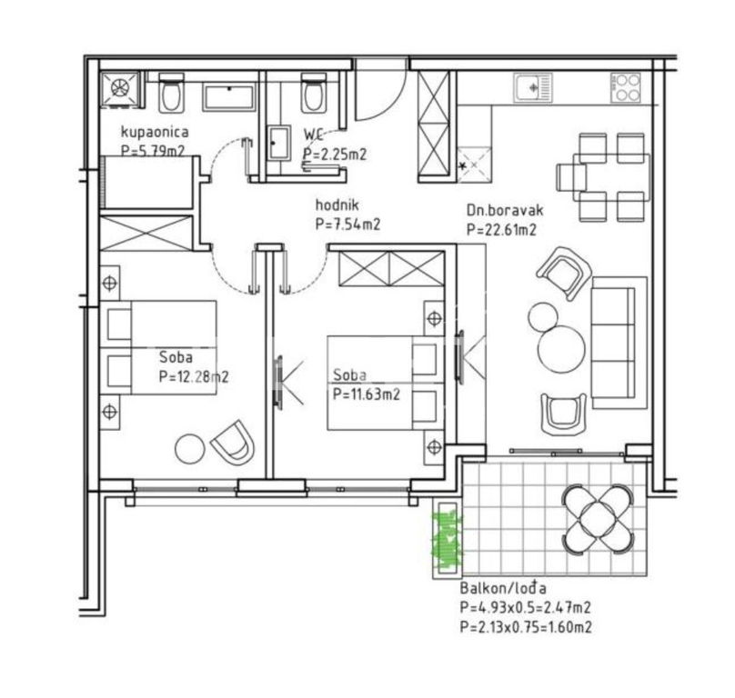
Ovaj stan se nalazi u zgradi broj 1, a površina stana iznosi 66,17 m² i sastoji se od: kupaonice (5,79 m²), WC-a (2,25 m²), hodnika (7,54 m²), dnevnog boravka s blagovaonicom (22,61 m²), dvije spavaće sobe (12,28 m² i 11,63 m²), balkona/lođe (4,93 m² i 2,13 m²)
Garažno parkirno mjesto je uključeno u cijenu.
Završetak radova i useljenje planirani su do kraja ove godine, pa je sada pravi trenutak da osigurate svoj dom ili investiciju.
Udaljenost od mora iznosi 900 m, a od centra Makarske 1.000 m.
Orijentacija stana je jugoistok.
Bogato uređena hortikultura i zajednički bazeni stvaraju idealan ambijent za opuštanje, dok s ove lokacije puca prekrasan panoramski pogled na more i planinu Biokovo.
Značajke
Balkon
Dizalo
Garažno parkirno mjesto
Grijanje
Klima uređaj
Orijentacija
JI
Karakteristike
Pogled na more
Lokacija
Kalkulator kredita

Danijela Haide