


















Stanovi u izgradnji - Makarska - spoj moderne arhitekture i vrhunskih materijala
Centar
Dodaj u omiljene
Kreditni kalkulator
Kreditni kalkulator
ID I31291
Detalji
Vrsta usluge
Prodaja
Vrsta nekretnine:
Stan
Površina
56,41 m2
Lokacija
Makarska
Broj soba
1
Broj kupaonica
1
Kat
Prizemlje/4
Godina izgradnje
2025.
Dokumentacija
Vlasnički list
Stanje
Novogradnja
298.973 €
Opis
Stanovi u izgradnji - Makarska - spoj moderne arhitekture i vrhunskih materijala
U srcu Makarske rivijere, na atraktivnoj lokaciji, u tijeku je izgradnja stanova koji će biti izgrađeni prema najvišim standardima i koji će zadovoljiti i najzahtjevnije kupce.
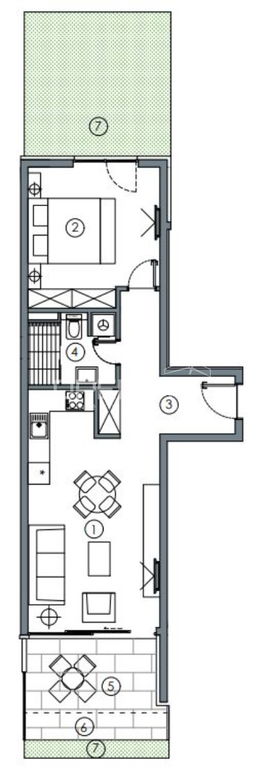
Stan A1 nalazi se u prizemlju neto obračunske površine 56,41m², a sastoji se od: hodnika, dnevnog boravka, kuhinje i blagavaonice u open space konceptu, 1 prostrane spavaće sobe, te loggie/terase i vrta. Ovaj prostor odiše kvalitetom, modernim dizajnom i pažnjom na detalje. Svaka prostorija je pažljivo osmišljena kako bi pružila maksimalnu udobnost i funkcionalnost.
Zgrada se gradi po visokim standardima sa vrhunskim termo, hidro i zvučnim izolacijama. Fasada zgrade: toplinska izolacija od kamene vune debljine 8 cm i silikatna boja. Također zidovi od stanova od strane stubišta bit će obloženi kamenom vunom.
Vanjska stolarija od visokokvalitetnih profila drvo s unutarnje strane / aluminij s vanjske, termoizolacijska stakla i roletne sa električnim upravljanjem.
Staklene ograde na balkonima. Klizne stijenke na balkonima podizno klizne visokokvalitetnih profila drvo sa unutarnje strane / aluminij sa vanjske, termoizolacijska stakla i roletne sa električnim upravljanjem.
U dnevnom boravku, blagovaonicama i sobama visoko kvalitetni parket sa odgovarajućom lajsnom bijele boje.
U kupaonicama podno grijanje, kvalitetne keramičke pločice I klase dimenzija 1,60 m x 1,20 m. Tuševi na principu „walk in“ sa podnom izolacijom i kanalicama, staklenim tuš kabinama.
Visokokvalitetni klima uređaji (Mitsubishi) postavljeni u svaku spavaću sobu i u dnevni boravak, a vanjske jedinice svakog stana bit će na ravnom krovu zgrade.
Ugrađena kompletna LED rasvjetna tijela u cijelom stanu i dodatne led trake, kao i priključnice za telefon, TV / SAT i internet i u dnevnom boravku i u sobama. Prekidači utikači moderni visokokvalitetni u većem broju – parcijalno paljenje rasvjete po stanu.
Uređena hortikultura oko zgrade i vrtova koji pripadaju pojedinim stanovima, usađene biljke i stabla (oleandar, lovor, yucca, bambus, palme, čempresi itd.) I niz drugih značajki koji će ovu zgradu činiti visokokvalitetnom građevinom.
Cijena vanjskog parking mjesta je 15.000€.
Cijena garažnog parking mjesta je 35.000€.
Ne samo da je stan tehnološki napredan, nego nudi i privatnost s prekrasnim pogledima na grad i more. Uređeni vrtovi i hortikultura oko zgrade stvaraju savršeni ambijent za opuštanje, a kvaliteta gradnje ovog stambenog objekta je zajamčena.
Vaš novi dom ili turistička investicija – spoj udobnosti, kvalitete i savršenog života na jednoj od najljepših lokacija u Makarskoj.
Značajke
Dizalo
Terasa
Garaža
Parkirno mjesto
Grijanje
Klima uređaj
Karakteristike
Pogled na more
Lokacija
Kalkulator kredita

Danijela Haide
