





















Novogradnja u Omišu: prostrani trosoban stan s balkonom
Vrisovci
Dodaj u omiljene
Kreditni kalkulator
Kreditni kalkulator
ID I34056
Detalji
Vrsta usluge
Prodaja
Vrsta nekretnine:
Stan
Površina
83,53 m2
Lokacija
Omiš
Broj soba
3
Broj kupaonica
2
Kat
2/4
Godina izgradnje
2025.
Energetski certifikat
U izradi
Dokumentacija
Vlasnički list
Stanje
Novogradnja
329.943 €
Opis
Novogradnja u Omišu: prostrani trosoban stan s balkonom
U mirnom dijelu Vrisovaca, oko pet minuta vožnje do centra Omiša i šljunčanih plaža, nalazi se prostrani dvosobni stan u novogradnji na drugom katu zgrade s liftom. Položaj spaja privatnost i tišinu s praktičnošću svakodnevnog života: brzi izlaz na magistralu, kratka udaljenost do trgovina i usluga te ugodan rezidencijalni ambijent za život tijekom cijele godine ili boravak na moru.
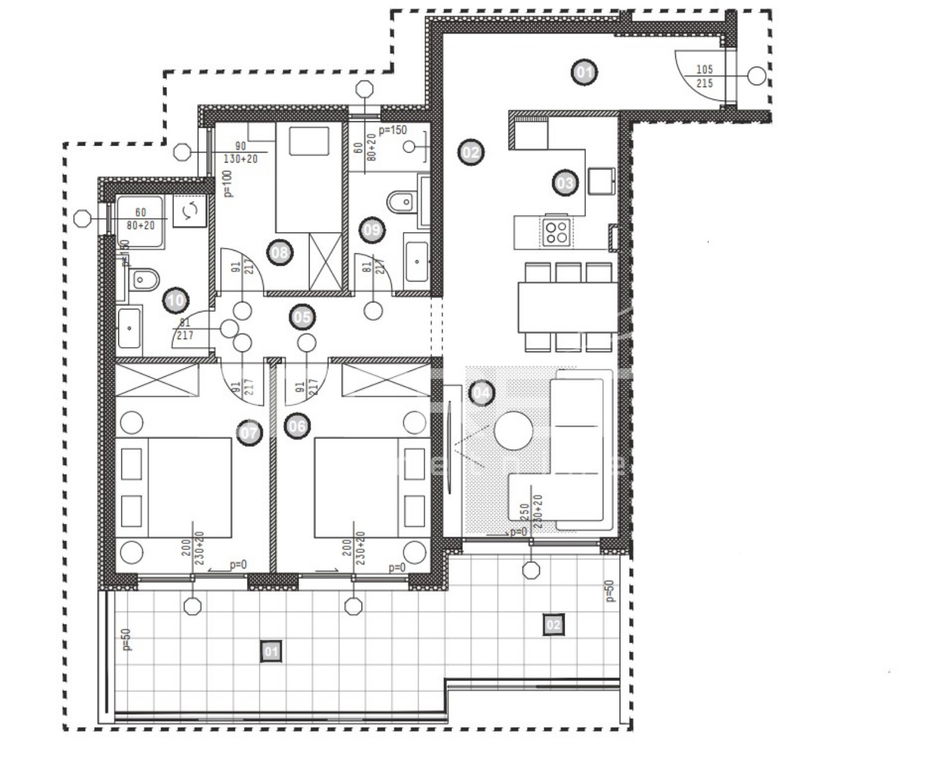
Tlocrt je promišljen i funkcionalan. Neto korisna površina stana iznosi 83,53 m², čineći ga najvećim stanom na katu s tri stana. Ulaz vodi u svijetlu dnevnu zonu otvorenog koncepta u kojoj se kuhinja, blagovaonica i dnevni boravak logično nadovezuju i orijentirani su prema zapadu i jugu, što osigurava obilje prirodnog svjetla. Dvije komforne spavaće sobe smještene su u mirnijem dijelu stana, dok raspored kupaonica (stan ima dvije kupaonice s WC-om) podiže svakodnevnu funkcionalnost i privatnost.
Iz dnevnog boravka i iz obje spavaće sobe izlazi se na natkriveni balkon u obliku slova L, bruto površine 21,85 m², neto 10,93 m², s pogledom na zelenilo i djelomičnim pogledom na more. Dubina i širina balkona omogućuju ugodnu upotrebu kroz veći dio godine.
Završna obrada i oprema potvrđuju visoki standard gradnje. Sve prostorije klimatizirane su radi udobnosti u toplijim mjesecima i prijelaznim razdobljima. U kupaonicama je izvedeno podno grijanje za dodatni komfor. Vanjska stolarija je aluminijska s elektroničkim podizačima roleta. Podovi u dnevnoj zoni i spavaćim sobama izvedeni su u kvalitetnom parketu, dok je u kupaonicama postavljena vrhunska keramika i suvremene sanitarije.
Zgrada je novogradnja s liftom pa je kretanje jednostavno i bez barijera. Spremište nije predviđeno u sklopu ove jedinice. Parkirno mjesto nije uključeno u cijenu, a kupac može zasebno nabaviti garažno ili vanjsko parkirno mjesto ovisno o raspoloživosti, što nudi fleksibilnost prema osobnim potrebama.
Širi kontekst lokacije dodatno podupire kvalitetu svakodnevnog života i investicijski potencijal. Omiš je obalni grad na ušću Cetine s nizom uređenih plaža, šetnicom i bogatom ponudom aktivnosti na otvorenom, od raftinga i kajaka do zipline avantura i planinarskih staza. Povijesni Split s UNESCO zaštićenom Dioklecijanovom palačom, trajektnom lukom i razvijenom kulturnom scenom dostupan je kratkom vožnjom, a međunarodna zračna luka Split i autocesta osiguravaju jednostavne dolaske tijekom cijele godine. U takvom okruženju ovaj stan predstavlja uravnotežen izbor za miran obiteljski život, dom za odmor ili promišljenu investiciju s potencijalom dugoročnog i turističkog najma.
Značajke
Balkon
Garaža
Parkirno mjesto
Grijanje
Klima uređaj
Orijentacija
J
Z
Karakteristike
Pogled na more
Lokacija
Kalkulator kredita

Luigi Borna Paparella