












Prodaja, Stan, 3-sobni, Splitsko-dalmatinska županija, Komiža
Put Batude
Dodaj u omiljene
Kreditni kalkulator
Kreditni kalkulator
ID I34308
Detalji
Vrsta usluge
Prodaja
Vrsta nekretnine:
Stan
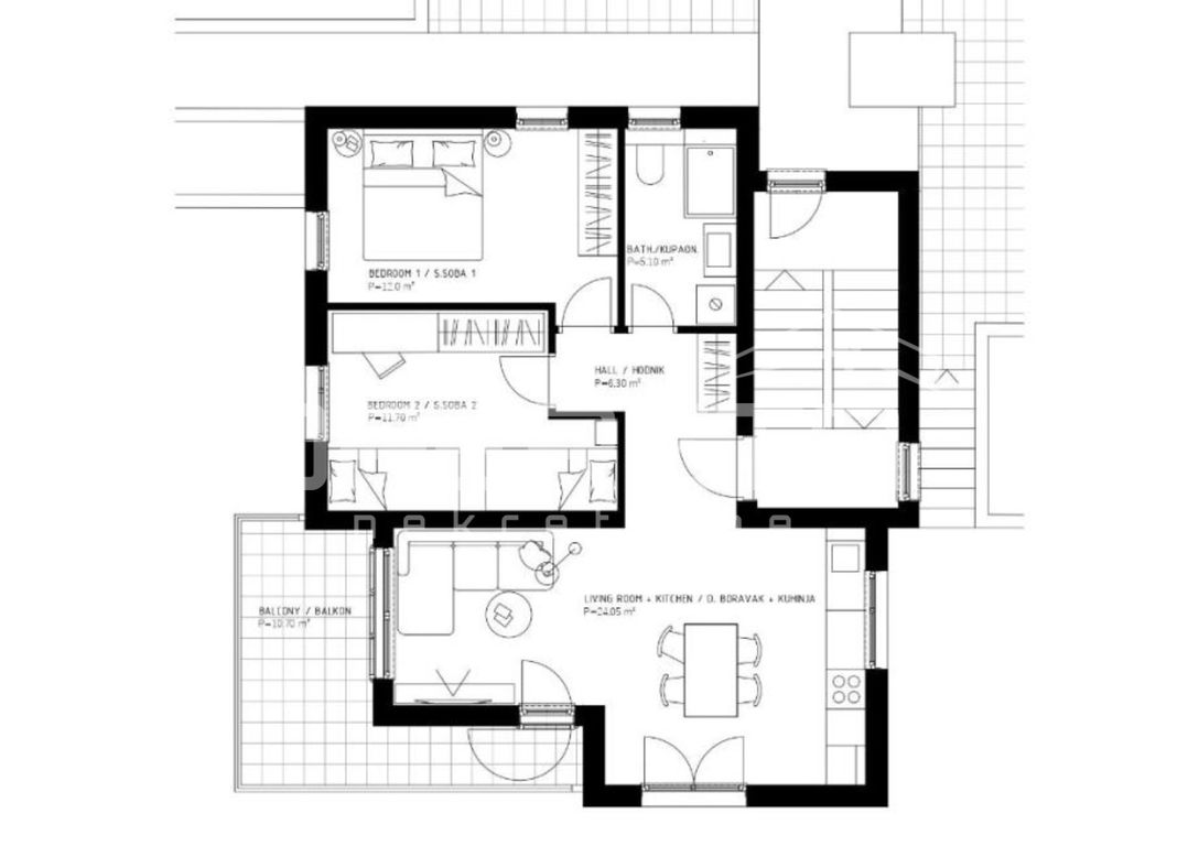
Površina
65 m2
Lokacija
Komiža
Broj soba
2
Broj kupaonica
1
Kat
2/2
Godina izgradnje
2026.
Energetski certifikat
U izradi
Dokumentacija
Vlasnički list
Stanje
Novogradnja
319.000 €
Opis
Na prestižnoj lokaciji u samom srcu Komiže u prodaji je stan u izgradnji površine 65 m², smješten na drugom katu moderne urbane vile, s otvorenim pogledom na prirodu i crkvu svetog Nikole. Stan je osmišljen kao elegantan i funkcionalan životni prostor koji objedinjuje suvremeni dizajn i bezvremenski mediteranski karakter. Stan se sastojoi od dvije spavaće sobe, kupaonice te prostranog open space dnevnog boravaka s kuhinjom i blagovaonicom. Prodaje se u visokoj roh-bau završnoj fazi, s potpuno ugrađenim sanitarnim elementima, kvalitetnim podnim oblogama, postavljenom stolarijom, protuprovalnim ulaznim vratima i svim potrebnim priključcima, dok kuhinja i namještaj nisu uključeni, omogućujući personalizaciju interijera prema najvišim standardima. Gradnja se izvodi korištenjem vrhunskih materijala i suvremenih sustava, uključujući YTONG konstrukciju, kamenom obloženo stubište, PVC stolariju s ALU roletama i griljama, silikatnu završnu obradu pročelja s kamenim detaljima te sustav grijanja i hlađenja putem klima uređaja. Planirani završetak građevinskih radova predviđen je do 1. lipnja 2026. godine, dok su uporabna dozvola i etažiranje planirani tijekom jeseni iste godine.
Komiža je jedno od najekskluzivnijih dalmatinskih mjesta, prepoznatljivo po autentičnom ugođaju, kristalno čistom moru i profinjenom mediteranskom načinu života, što ovu nekretninu čini izuzetnom prilikom za odabrane kupce i investitore.
Značajke
Balkon
Parkirno mjesto
Grijanje
Klima uređaj
Orijentacija
S
J
I
Z
Karakteristike
Pogled na more
Lokacija
Kalkulator kredita

Alma Curl