














Prodaja, Stan, 4-sobni, Zagrebačka županija, Velika Gorica
Velika Gorica - centar
Dodaj u omiljene
Kreditni kalkulator
Kreditni kalkulator
ID I30605
Detalji
Vrsta usluge
Prodaja
Vrsta nekretnine:
Stan
Površina
107 m2
Lokacija
Centar
Broj soba
3
Broj kupaonica
2
Kat
1/2
Godina izgradnje
2024.
Energetski certifikat
A+
Dokumentacija
Vlasnički list
Stanje
Novogradnja
385.000 €
Opis
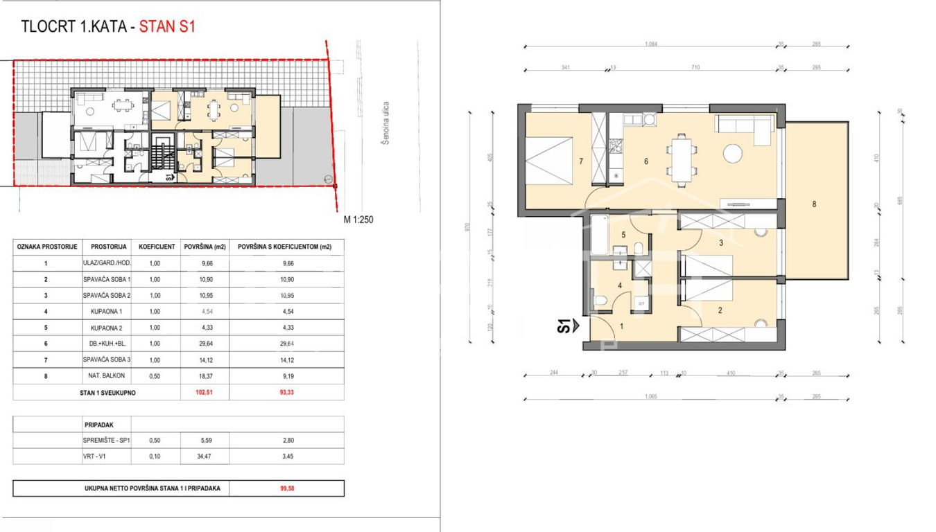
PRODAJA, STAN, Velika Gorica-centar 93,33m²
S1 ZG A 4 soban stan u novogradnji. Odlična urbana vila visoko kvalitetne gradnje, sa samo četiri stana. Luksuzno opremljena: alu profili, el. podizači roleta, dizalica topline, podno grijanje, visokokvallitetna keramika.
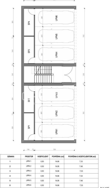
U cijeni je spremište, garažno parkirno mjesto i vrt. Moguća dodatna kupnja još jednog garažnog parkirnog mjesta. Useljenje ODMAH! Lokacija u samom najužem starom centru Velike Gorice.
Značajke
Balkon
Garaža
Parkirno mjesto
Grijanje
Dizalica topline
Lokacija
Kalkulator kredita

Sanda Martinčević