





















Prodaja, Stan, 2-sobni, Splitsko-dalmatinska županija, Vis, Vis
Dubrovačka
Dodaj u omiljene
Kreditni kalkulator
Kreditni kalkulator
ID I34739
Detalji
Vrsta usluge
Prodaja
Vrsta nekretnine:
Stan
Površina
57,7 m2
Lokacija
Vis
Broj soba
1
Broj kupaonica
1
Kat
1/2
Godina izgradnje
2001.
Energetski certifikat
U izradi
Dokumentacija
Vlasnički list
Stanje
Održavano
245.203 €
Opis
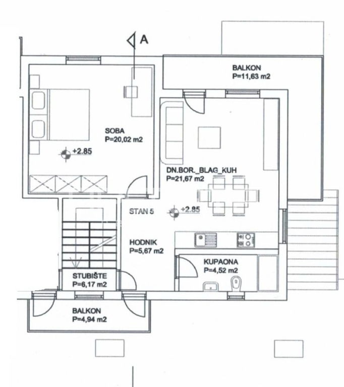
PRODAJA, Vis centar, novouređen 1BDR s natkrivenim balkonom, prilika
Na atraktivnoj lokaciji u gradu Visu, predio Luka, u neposrednoj blizini mora i svih važnih sadržaja, smješten je ovaj namješten i potpuno opremljen, lijepo organiziran stan koji pruža ugodan boravak u samom srcu otoka. Plaže, riva, restorani, trgovine i trajektna luka dostupni su u kratkoj šetnji, što ovu nekretninu čini izuzetno praktičnom kako za svakodnevni život, tako i za odmor. Stan br 5 ima ukupnu korisnu površinu od 63,50 m² i odlikuje se funkcionalnim rasporedom prostora. Sastoji se od ulaznog hodnika, prozračnog dnevnog boravka povezanog s blagovaonicom i kuhinjom, spavaće sobe te kupaonice. Dodatnu vrijednost pruža natkriveni balkon, idealan za opuštanje na otvorenom i uživanje u ugodnoj otočkoj klimi tijekom cijele godine. Mogućnost parkinga u bilizi objekta. Useljenje 1.12.2026.
Zbog svoje odlične pozicije i praktičnog rasporeda, stan predstavlja vrlo dobar izbor za osobno korištenje, ali i kao investicija za turistički najam na jednoj od najtraženijih lokacija na otoku Visu.
Značajke
Parkirno mjesto
Grijanje
Klima uređaj
Lokacija
Kalkulator kredita

Alma Curl