









Novo u ponudi – novogradnja u Makarskoj, stan S6
Zelenka
Dodaj u omiljene
Kreditni kalkulator
Kreditni kalkulator
ID I34862
Detalji
Vrsta usluge
Prodaja
Vrsta nekretnine:
Stan
Površina
135,7 m2
Lokacija
Makarska
Broj soba
3
Broj kupaonica
3
Kat
3/3
Godina izgradnje
2026.
Dokumentacija
Vlasnički list
Stanje
Novogradnja
488.520 €
Opis
Novo u ponudi – novogradnja u Makarskoj, stan S6
U mirnom i urbanom dijelu Makarske, iznad gradske plaže, započinje izgradnja moderne stambene zgrade s tek šest stanova, što ovom projektu daje dodatnu vrijednost privatnosti i ugodnog, nenametljivog susjedstva. Lokacija je savršeno izbalansirana – dovoljno blizu mora i svih sadržaja za lagodnu svakodnevicu, a istovremeno dovoljno povučena da nudi mir i osjećaj doma. Završetak izgradnje planiran je do kraja 2027. godine.
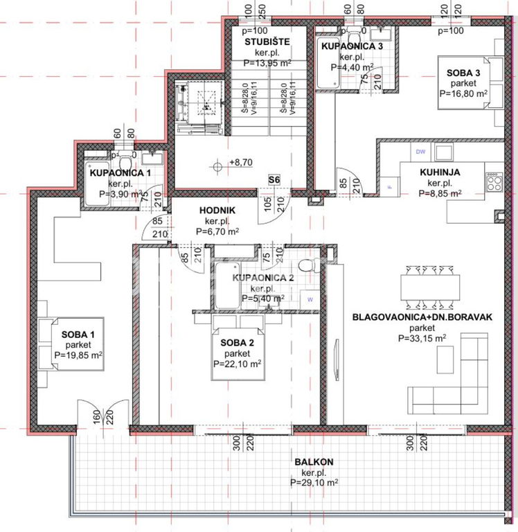
Stan S6 smješten je na trećem katu, prostire se preko cijele etaže i osmišljen je tako da prostor djeluje prozračno, funkcionalno i ugodno za život. Dnevni boravak s blagovaonicom povezan je s kuhinjom i izlazom na prostrani balkon, stvarajući skladnu cjelinu u kojoj se lako zamišlja jutarnja kava na svježem zraku i opuštene večeri nakon dana provedenog na plaži. Tri spavaće sobe sa vlastitim kupaonicama pružaju dovoljno komfora za obitelj ili goste, dok je cijeli stan zamišljen u suvremenom, elegantnom stilu s naglaskom na kvalitetu izvedbe i trajnost materijala.
Posebna vrijednost ove novogradnje je osjećaj komfora koji donosi – lift u zgradi, dostupnost garažnih i vanjskih parkirnih mjesta te blizina svih potrebnih sadržaja čine svakodnevni život jednostavnim i ugodnim. Ova nekretnina nije samo prostor za stanovanje, već prilika za mirniji, kvalitetniji stil života uz more, ali i pametna investicija u turistički iznimno atraktivnom području.
Stan S6 se sastoji od: hodnik 6,70 m², dnevni boravak i blagovaona 33,15 m², kuhinja 8,85m², kupaonica 1 - 3,90 m²,
kupaonica 2 - 4,40m², kupanica 3 - 4,40m², soba 1 - 19,85m², soba 2 - 22,10 m², soba 3 - 16,90m².
Ukupna bruto površina: 150,25m²
Unutarnja stamb. površina: 121,15m²
Balkon: 29,10m² x koef. 0,50..........14,44m²
Neto prodajna površina: 135,70m²
Uz obveznu kupnju:
-2 x garažno mjesto: 1.500€/m² (površine 15-20m²)
I opcionalno:
-Vanjsko parkirno mjesto: 10.000 eura
Ovo je prilika za one koji žele više od nekretnine – dom koji donosi osjećaj odmora svaki dan.
Značajke
Balkon
Dizalo
Garaža
Parkirno mjesto
Grijanje
Klima uređaj
Orijentacija
J
I
Z
Karakteristike
Pogled na more
Lokacija
Kalkulator kredita

Danijela Haide