













GORNJI STUPNIK, STAN, PRODAJA.
Gornjostupnička
Dodaj u omiljene
Kreditni kalkulator
Kreditni kalkulator
ID I35392
Detalji
Vrsta usluge
Prodaja
Vrsta nekretnine:
Stan
Površina
140 m2
Lokacija
Stupnik
Broj soba
2
Broj kupaonica
1
Kat
1/1
Godina izgradnje
2026.
Energetski certifikat
U izradi
Dokumentacija
Vlasnički list (u postupku)
Stanje
Novogradnja
275.000 €
Opis
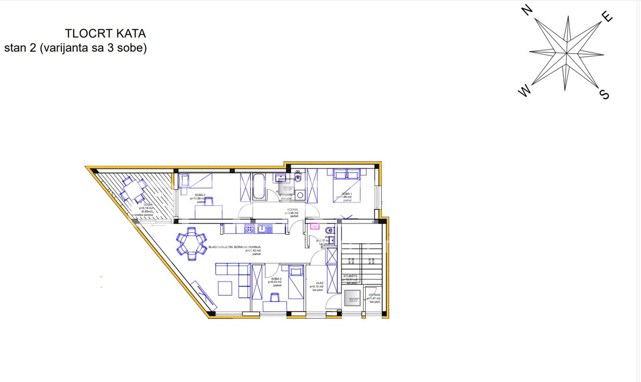
Prodaju se stanovi u mjestu Gornji Stupnik.
Stambeni objekt sa dva stana u procesu gradnje.
Stan Prizemlje
2 ili 3 spavaće sobe (u postupku gradnje se još može odabrati dvije ili tri sobe)
Podno grijanje + klime u svakoj sobi
2 parking mjesta
570m² vrta
Priprema za solarnu elektranu.
Završetak gradnje kraj 2026 godine!
Značajke
Dostupno invalidima
Parkirno mjesto
Grijanje
Dizalica topline
Orijentacija
J
I
Z
Lokacija
Kalkulator kredita

Mario Švarc