









Moderna novogradnja - Dvosoban stan, prizemlje, 79 m², Sveti Filip i Jakov
Sveti Filip Jakov
Dodaj u omiljene
Kreditni kalkulator
Kreditni kalkulator
ID I35402
Detalji
Vrsta usluge
Prodaja
Vrsta nekretnine:
Stan
Površina
83 m2
Lokacija
Sveti Filip i Jakov
Broj soba
2
Broj kupaonica
1
Kat
Prizemlje/2
Godina izgradnje
2026.
Energetski certifikat
U izradi
Dokumentacija
Vlasnički list
Stanje
Novogradnja
332.000 €
Opis
Novogradnja – Dvosoban stan s vrtom, 79 m², prizemlje, Sveti Filip i Jakov, Zadar
Iz ponude izdvajamo dvosoban stan u prizemlju zgrade sa ukupno šest stanova. Zgrada je trenutačno u roh bau fazi izgradnje, sa planiranim završetkom radova u krajem 2026. godine.
Odlična prilika za rješavanje stambenog pitanja ili kupnje nekretnine za odmor, posebno zbog mogućnosti prilagodbe tijekom izgradnje.
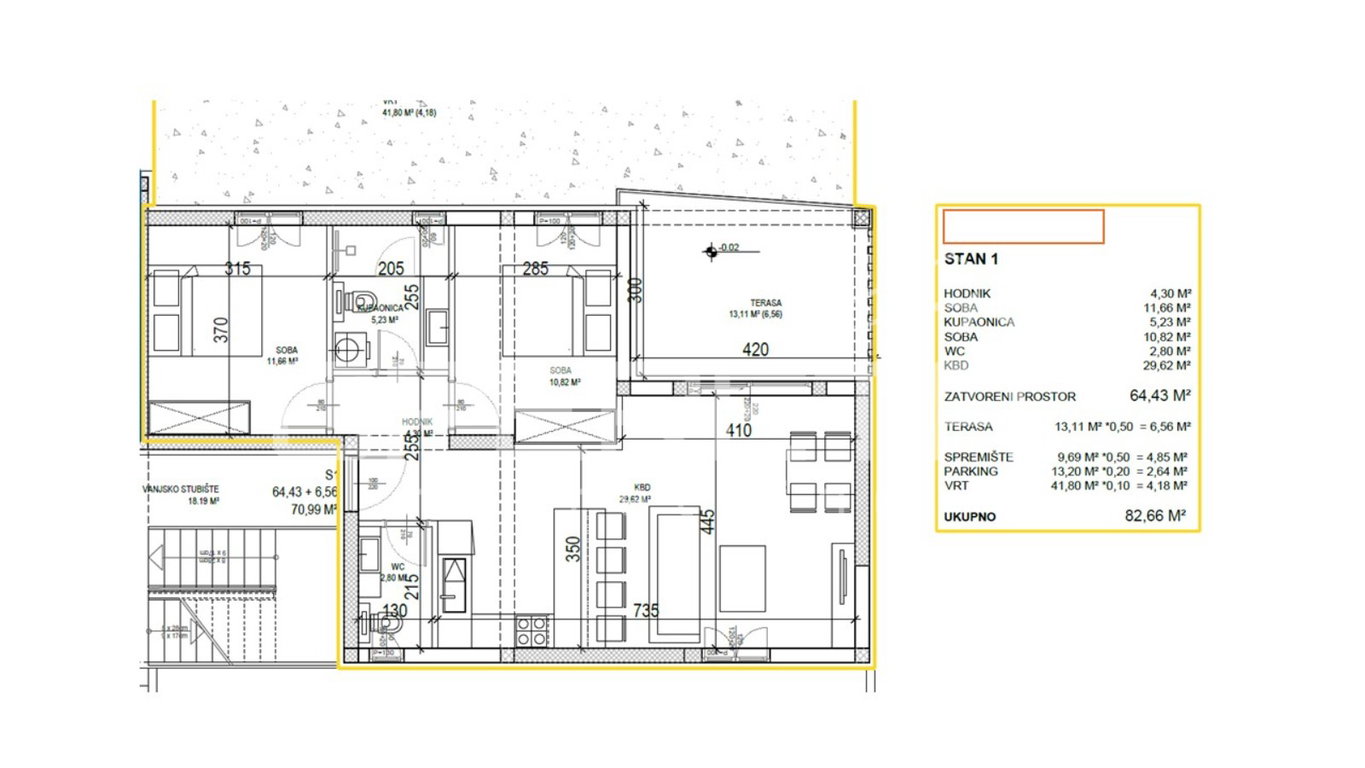
Zatvoreni dio stana je površine 63 m² i čine ga dvije spavaće sobe svaka po 12 m², kupaonica, odvojeni toalet, hodnik i zajednički prostor dnevnog boravka i kuhinje s blagovaonicom površine 30 m². Dnevni prostor se nastavlja na natkrivenu terasu površine 13 m² koju okružuje vrt površine 42 m². Stanu pripada spremište i jedno parkirno mjesto u dvorištu zgrade.
Svaka prostorija će biti klimatizirana, dok je u kupaonicama planirano postavljanje podnog grijanje. U fazi gradnje investitor nudi mogućnost postavljanja podnog grijanja u cijelom stanu uz nadoplatu. Također postoji mogućnost odabira podnih i zidnih obloga prema željama kupaca.
Zgrada ima lift. Ulazna vrata su protuprovalna i protupožarna, dok su unutarnja modernog dizajna sa skrivenim okovima. Planirano je postavljanje visoko kvalitetne pvc stolarije. Pročelje zgrade će biti obloženo travertin pločama.
Investitor je pravna osoba, tako da kupac ne plaća porez na promet nekretninama.
Razgledavanje moguće svim danima u tjednu uz prethodnu najavu.
Sveti Filip i Jakov je mirno dalmatinsko mjesto poznato po uređenim plažama, čistom moru i razvijenoj turističkoj ponudi. U neposrednoj blizini nalaze se Zadar i Biograd na Moru, što dodatno doprinosi izvrsnoj prometnoj povezanosti i dostupnosti svih sadržaja. Kupnja nekretnine u Svetom Filipu i Jakovu predstavlja odličan izbor kako za privatno korištenje, tako i za sigurno ulaganje s dobrim potencijalom turističkog najma.
Značajke
Dizalo
Terasa
Parkirno mjesto
Vrt
Ostava/skladište
Protuprovalna vrata
Grijanje
Klima uređaj
Podno grijanje
Orijentacija
SZ
Karakteristike
Pogled na more
Klima
Mirna lokacija
Lokacija
Kalkulator kredita

Mia Šoletić