





















PRVI RED DO MORA – NOVOGRADNJA – ČIOVO/OKRUG GORNJI
Okrug Gornji
Dodaj u omiljene
Kreditni kalkulator
Kreditni kalkulator
ID I35487
Detalji
Vrsta usluge
Prodaja
Vrsta nekretnine:
Stan
Površina
111,05 m2
Lokacija
Čiovo
Broj soba
3
Broj kupaonica
1
Kat
2/3
Godina izgradnje
2022.
Dokumentacija
Vlasnički list
Uporabna dozvola
Stanje
Novogradnja
500.835 €
Opis
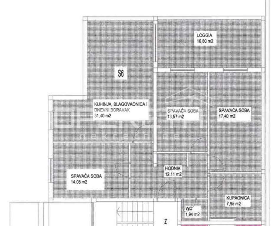
PRVI RED DO MORA – NOVOGRADNJA – ČIOVO/OKRUG GORNJI (S6/10)
Na jednoj od najtraženijih lokacija u Dalmaciji, na otoku Čiovu, u ponudi imamo još nekoliko stanova u novogradnji s uporabnom dozvolom i provedenim etažnim elaboratom. Zgrada se nalazi u prvom redu do mora, uz uređenu šetnicu koja vodi prema glavnoj gradskoj plaži, što ovoj nekretnini daje dodatnu vrijednost i čini je izuzetno atraktivnom kako za boravak tako i za turistički najam.
Iz ponude izdvajamo stan S6 smješten na 2. katu, ukupne obračunske površine 111,05 m².
Zatvoreni dio stana površine 98,45 m² obuhvaća hodnik, kuhinju povezanu s blagovaonicom i dnevnim boravkom, 3 prostrane spavaće sobe, kupaonicu te zasebni WC, dok se vanjski dio odnosi na loggiu površine 16,80 m² (koef. 0,75).
Cijena vanjskog parkirnog mjesta: 10.000€
Ovaj izuzetno komforan trosobni stan nudi prozračan i funkcionalan raspored koji omogućuje ugodan svakodnevni život ili boravak tijekom odmora, uz prirodno povezivanje unutarnjeg i vanjskog prostora koje dodatno naglašava mediteranski način života. Njegova pozicija, kao i neposredna blizina mora i šetnice, pružaju osjećaj privatnosti, ali i stalne povezanosti s okolinom.
Otok Čiovo, povezan mostom s povijesnim gradom Trogirom, poznat je po kristalno čistom moru, lijepim plažama i opuštenoj atmosferi, a istovremeno je izvrsno prometno povezan sa Splitom i zračnom lukom, što ga čini jednom od najpoželjnijih lokacija za život i investiciju na Jadranu.
Značajke
Parkirno mjesto
Lođa
Grijanje
Klima uređaj
Karakteristike
Pogled na more
Prvi red do mora
Lokacija
Kalkulator kredita

Danijela Haide