





















PRVI RED DO MORA – NOVOGRADNJA – ČIOVO/OKRUG GORNJI
Okrug Gornji
Dodaj u omiljene
Kreditni kalkulator
Kreditni kalkulator
ID I35485
Detalji
Vrsta usluge
Prodaja
Vrsta nekretnine:
Stan
Površina
101,5 m2
Lokacija
Čiovo
Broj soba
2
Broj kupaonica
1
Kat
1/3
Godina izgradnje
2022.
Dokumentacija
Vlasnički list
Uporabna dozvola
Stanje
Novogradnja
457.765 €
Opis
PRVI RED DO MORA – NOVOGRADNJA – ČIOVO/OKRUG GORNJI (S6/10A)
Na jednoj od najtraženijih lokacija u Dalmaciji, na otoku Čiovu, u ponudi imamo nekoliko djelomično namještenih stanova u kvalitetnoj novogradnji s uporabnom dozvolom i provedenim etažnim elaboratom. Zgrada se nalazi u prvom redu do mora, uz uređenu šetnicu koja vodi prema glavnoj gradskoj plaži, što ovoj nekretnini daje dodatnu vrijednost i čini je izuzetno atraktivnom kako za boravak tako i za turistički najam.
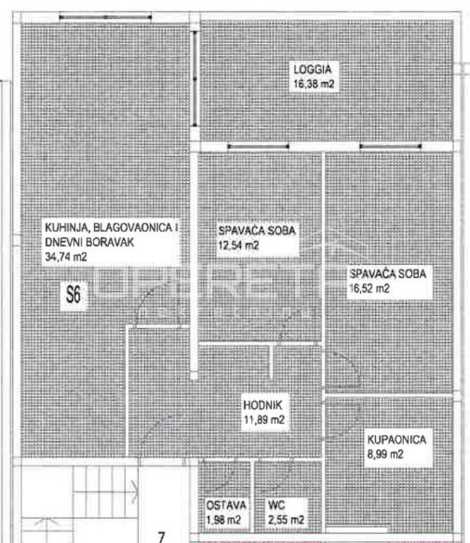
Iz ponude izdvajamo stan S6 smješten na 2. katu, ukupne obračunske površine 101.50 m².
Zatvoreni dio stana površine 89,21 m² obuhvaća hodnik, ostavu, kuhinju povezanu s blagovaonicom i dnevnim boravkom, 2 prostrane spavaće sobe, kupaonicu te zasebni WC, dok se vanjski dio odnosi na loggiu površine 16,38 m² (koef. 0,75).
Cijena vanjskog parkirnog mjesta: 10.000€
Ovaj izuzetno komforan dvosobni stan nudi prozračan i funkcionalan raspored koji omogućuje ugodan svakodnevni život ili boravak tijekom odmora, uz prirodno povezivanje unutarnjeg i vanjskog prostora koje dodatno naglašava mediteranski način života. Njegova pozicija, kao i neposredna blizina mora i šetnice, pružaju osjećaj privatnosti, ali i stalne povezanosti s okolinom.
Otok Čiovo, povezan mostom s povijesnim gradom Trogirom, poznat je po kristalno čistom moru, lijepim plažama i opuštenoj atmosferi, a istovremeno je izvrsno prometno povezan sa Splitom i zračnom lukom, što ga čini jednom od najpoželjnijih lokacija za život i investiciju na Jadranu.
Značajke
Parkirno mjesto
Lođa
Grijanje
Klima uređaj
Karakteristike
Pogled na more
Prvi red do mora
Lokacija
Kalkulator kredita

Danijela Haide