














Penthouse,145m², Primošten- novogradnja
Primošten
Dodaj u omiljene
Kreditni kalkulator
Kreditni kalkulator
ID I35477
Detalji
Vrsta usluge
Prodaja
Vrsta nekretnine:
Stan
Površina
145,87 m2
Lokacija
Primošten
Broj soba
3
Broj kupaonica
3
Kat
3/3
Godina izgradnje
2026.
Energetski certifikat
U izradi
Dokumentacija
Vlasnički list
Stanje
Novogradnja
790.000 €
Opis
U mjestu Primošten u izgradnji je moderna stambena zgrada koja spaja suvremeni dizajn s visokom kvalitetom izvedbe.
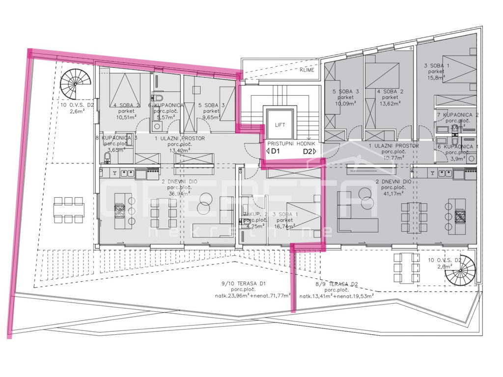
Zgrada se sastoji od ukupno 14 stambenih jedinica raspoređenih na prizemlje i 3 kata.
Penthouse D1 nalazi se na 3. katu i sastoji se od ulaznog prostora, 3 spavaće sobe, 3 kupaonice te "open space" dnevnog boravka, kuhinje i blagovaonice.
Poseban naglasak stavljen je na vanjski prostor, pa stanu pripada natkrivena terasa površine 24 m² te dodatna nenatkrivena terasa od 74 m². Uz stan dolazi i vlastito parkirno mjesto u garaži zgrade, dodatno vanjsko parkirno mjesto te spremište površine 8,78 m².
Beskompromisnu kvalitetu gradnje prati i vrhunska oprema, od ALU stolarije s električnim podizačima roleta i komarnicima do podnog grijanja u kupaonicama opremljenih kvalitetnim sanitarijama i premium keramikom.
Grijanje i hlađenje svih prostorija riješeno je sa Samsung multi-split inverter klima sustavom s unutarnjim jedinicama integriranim u spušteni strop za diskretan dizajn.
Estetski dojam upotpunjuju staklene ograde na terasama, moderna LED rasvjeta i protuprovalna i protupožarna vrata.
Dovršetak radova i useljenje u planirani su za 15. srpnja 2026. godine.
Objekt je smješten na izvrsnoj lokaciji, na manje od kilometar udaljenosti od starog dijela Primoštena i čuvenih plaža koje ovo mjesto čine jednom od najpoželjnijih jadranskih destinacija.
Dostupna su i još 3 stana u prizemlju.
Značajke
Dizalo
Terasa
Garaža
Parkirno mjesto
Garažno parkirno mjesto
Ostava/skladište
Lokacija
Kalkulator kredita

Marija Bilić