









Moderan trosoban stan (80,60m²) na top lokaciji u Puli!
Pula
Dodaj u omiljene
Kreditni kalkulator
Kreditni kalkulator
ID I35646
Detalji
Vrsta usluge
Prodaja
Vrsta nekretnine:
Stan
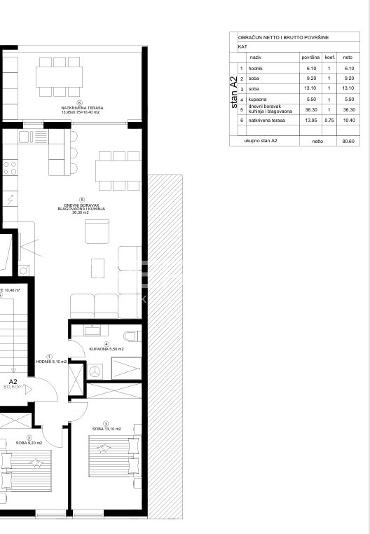
Površina
91,55 m2
Lokacija
Pula
Broj soba
2
Broj kupaonica
1
Kat
1/2
Godina izgradnje
2026.
Energetski certifikat
A
Dokumentacija
Vlasnički list
Stanje
Novogradnja
310.000 €
Opis
Prodaje se atraktivan stan koji nudi savršen spoj mira i urbane praktičnosti. Smješten u mirnoj ulici na periferiji Pule, stan je idealan za one koji žele privatnost, a istovremeno biti nadomak svih sadržaja.
Ključne karakteristike nekretnine:
Lokacija: Pula, mirna ulica na periferiji grada.
Parking: Stan ima 2 natkrivena parkirna mjesta, što osigurava bezbrižan povratak kući.
Blizina sadržaja: Neposredna blizina shopping centra i teretane, te ostalih bitnih sadržaja za svakodnevni život.
Tip stana: Trosobni stan (2 spavaće soba + dnevni boravak).
Grijanje i hlađenje:
Klima uređaji u dnevnom boravku i svim spavaćim sobama.
Električno podno grijanje u dnevnom boravku, blagovaonici, kuhinji, hodniku i kupaonici.
Podne obloge:
Laminat u spavaćim sobama.
Keramičke pločice u ostatku stana.
Stolarija: Kvalitetna PVC stolarija antracit boje s ugrađenim komarnicima.
Ovaj stan predstavlja izvrsnu priliku za moderan život u mirnom okruženju, bez odricanja od pogodnosti koje nudi grad. Zahvaljujući vrhunskoj opremi poput podnog grijanja i sustava klimatizacije u svakoj prostoriji, te osiguranom parkingu, stan pruža visoku razinu komfora.
Za više informacija i dogovor razgledavanja, kontaktirajte nas!
Značajke
Terasa
Parkirno mjesto
Garažno parkirno mjesto
Orijentacija
J
Lokacija
Kalkulator kredita
Kristina Majer Cekada