



















Prodaja, Zemljište, Građevinsko, Varaždinska županija, Varaždin, Centar
Varaždin
Dodaj u omiljene
Kreditni kalkulator
Kreditni kalkulator
ID I31937
Detalji
Vrsta usluge
Prodaja
Vrsta nekretnine:
Zemljište
Površina
798 m2
Površina parcele
798 m2
Lokacija
Centar
Dokumentacija
Građevinska dozvola
213.000 €
Opis
"PRILIKA", VARAŽDIN . Vrhunsko građevinsko zemljište s izvedbenim projektom
i pravomoćnom građevinskom dozvolom.
Zemljište s građevinskom dozvolom, izvedbenim projektima i plaćenom komunalnom naknadom. Spremno za početak izgradnje.
Idealno za dvije obitelji ili 2 investitora, jer se kasnije mogu etažirati kao 2 zasebne stambene jedinice.
Vrhunska pozicija u slijepoj ulici (zadnje zemljište u slijepoj ulici). u elitnom dijelu Varaždina, na minutu vožnje do samog centra.
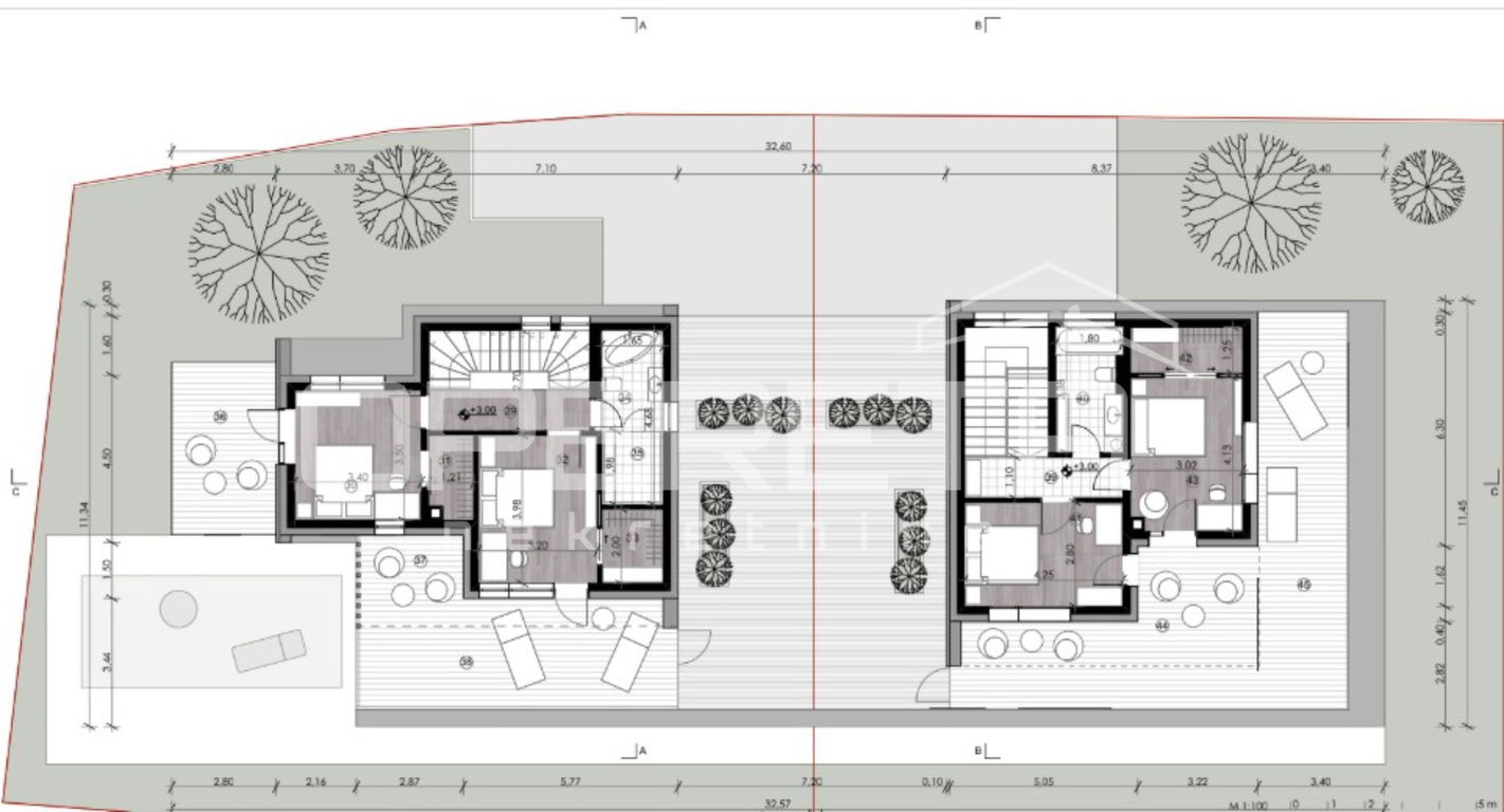
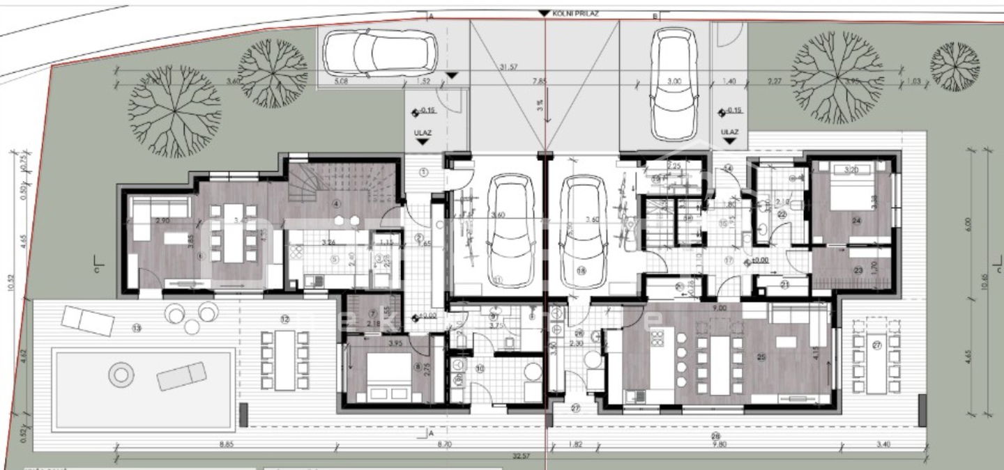
Planirana stambena zgrada biti će nepodrumljena jednokatnica s ravnim krovom, tlocrtne veličine 32.6 m x 10.6 m, maximalne visine 6.50 m, mjereno od kote okolnog terena. Stambena zgrada
– obiteljska kuća sadržavati će dvije stambene jedinice, a svaka od njih imat će natkriveni ulaz, natkrivene i nenatkrivene terase, garažu te nenatkriveno parkirno mjesto.
U sjevernoj stambenoj jedinici: garaža s jednim parkirnim mjestom, glavni natkriveni ulaz, ulazni prostor,
stepenice, kupaonica, gospodarstvo s kotlovnicom, spavaća soba, garderoba, stepenice, kuhinja,
izba, blagovaonica s dnevnim boravkom i vanjska natkrivena i nenatkrivena terasa. Ova stambena
jedinica sadrži bazen dimenzija 7x4 m.
U južnoj stambenoj jedinici: garaža s jednim parkirnim mjestom i spremištem, glavni natkriveni ulaz,
ulazni prostor, stepenice i hodnik, kupaonica, garderoba, spavaća soba s garderobom, gospodarstvo
s kotlovnicom, kuhinja, blagovaonica i dnevni boravak te vanjska natkrivena i nenatkrivena terasa.
Na katu će biti sljedeći sadržaji:
U sjevernoj stambenoj jedinici: hodnik, spavaća soba 2, garderoba 2, spavaća soba 3, garderoba 3, kupaonica sa saunom i vanjska natkrivena i nenatkrivena terasa.
U južnoj stambenoj jednici: hodnik, kupaonica, spavaća soba 2, garderoba 2, spavaća soba 3 te
natkrivena i nenatkrivena terasa.
Grijanje/hlađenje će biti izvedeno za svaki stan posebno putem dizalice topline i klima jedinica.
Značajke
Terasa
Parkirno mjesto
Garažno parkirno mjesto
Garaža
Priključci
Struja
Voda
Kanalizacija
Grijanje
Dizalica topline
Klima uređaj
Karakteristike
Bazen
Sauna
Lokacija
Kalkulator kredita

Darko Jurčec