











Prodaja, Zemljište, Građevinsko, Ličko-senjska županija, Novalja, Lun
Lun
Dodaj u omiljene
Kreditni kalkulator
Kreditni kalkulator
ID I30398
Detalji
Vrsta usluge
Prodaja
Vrsta nekretnine:
Zemljište
Površina
700 m2
Površina parcele
700 m2
Lokacija
Lun
Dokumentacija
Građevinska dozvola
250.000 €
Opis
Zemljište sa građevinskom dozvolom za vilu s bazenom, 700 m² , LUN, otok Pag
U mirnom predjelu mjesta Lun na sjevernom dijelu otoka Paga, prodaje se zemljište s građevinskom dozvolom. Parcela je površine 700 m² sa prekrasnim panoramskim pogledom na more i kvarnerske otoke Cres, Lošinj, Silbu i Olib.
Na zemljištu se nalazi priključak za struju i vodu, put do zemljišta je asfaltiran.
Smješteno je u okruženju maslinika i novoizgrađenih vila na većim parcelama, nedaleko od svih sadržaja. Do mora je udaljeno svega 5 minuta šetnje.
Zemljište se nalazi u okruženju mediteranske vegetacije, na rubnom dijelu botaničkog rezervata „Lunjski maslinik“ u mjestu Jakišnica.
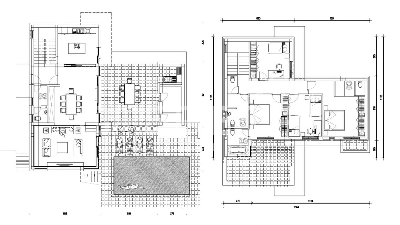
Prodaje sa građevinskom dozvolom za vilu s bazenom, planirane površine tlocrta 140 m², bruto površine 243 m².
Prema projektu prizemlje kuće čini ulazni prostor, spremište, WC s predprostorom, radna soba, kuhinja, blagovaona i denivelirani dnevni boravak, te natkrivena terasa. Vanjski dijelovi uključuju konobu, ljetna kuhinju i prostor bazenske tehnike. Planiran je bazen 7,2 x 3,5 m sa uređenim sunčalištem površine 45 m².
Na gornjoj etaži predviđene su dvije spavaće sobe s izlazom na velike terase, te dvije dječje sobe i kupaonica.
U ovoj fazi moguće su manje promjene u projektu, te odabir završnih materijala i opreme po želji kupca.
Vlasnik nudi mogućnost zamjene za apartman u blizini Luna.
Zemljište je smješteno na rubnom području Lunjskih maslinika, koje se prostire na 1300 ha, na kojima se nalazi stotine maslina starih više od 1200 godina, dok najstarije stablo ima 1600 godina.
Na parceli se nalazi nekoliko stabala maslina starih od 800 do 1000 godina.
Ovako velike i očuvane površine stoljetnih maslina, starih oko 1000 godina, prava su rijetkost u mediteranskim zemljama.
Ako tražite mirno mjesto s očaravajućim zalascima sunca i svim potrebnim uvjetima za gradnju, ovo zemljište predstavlja izvrsnu priliku.
Značajke
Asfaltni put
Priključci
Struja
Voda
Septička jama
Karakteristike
Pogled na more
Lokacija
Kalkulator kredita

Mia Šoletić