










Građevinsko zemljište 932 m², M1 namjena, pogled na more, Nečujam, otok Šolta
Šolta
Dodaj u omiljene
Kreditni kalkulator
Kreditni kalkulator
ID I24243
Detalji
Vrsta usluge
Prodaja
Vrsta nekretnine:
Zemljište
Površina
932 m2
Površina parcele
932 m2
Lokacija
Nečujam
111.840 €
Opis
Zemljište površine 932 m², Nečujam, otok Šolta
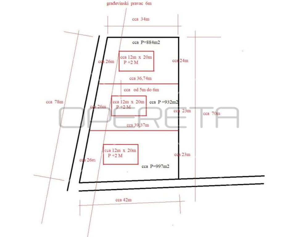
Građevinsko zemljište površine 932 m² smješteno je u Nečujmu na otoku Šolti. Pravokutnog je oblika, bez nagiba, te postoji mogućnost izgradnje obiteljske kuće sa bazenom. S parcele se prostire neometan pogled na more i Split.
Zemljište je trenutno u komadu, postoji mogućnost parcelizacije prema navedenom prijedlogu, koji nije konačan.
Infrastruktura se nalazi u blizini. Zemljište je udaljeno 50 metara od glavne asfaltirane ceste, a pristupni put je osiguran. Velika prednost ove nekretnine je dobra prometna povezanost te sama blizina mora, udaljenog svega par minuta. Nečujam je na sjevernoj strani otoka, a od Splita ga dijeli nepunih 9 milja prekrasnog plavog Jadrana.
Smjestio se u najvećem zaljevu na Šolti i najmlađe je mjesto na otoku koje gravitira centralnoj plaži iznad koje je veliko apartmansko naselje. Nečujam je po mnogima najljepša uvala otoka Šolte sačinjena od ukupno osam draga. Prekrasna priroda čini ovo mjesto rajskim.
Priključci
Struja
Voda
Karakteristike
Pogled na more
Lokacija
Kalkulator kredita

Anita Novak