














Prodaja, Zemljište, Građevinsko, Grad Zagreb, Gornji Grad - Medveščak, Britanac
Tuškanac/Kraljevec
Dodaj u omiljene
Kreditni kalkulator
Kreditni kalkulator
ID I21077
Detalji
Vrsta usluge
Prodaja
Vrsta nekretnine:
Zemljište
Površina
1663 m2
Površina parcele
1663 m2
Lokacija
Britanac
550.000 €
Opis
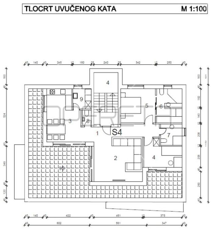
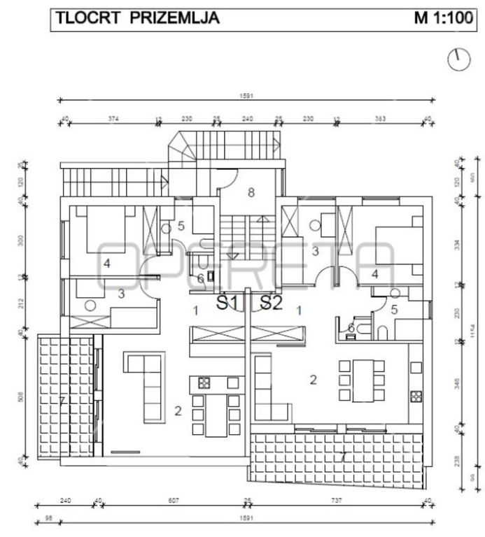
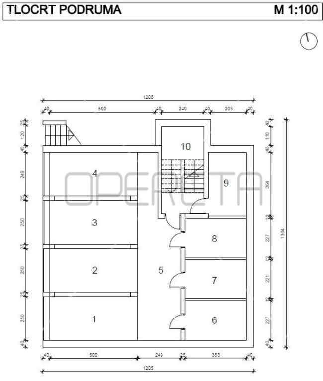
PRODAJA, GRAĐEVINSKO ZEMLJIŠTE, KRALJEVEC. Građevinska parcela pravilnog oblika od 1663m² (cca 25,5x65m) na mirnoj i idiličnoj lokaciji između Tuškanca i Kraljevca. Neposredna blizina autobusne stanice, trgovine, škole i vrtića. Autom udaljeno od Britanca 3 min vožnje.
Uvjeti gradnje po GUP-u:
- max 500 BRP, tlocrtno cca 185m², širina parcele 20m
-max visina je 3 nadzemne etaže tj. prizemlje, kat i uvučeni kat
-parking-min.2 park.mjesta po stanu, tj. najmanje 50% u garaži
-min.udaljenost od susjedne čestice je 4m
NEWS 559
Lokacija
Kalkulator kredita

Robert Turčić