













Prodaja, Zemljište, Istarska županija, Rakalj
Belavići
Dodaj u omiljene
Kreditni kalkulator
Kreditni kalkulator
ID I18566
Detalji
Vrsta usluge
Prodaja
Vrsta nekretnine:
Zemljište
Površina
60000 m2
Površina parcele
60000 m2
Lokacija
Rakalj
1 €
Opis
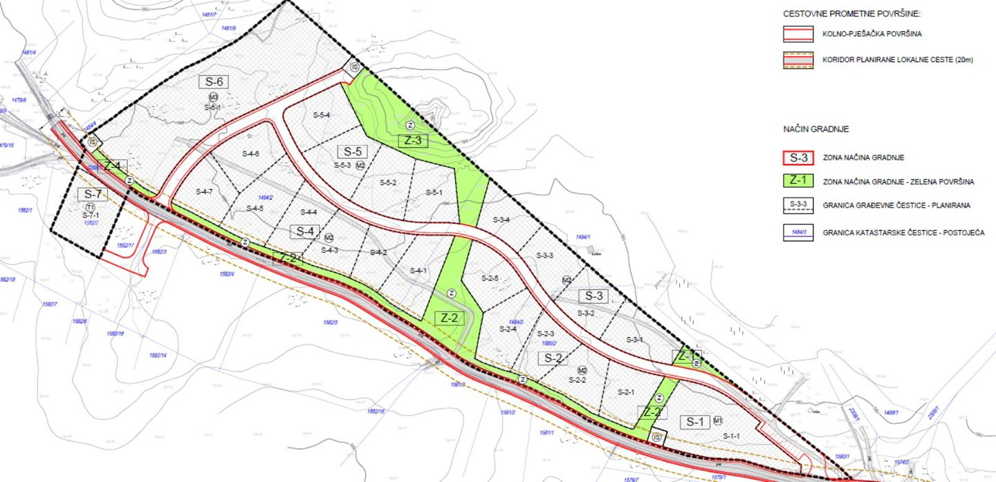
ISTRA, INVESTICIJSKO ZEMLJIŠTE u blizini mora - zemljište za realizaciju atraktivnog projekta ukupne površine 60.000 m², u neposrednoj blizini Raškog zaljeva. Jedinstvena cjelina za izgradnju objekata i raznovrsnog popratnog sadržaja. Zračne udaljenosti cca 500 m, a cestom oko 800 m od mora. Raški zaljev nalazi se cca 1000 m od lokacije.
Razvoj projekta osmišljen je na bazi integriranog resort koncepta, koji potencijalnim gostima može pružiti jedinstven odmor i vrhunsku uslugu na jednoj lokaciji. Prema UPU na površini od 40.781m² predviđena je izgradnja samostojećih ili dvojnih objekata plus jedan centralni objekt sa šesnaest ležajeva, restoranom i raznim drugim sadržajem. Preostalih 20.000 m² predviđa mogućnost izgradnje sportskih i adrenalinskih sadržaja. Zemljište je čisto 1/1, bez hipoteke, vlasnik pravna osoba. TOP preporuka!
Prirodnija varijanta projekta može uključivati resort sa MONTAŽNIM OBJEKTIMA ili KAMP sa sadržajem - MOBILNE KUĆICE I GLAMPING OBJEKTI u prirodi.Dodatan potencijal lokaciji daje nova MARINA RAKALJ sa preko 200 vezova koja je trenutno je u fazi projektiranja.
Asfaltni put i priključci se nalaze cca 300 m od predmetnog zemljišta. Potrebno je naglasiti izuzetno kooperativnu lokalnu samoupravu koja želi podržati daljnje iskorake prema turizmu.
Značajke
Asfaltni put
Lokacija
Kalkulator kredita

Krunoslav Lisjak